ZVENIGOROD by VSA Studio: A Contemporary Take on a 90s Cottage

  • Project: ZVENIGOROD
  • Architect: VSA studio
  • Location: Russia, Zvenigorod
  • Year: 2025
  • Area: 160 m2
  • Photography: Olga Melekesceva

Nestled on a scenic slope just outside the city of Zvenigorod, a mid-90s duplex has been dramatically transformed by VSA studio into a modern, light-filled residence that maximizes its breathtaking natural surroundings. The original structure, though charming in its own right, was marred by cramped ceilings, awkward staircases, and poor spatial planning—challenges that the VSA team boldly reimagined rather than ignored.

Reimagining the Old: A Design Philosophy Rooted in Light and Flow

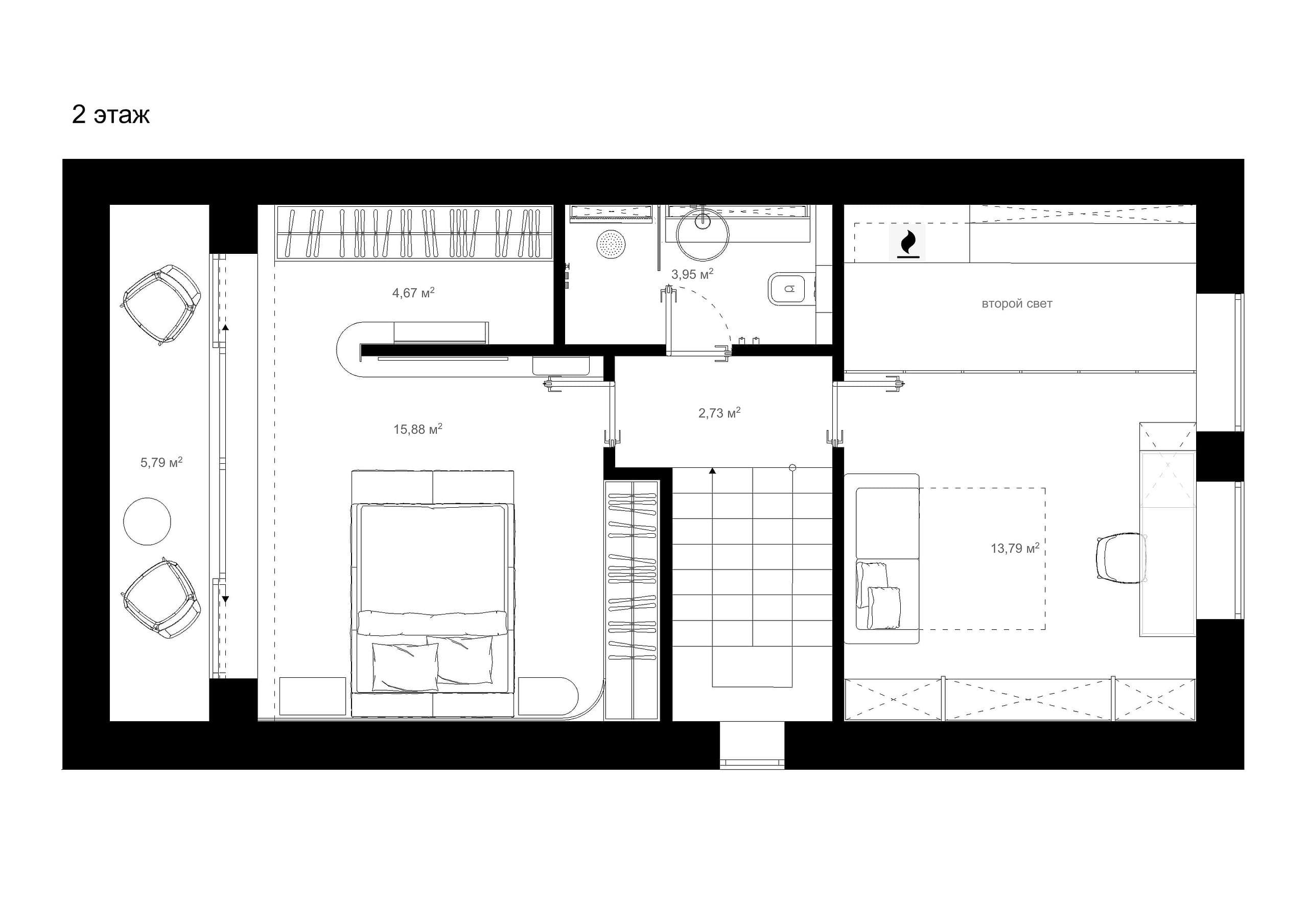
The original house presented many structural constraints typical of its era: low ceiling heights—just 2.2 to 2.4 meters—combined with narrow staircases and disjointed circulation. Yet the homeowner was captivated by one unbeatable feature: an open, uninterrupted view of vast fields and forests stretching to the horizon—a rare spectacle in the Moscow Region.

Rather than rebuilding from scratch, the client, inspired by VSA Studio’s work on the TV show Dachnyy Otvet, opted for a complete reconstruction focused on enhancing natural light, visual openness, and flow between spaces.

Strategic Upgrades: From Structure to Spatial Experience

VSA Studio approached the ZVENIGOROD project not just as a renovation, but a rethinking of how space can breathe:

  • Panoramic window expansions opened the home to the surrounding landscapes.

  • A double-height living space was introduced, providing vertical openness and a sense of grandeur without raising the roofline.

  • Staircases were redesigned for better access, transparency, and aesthetics, replacing the tight and steep connections with open, dual-flight designs.

  • A new gallery and summer patio area expanded the living experience outdoors, shaded with flowing curtains for seasonal comfort.

  • The porch was relocated and integrated into the landscape, blending garden views with an inviting entry.

What began as a simple upgrade for larger windows became a complete redesign—one that redefined the character of the house.

Timeless Interiors with International Flair

The refined interior speaks the language of contemporary Italian and European design, blending elegance with comfort. Key brands featured in the interiors include:

  • Sofa: Flexform

  • Dining Chairs & Bar Stools: Lema

  • Dining Table: Ditre Italia

  • Kitchen: Modulnova

  • Lighting: DeCastelli (dining), Panzerri (kitchen), Kreon (floor), Vesoi (bedroom)

  • Plumbing Fixtures: Cea, Cielo, Falper

  • Tile Finishes: Salvatori marble

Each element was selected to harmonize with the home’s updated architectural rhythm, creating a unified aesthetic from room to room.

A Model for Modern Renovation in Russia

ZVENIGOROD by VSA Studio demonstrates how thoughtful design can revitalize outdated structures and make them not only livable but exceptional. It’s a case study in how architecture can honor its environment, maximize views, and blend old structures with fresh ideas for comfort and luxury.

Modern interior design with a clear glass door separating rooms.
Modern interior design highlighting transparent glass doors for seamless room transitions. Photography © Olga Melekesceva
A sleek, minimalist hallway with dark accents and glass elements.
Sophisticated minimalist hallway featuring glass and subtle dark details. Photography © Olga Melekesceva
Contemporary kitchen and dining area with large windows and modern furniture.
Elegant kitchen-dining area with abundant natural lighting and contemporary style. Photography © Olga Melekesceva
A modern dining room featuring minimalist furniture and stylish pendant lighting.
Stylishly designed dining room with minimalist aesthetics and pendant lighting. Photography © Olga Melekesceva
Luxury dining room illuminated by designer pendant lights.
Luxury dining area accented by contemporary pendant lighting and designer furniture. Photography © Olga Melekesceva
An elegant marble kitchen island in a contemporary setting.
Contemporary kitchen showcasing an elegant marble island as the focal point. Photography © Olga Melekesceva
Sleek modern kitchen design with dark cabinetry and integrated appliances.
Modern kitchen characterized by sleek, dark cabinetry and minimalist design. Photography © Olga Melekesceva
Detail of a luxurious marble countertop in a contemporary kitchen.
Close-up of exquisite marble kitchen countertop detailing. Photography © Olga Melekesceva
Minimalist kitchen design highlighted by subtle LED shelf lighting.
Sleek minimalist kitchen with sophisticated LED lighting accents. Photography © Olga Melekesceva
Sleek black kitchen design with a striking marble island and minimal decor.
Sleek black kitchen featuring a luxurious marble island and modern fixtures. Photography © Olga Melekesceva
Minimalist hallway with natural lighting leading to a garden view.
Elegant hallway with a seamless transition to a vibrant outdoor garden. Photography © Olga Melekesceva
Modern living room featuring a black vertical divider and large windows.
Contemporary living space with striking vertical dividers and garden-facing windows. Photography © Olga Melekesceva
Gray sectional couch in a cozy room with a rectangular stone coffee table.
Comfortable gray sectional seating complemented by a bold stone coffee table. Photography © Olga Melekesceva
Indoor living space seamlessly blending with outdoor greenery through large glass doors.
Indoor-outdoor living design with floor-to-ceiling doors opening to lush greenery. Photography © Olga Melekesceva
Wall-mounted shelves with soft integrated lighting in a cozy living room.
Warm-lit wall shelving that adds style and functionality to the living space. Photography © Olga Melekesceva
Contemporary TV stand with wall shelves and elegant decor.
Stylish modern living room with sleek shelving and stone TV console. Photography © Olga Melekesceva
Soft lighting on wall-mounted shelves in a warm and cozy living room.
Inviting atmosphere created by ambient backlighting and neutral furnishings. Photography © Olga Melekesceva
Neutral-toned living room with floating shelves and sculptural decor.
Contemporary elegance featuring curated shelves and textured gray seating. Photography © Olga Melekesceva
Contemporary shelving system with ambient lighting in a minimalist living room.
Contemporary shelving system with ambient lighting in a minimalist living room. Photography © Olga Melekesceva
Gray stone coffee table and floating sofa in a modern living room.
Gray stone coffee table and floating sofa in a modern living room. Photography © Olga Melekesceva
Open plan living area with stone kitchen island and minimalist decor.
Open plan living area with stone kitchen island and minimalist decor. Photography © Olga Melekesceva
Textured stone walls and modern vases in a minimalist setting.
Textured stone walls and modern vases in a minimalist setting. Photography © Olga Melekesceva
Modern stone TV stand with artistic stone sculpture decor.
Modern stone TV stand with artistic stone sculpture decor. Photography © Olga Melekesceva
Detail shot of luxurious gray stone texture on furniture.
Detail shot of luxurious gray stone texture on furniture. Photography © Olga Melekesceva
Geometric black metal shelving unit displaying modern sculptures and books.
Geometric black metal shelving unit displaying modern sculptures and books. Photography © Olga Melekesceva
Elegant marble pedestal sink in a minimalist bathroom setting.
Elegant marble pedestal sink in a minimalist bathroom setting. Photography © Olga Melekesceva
Modern black metal staircase featuring slim vertical railings.
Modern black metal staircase featuring slim vertical railings. Photography © Olga Melekesceva
Modern bedroom with wall-mounted TV and hallway leading to window.
Modern bedroom with wall-mounted TV and hallway leading to window. Photography © Olga Melekesceva
Minimalist bedroom design featuring dark wooden panels and soft lighting.
Minimalist bedroom design featuring dark wooden panels and soft lighting. Photography © Olga Melekesceva
Sleek bedroom with integrated wardrobes and soft upholstered bed.
Sleek bedroom with integrated wardrobes and soft upholstered bed. Photography © Olga Melekesceva
Closeup of grey bed with textured wall and ceramic vase in modern bedroom.
Closeup of grey bed with textured wall and ceramic vase in modern bedroom. Photography © Olga Melekesceva
Dark wooden bedroom wall illuminated by gold pendant lighting.
Dark wooden bedroom wall illuminated by gold pendant lighting. Photography © Olga Melekesceva
Neutral-toned bedroom featuring luxurious bedding and dark wood walls.
Neutral-toned bedroom featuring luxurious bedding and dark wood walls. Photography © Olga Melekesceva
Decorative floor vase and books beside bed in a modern bedroom.
Decorative floor vase and books beside bed in a modern bedroom. Photography © Olga Melekesceva
Curved dark wood paneling accentuating a cozy bedroom corner.
Curved dark wood paneling accentuating a cozy bedroom corner. Photography © Olga Melekesceva
Oval natural stone nightstand complementing a dark wood wall.
Oval natural stone nightstand complementing a dark wood wall. Photography © Olga Melekesceva
Modern bedroom interior with dark wood paneling and soft textiles.
Modern bedroom interior with dark wood paneling and soft textiles. Photography © Olga Melekesceva
Minimalist bedroom with soft ambient lighting and elegant textures.
Minimalist bedroom with soft ambient lighting and elegant textures. Photography © Olga Melekesceva
Artistic sculpture positioned beneath a wall-mounted TV in a modern space.
Artistic sculpture positioned beneath a wall-mounted TV in a modern space. Photography © Olga Melekesceva
Contemporary wall shelves displaying minimalist vases and books.
Contemporary wall shelves displaying minimalist vases and books. Photography © Olga Melekesceva
Minimalist hallway leading into a modern bathroom with natural light.
Minimalist hallway leading into a modern bathroom with natural light. Photography © Olga Melekesceva
Home office featuring a sloped ceiling bookshelf and modern desk.
Home office featuring a sloped ceiling bookshelf and modern desk. Photography © Olga Melekesceva
Home office space with large windows bringing in natural light.
Home office space with large windows bringing in natural light. Photography © Olga Melekesceva
Stylish workspace with sloped ceiling bookshelf and dark tones.
Stylish workspace with sloped ceiling bookshelf and dark tones. Photography © Olga Melekesceva
Modern workstation setup near window with sleek black furniture.
Modern workstation setup near window with sleek black furniture. Photography © Olga Melekesceva
Contemporary bathroom vanity with transparent glass supports.
Contemporary bathroom vanity with transparent glass supports. Photography © Olga Melekesceva
Minimalist bathroom featuring a floating vanity and circular countertop sink.
Minimalist bathroom featuring a floating vanity and circular countertop sink. Photography © Olga Melekesceva
Clean modern toilet with matte finishes and hidden storage.
Clean modern toilet with matte finishes and hidden storage. Photography © Olga Melekesceva
Elegant dark-toned shower with sleek minimalist hardware.
Elegant dark-toned shower with sleek minimalist hardware. Photography © Olga Melekesceva
Warm modern living room with built-in seating and accent lighting.
Warm modern living room with built-in seating and accent lighting. Photography © Olga Melekesceva
Black geometric coffee tables with concrete decorative objects.
Black geometric coffee tables with concrete decorative objects. Photography © Olga Melekesceva
Shower with LED-lit shelving and frameless glass enclosure.
Shower with LED-lit shelving and frameless glass enclosure. Photography © Olga Melekesceva
Contemporary living room showcasing textured stone wall and minimalist vases.
Contemporary living room showcasing textured stone wall and minimalist vases. Photography © Olga Melekesceva
Close-up view of a textured stone corner wall with layered horizontal lines.
Close-up view of a textured stone corner wall with layered horizontal lines. Photography © Olga Melekesceva
Modern black floating staircase with vertical metal rails and natural light from entry.
Modern black floating staircase with vertical metal rails and natural light from entry. Photography © Olga Melekesceva
Vertical view of modern staircase with dark metal steps and railing design.
Vertical view of modern staircase with dark metal steps and railing design. Photography © Olga Melekesceva
Minimalist black wall shelves with ceramic vases and decor items.
Minimalist black wall shelves with ceramic vases and decor items. Photography © Olga Melekesceva
Dark-toned bathroom wall featuring LED-lit black shelves and toiletries.
Dark-toned bathroom wall featuring LED-lit black shelves and toiletries. Photography © Olga Melekesceva
Modern bathroom with stone walls, underlit mirror, and integrated sink.
Modern bathroom with stone walls, underlit mirror, and integrated sink. Photography © Olga Melekesceva
Minimalist bathroom design with dark stone tiles and sleek toilet.
Minimalist bathroom design with dark stone tiles and sleek toilet. Photography © Olga Melekesceva
Front porch with pergola, wicker chairs, and minimalist entrance design.
Front porch with pergola, wicker chairs, and minimalist entrance design. Photography © Olga Melekesceva
Outdoor seating area with fire pit and lily pond surrounded by greenery.
Outdoor seating area with fire pit and lily pond surrounded by greenery. Photography © Olga Melekesceva
Contemporary outdoor kitchen setup with wicker chairs and built-in sink under a pergola.
Contemporary outdoor kitchen setup with wicker chairs and built-in sink under a pergola. Photography © Olga Melekesceva

ZVENIGOROD by VSA Studio: A Contemporary Take on a 90s Cottage ZVENIGOROD by VSA Studio: A Contemporary Take on a 90s Cottage

ZVENIGOROD by VSA Studio: A Contemporary Take on a 90s Cottage

For more modern renovation inspiration, visit VSA.studio or explore similar transformation projects in our Projects section.

Posted by VSA studio

VSA Studio (Vyazminova | Selvinsky Architects) is a Moscow-based architectural and interior design firm founded by Ivan Selvinsky and Ekaterina Vyazminova. With over a decade of experience, the studio specializes in creating modern, comfortable, and aesthetically pleasing spaces for both residential and commercial clients worldwide.​