
- Project: Nara House
- Architect: Vive Design Studio
- Location: Thailand, Muang Narathiwat
- Year: 2022
- Area: 360 m2
- Photography: Beer Singnoi
In Muang Narathiwat, Thailand, Nirostina Nisani has transformed a modest wooden shophouse into a bold and contemporary residence. Nara House reimagines family living on a plot only four meters wide, showcasing how architectural ingenuity can overcome spatial constraints without compromising comfort, privacy, or natural light.
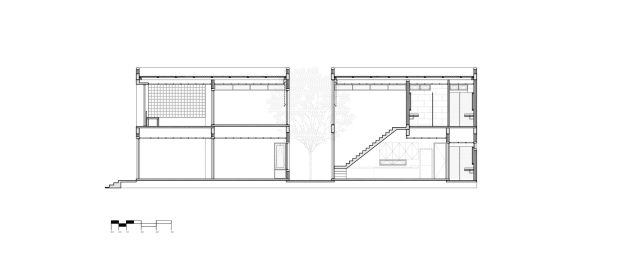
Overcoming Narrow Site Limitations
The site’s unusual shape and tight frontage posed a critical design challenge. The architect’s solution was to reorganize the program vertically and introduce a central inner courtyard that brings air, light, and openness into the heart of the home.
Instead of relying on side openings—which were restricted by legal regulations—the design uses skylights, double-volume voids, and transparent connections to create a sense of expansiveness in an otherwise narrow structure. This courtyard is not just a passive space but an active social hub, linking the store frontage with the family’s private zones through an exposed second-floor corridor.
A Seamless Spatial Flow
The home unfolds as a journey through connected yet distinct layers of space:
-
Front Section: Retains the original store function, integrating heritage with contemporary life.
-
Inner Courtyard: Acts as a natural divider between the commercial and residential areas while ensuring daylight penetration.
-
Rear Family Spaces: Dining, stairwell, and living zones open onto the courtyard, reinforcing visual and physical connection.
-
Private Bedrooms: Positioned at the far end of circulation routes, ensuring tranquility and privacy.
The stairwell, designed as a double-height volume, enhances vertical connections while maximizing natural illumination. Large mirrored surfaces further amplify light, reflecting the greenery of the courtyard deep into the home.
Minimalist Interiors with Bold Accents
Inside, the interiors adopt a monochrome palette of white and black, contrasted with natural stone finishes and warm wooden flooring. Furniture is arranged in parallel with walls and staircases to optimize every inch of usable space, while clean lines and restrained detailing create a calm, orderly atmosphere.
The contrast between dark and light surfaces creates rhythm and character, allowing the narrow rooms to feel dynamic rather than confined. Subtle use of natural textures prevents the minimalism from appearing stark, achieving a balance between sophistication and livability.
A Playful, Contextual Facade
Externally, the house respects its neighbors by adopting the rhythm of surrounding wooden facades while reinterpreting them in a more contemporary language. Adjustable wooden doors at the front allow the house to shift its expression—closed for privacy, open for interaction—introducing a playful quality that keeps the exterior visually intriguing and unpredictable.
By controlling transparency, the facade negotiates between community presence and personal retreat, blending seamlessly into its context while asserting its individuality.
Drawings
Nara House by Nirostina Nisani is more than a response to site restrictions—it is a manifesto for adaptable, light-filled urban living on constrained plots. Through its inventive use of courtyards, skylights, and layered circulation, the project proves that architecture can transform limitations into opportunities, offering a home that is functional, poetic, and deeply connected to its environment.