
- Project: Minimalist Apartment in Moscow
- Architect: Jeanne Denisheva
- Location: Russia, Moscow
- Year: 2024
- Area: 110 m2
- Photography: Michael Chekalov
In the heart of Moscow, this 110-square-meter apartment was envisioned as a sanctuary for a young couple seeking the perfect balance of functionality, simplicity, and warmth. The project, designed by architect and interior designer Jeanne Denisheva, is a masterclass in urban minimalism—a restrained design language infused with subtle material richness and modern comfort.
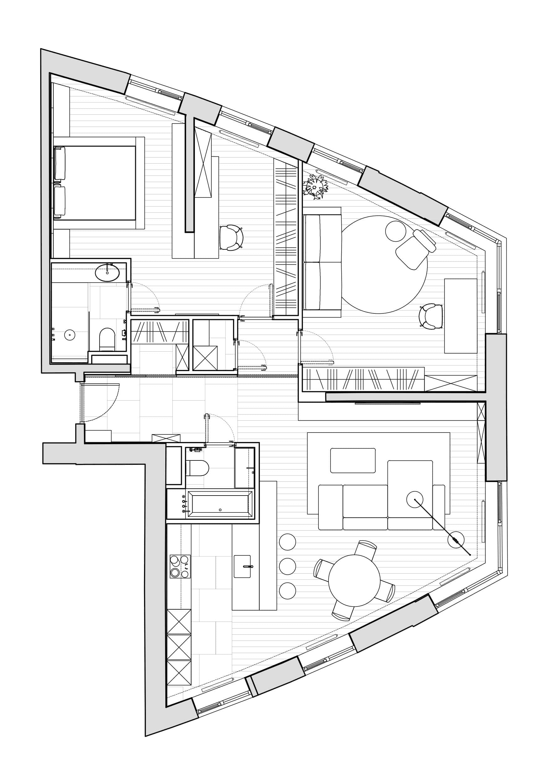
A Functional Layout Rooted in Light and Logic
Originally delivered as an open-plan shell, the apartment was reorganized with intention. The layout now features two clear zones:
-
Public space: A cohesive studio-style area with a welcoming entrance, built-in wardrobe, guest bathroom, and a fluid kitchen–dining–living room setup.
-
Private space: A serene master bedroom with an en-suite, plus a versatile home office that can evolve into a nursery.
A custom Rimadesio sliding partition—a standout architectural feature—creates a soft yet defined separation between these two zones. Seamlessly integrated into the entrance wardrobe, it illustrates the project’s seamless balance of form and function.
Materials That Elevate Without Cluttering
The palette is carefully curated. Subdued grey hues meet warm wooden finishes, lightly textured plaster walls, and monochrome textiles. By limiting the variety of materials and finishes, the interior feels harmonious and cohesive.
Design decisions followed a “less is more” philosophy. A single tile collection is used across all bathrooms. Fixtures are kept consistent. Custom-built elements—from the kitchen to wardrobes—were crafted by a single manufacturer, ensuring a unified aesthetic and technical consistency throughout.
The engineered wood flooring was precisely matched with the wood veneer on the built-in furniture to establish a continuous, visually calm narrative across the entire apartment.
Minimalism as Precision, Not Simplicity
While the apartment may appear effortless in its elegance, the project demanded precision at every level:
-
Flush floor-to-ceiling doors
-
Recessed baseboards
-
Perfectly aligned tiles
-
Invisible ventilation grilles
Every detail was meticulously planned and executed to align with the original design visualizations—demonstrating how disciplined minimalism can achieve remarkable emotional impact.
Design Philosophy: Lasting Clarity and Comfort
According to Denisheva, an effective interior must begin with a strong architectural core—one that feels complete on its own but also provides a canvas for evolving personal layers over time.
This minimalist apartment in Moscow exemplifies that ethos. The result is a timeless, warm, and flexible living space that evolves with its owners, offering enduring comfort without ever sacrificing aesthetic integrity.

Photography © Michael Chekalov






























