
- Project: Dreamy Island
- Architect: GROWTO DESIGN
- Location: China, Chengdu
- Year: 2022
- Area: 2553 m2
- Photography: BIJISPACE
A Poetic Dialogue Between Architecture, Nature, and Time
In the vibrant city of Chengdu, Dreamy Island by GROWTO Design embodies a vision that transcends trends. Rather than chasing novelty, the architects sought to rediscover the essence of dwelling—a dialogue between space, nature, and emotion. The result is a home that feels timeless, tactile, and deeply human—an environment where design nurtures both the body and the soul.
The project is founded on GROWTO’s belief that architecture must return to locality: understanding the land, climate, and traditions that shape how people live. Over the course of a year, the team meticulously re-composed every layer—from site and structure to interior atmosphere—transforming the house into an immersive experience that bridges memory, art, and everyday life.
The Courtyard as the Soul of the House
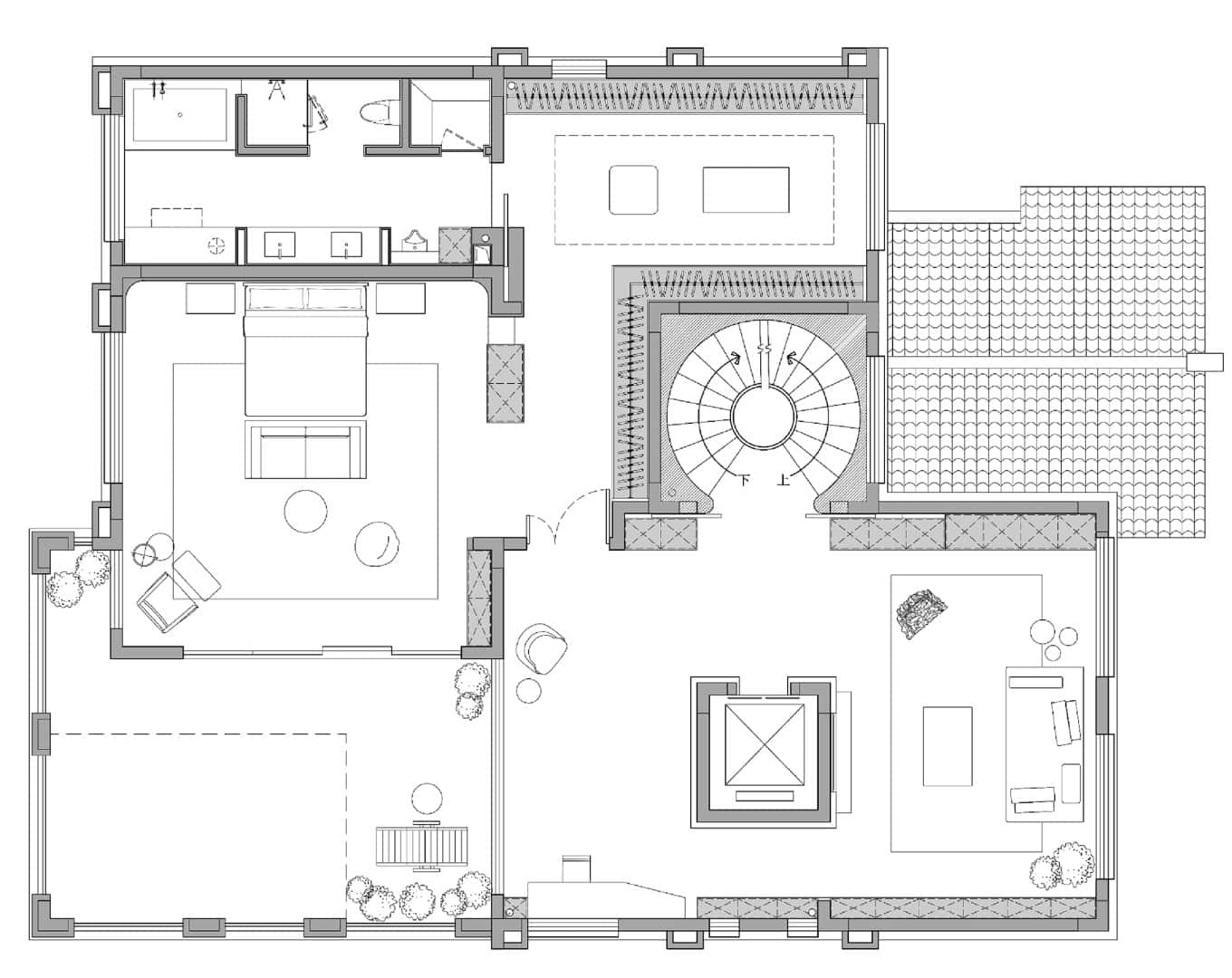
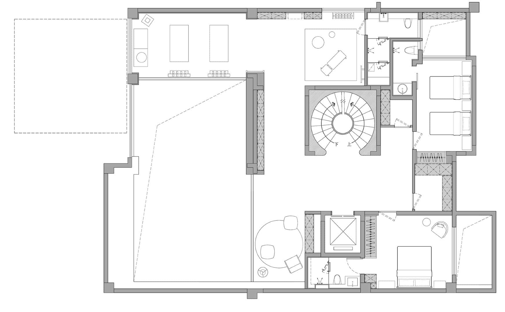
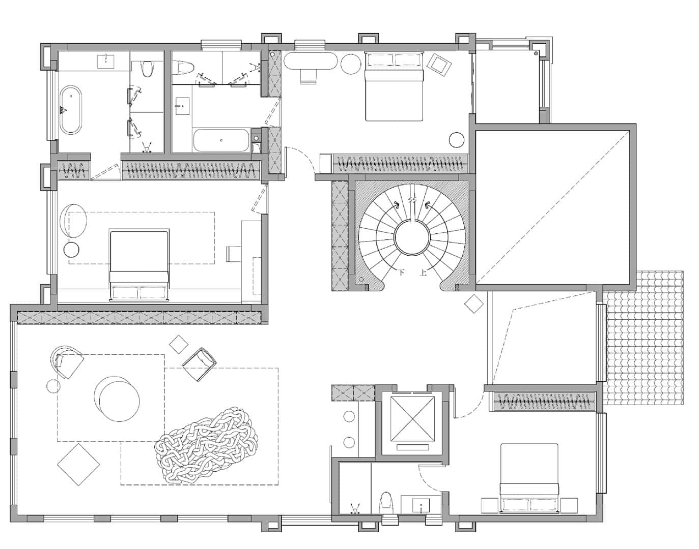
At the heart of Dreamy Island lies a vertical garden courtyard that links the upper and lower levels. This lush, light-filled void becomes the spatial and emotional core of the home.
Stretching from the first floor down to the second basement, it forms a serene composition of glass, greenery, and reflection. Functionally, it connects social spaces—such as the living room, tea lounge, bar, and art hall—through a fluid spatial sequence. Symbolically, it unites the house’s opposing qualities of stillness and vitality, creating a poetic balance between light and shadow, enclosure and openness.
The courtyard adopts the ancient Chinese concept of “Four Waters Return to the Hall,” guiding natural light and airflow deep into the building. Concealed boundaries between interior and exterior evoke “separation without isolation, boundaries without confinement.” The resulting experience is one of meditative calm—a private world open to the rhythms of nature.
Layers of Light and Spatial Rhythm
Each level of Dreamy Island unfolds with its own character and purpose, yet maintains a coherent dialogue through materiality and rhythm.
The first floor acts as the primary social zone, reinterpreting traditional spatial order with modern minimalism. Natural light is diffused through reorganized openings and wooden grilles, creating a measured choreography of brightness and shade. The semi-open plan encourages a natural flow between indoor and outdoor living, where family gatherings, artful dining, and tea rituals blend seamlessly into everyday life.
Subtle details—such as screen walls that shift between concealment and revelation—add theatricality to ordinary moments. Each beam of light and each framed view participates in the narrative of tranquility and reflection.
Spaces for Play, Growth, and Imagination
The second floor houses the children’s bedrooms and shared recreation zones. Here, GROWTO Design introduces a playful palette and a freer arrangement that encourages creativity and exploration.
This level becomes a miniature landscape of imagination—a “forest of dreams” where color and form nurture growth and curiosity. Every surface and corner offers opportunities for discovery, while maintaining harmony with the house’s overall serene atmosphere.
The Private Realm Above
Ascending to the third floor, the architecture becomes quieter and more introspective. The master suite and private living area exude understated sophistication through their material restraint and organic forms.
Arched volumes and softened edges blur the boundaries of the ceiling and walls, diffusing the light and creating a gentle spatial continuity. The atmosphere here is deeply personal and contemplative, a retreat that celebrates the beauty of calmness and the dignity of simplicity.
Sustainable Design Rooted in Nature
Beyond aesthetics, Dreamy Island embodies a responsible, low-carbon lifestyle. Through the introduction of daylighting wells, underground gardens, and natural ventilation paths, the home maintains thermal comfort year-round with minimal energy use.
A closed-loop recycling system reduces water and power consumption, while newly insulated façades and high-performance glazing improve both sound and thermal efficiency. In doing so, the residence becomes not just an artistic statement, but also a model of environmental mindfulness and long-term livability.
A Contemporary Eastern Masterpiece
Dreamy Island represents the maturity of GROWTO Design’s philosophy—a modern Chinese dwelling that honors traditional ideals of harmony, balance, and nature. It is both contemporary and timeless, where craftsmanship meets contemplation, and architecture becomes an instrument of emotional resonance.
In its restrained material palette, carefully modulated light, and fluid spatial relationships, Dreamy Island transforms daily life into an art form—a modern sanctuary that restores tranquility in an ever-accelerating world.



























