
- Project: Yield House
- Architect: Splyce Design
- Location: Canada, Vancouver
- Year: 2021
- Area: 530 m2
- Photography: Ema Peter
Yield House by Splyce Design represents the cutting edge of contemporary residential architecture in Vancouver’s westside — a residence that merges refined materiality, experiential spatial organization, and panoramic engagement with its landscape. Designed for a family that frequently hosts extended guests, this 5,700 ft² home reveals how thoughtful architecture can orchestrate intimacy, openness, and privacy within a dense urban context.

Elevated Urban Presence
Located on an east–west oriented site, Yield House begins with its most striking gesture: a powerful concrete retaining wall and cantilevered staircase that elevate the entrance roughly 17 feet above the sidewalk. This calibrated ascent modulates the transition from public to private, removing the home from intrusive sightlines and creating a ceremonial approach that sets the tone for the entire design.

The front façade is defined by a continuous dark band of cementitious panels that visually ground the mass and contrast with generous glazing above. These expansive windows maintain transparency toward the landscape while preserving a sense of levitation—the house appears to hover above its site, animating the street elevation with measured restraint.


Spatial Sequencing and Light
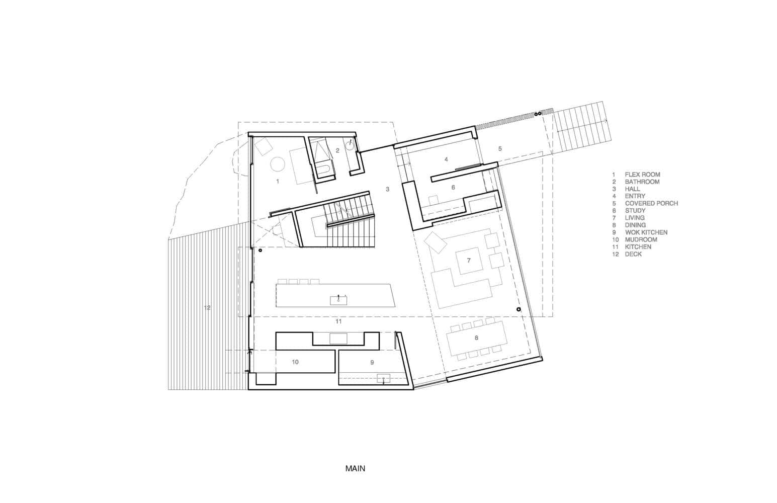
Inside, Yield House unfolds along a carefully orchestrated north–south axis. Large windows at either end of this axis subtly rotate the plan toward panoramic views of Vancouver’s natural backdrop, seamlessly merging internal circulation with external experience. High ceilings and sliding glass doors connect the main living areas to an outdoor deck, dissolving boundaries between inside and out.

A subdued palette of warm timber ceilings and clean white surfaces establishes a calm interior atmosphere. This material restraint enhances the perception of space and light, allowing natural illumination—filtered through tall west-facing windows and skylights—to sculpt the interior throughout the day.


Functional Precision
Yield House balances open-plan living with discreet utility. The kitchen, dining, and living spaces form a cohesive social core, while supporting areas such as a prep kitchen remain cleverly concealed behind integrated millwork. A mudroom is conveniently positioned just off the kitchen, and a hidden home office nestles beyond the living area, demonstrating how functional needs are met without fragmenting spatial flow.


The upper floor’s stair landing doubles as a cozy library nook, emphasizing that movement through the house is intentionally layered with moments of retreat, contemplation, and connection.



Design Integrity and Integration
Every detail at Yield House reinforces a thematic commitment to material honesty and contextual integration. Concealed window frames and pristine detailing allow interior volumes to extend visually into the surrounding greenery and distant skyline. The architecture does not simply occupy its site—it negotiates it, celebrates it, and engages with it dynamically.









