
- Project: THE NEW SOUL OF LA GÉODE
- Architect: Loci Anima
- Location: France, Paris
- Year: 2024
- Area: 3000 m2
- Photography: Adrien Daste, Loci Anima
In the heart of Parc de la Villette in Paris’s 19th arrondissement, La Géode, an iconic architectural gem originally designed by Adrien Fainsilber in 1985, has been reimagined by the Paris-based studio Loci Anima, under the leadership of Françoise Raynaud. The renovation, completed in December 2024, transcends traditional cinema to deliver a multisensory, immersive experience unlike any other.
A New Architectural Language for Immersion
While the IMAX experience has long defined La Géode, this renovation elevates the entire space into an architectural illusion, beginning with the building’s dichroic façade. Designed to interact with natural light, the geometric exterior echoes modern stained glass, blending transparency, reflection, and chromatic depth in a sculptural, monolithic expression.
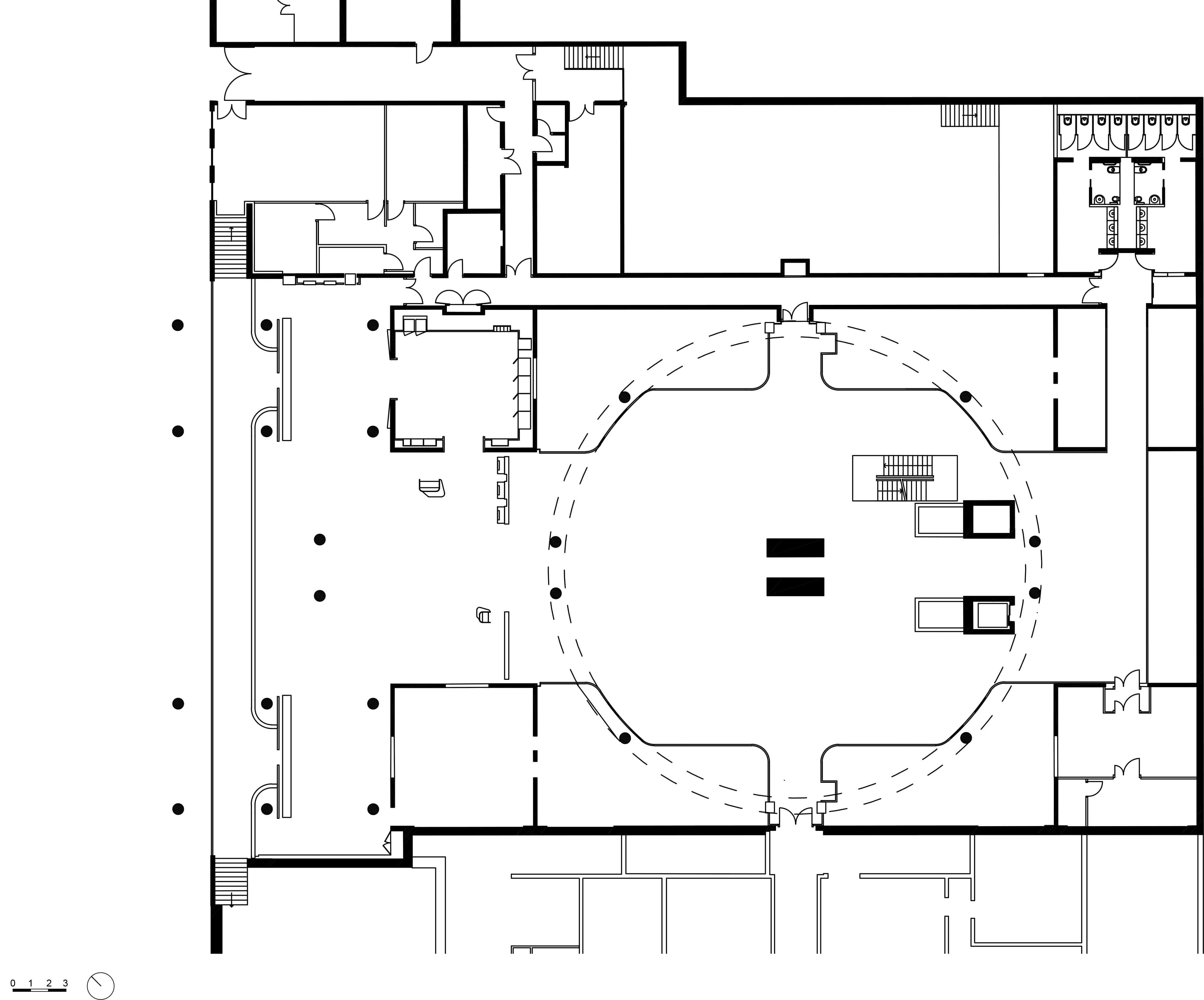
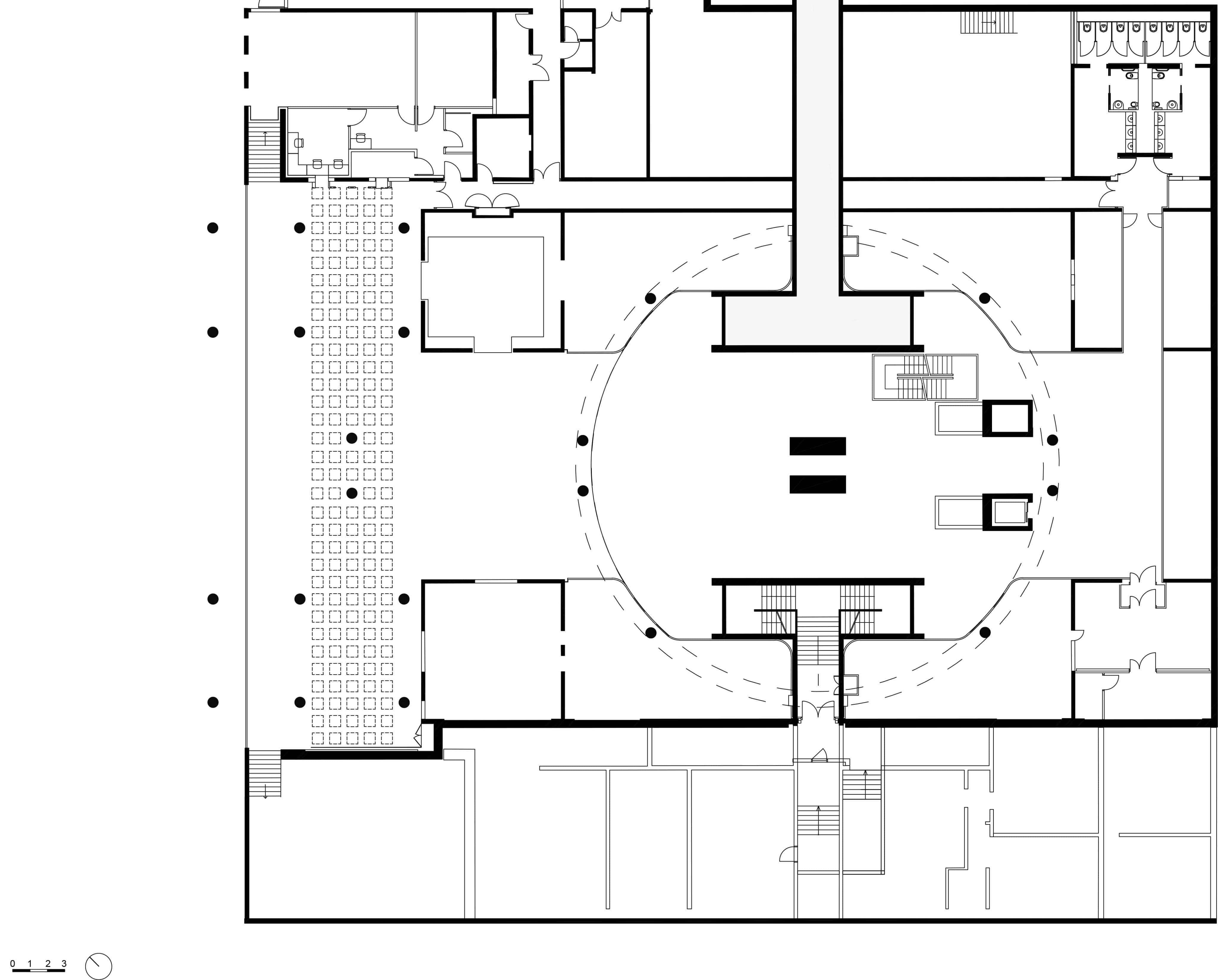
Upon entering, visitors are greeted by a dreamlike confectionery space—a prelude to the sensory journey ahead. This playful moment bridges architecture and fantasy, guiding guests toward the grand hemispherical auditorium, where light, shadow, and geometry orchestrate a spectacle that begins even before the film rolls.
Engineering Meets Brutalist Beauty
La Géode’s original concrete “mushroom” structure, an engineering marvel supported by a mere 4m² central column, has been preserved and celebrated. New additions, including platforms for the IMAX projector and reception area, were integrated with precise attention to structural balance. The brutalist heart of La Géode remains visible and revered, presented like a concrete cathedral.
Inside, 360-degree projection mapping envelopes the walls, encouraging exploration and interaction. A floating 11-meter staircase and panoramic elevators guide guests through the structure, revealing unique perspectives of the iconic geodesic dome.
Next-Gen Cinema: Technology Meets Comfort
The redesigned auditorium introduces a massive 1,000 m² hemispherical screen, tailor-made for a 180° IMAX 4K laser projection system, supported by IMAX 6.0 surround sound. Seating capacity has been reduced from 400 to 286 to provide more space and improved comfort, with custom reclining seats offering six different angles.
Before screenings begin, the dome projects an immersive virtual journey through Parc de la Villette, blurring the boundaries between exterior landscape and interior illusion.
Technical Highlights
-
Screen: 27m diameter dome, 559 micro-perforated aluminum panels
-
Image System: IMAX 180° 4K Laser
-
Sound: IMAX 6.0
-
Use: Cinema & Event Space
-
Construction Time: 24 months






















