Soleta ZeroEnergy One : Eco Homes Prototypes by FITS

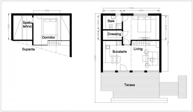
Soleta ZeroEnergy One is a new concept of premium eco homes, developed by FITS (Justin Capr? Foundation for Inventics and Sustainable Technologies). Soleta zeroEenergy One has a particular and innovating architecture. Besides the 48 sqm. interior, a suspended under-roof sleeping area with 9 sqm. (96 sqft) and an exterior terrace with 22 sqm. (237 sqft) are built as an integrated, fully functional unit. Currently, Soleta One is FITS’s showroom, and we welcome daily visits. Soleta One is located in Bucharest, Romania, in the front of the U.S. Embassy.

Soleta-zeroEnergy (8) Soleta-zeroEnergy (9) Soleta-zeroEnergy (10) Soleta-zeroEnergy (11) Soleta-zeroEnergy (12)

Soleta-zeroEnergy (13) Soleta-zeroEnergy (14) Soleta-zeroEnergy (15) Soleta-zeroEnergy (16) Soleta-zeroEnergy (17)
Soleta-zeroEnergy (18) Soleta-zeroEnergy (19) Soleta-zeroEnergy (20) Soleta-zeroEnergy (21) Soleta-zeroEnergy (22)
Soleta-zeroEnergy (23) Soleta-zeroEnergy (24) Soleta-zeroEnergy (25) Soleta-zeroEnergy (26) Soleta-zeroEnergy (27)
Soleta-zeroEnergy (28) Soleta-zeroEnergy (29) Soleta-zeroEnergy (30) Soleta-zeroEnergy (31) Soleta-zeroEnergy (32)
Soleta-zeroEnergy (33)Soleta-zeroEnergy (1) Soleta-zeroEnergy (2) Soleta-zeroEnergy (3) Soleta-zeroEnergy (4)
Soleta-zeroEnergy (5) Soleta-zeroEnergy (6) Soleta-zeroEnergy (7)

Posted by Maya Markovski

Maya Markovski is an architect and the founder of ArchitectureArtDesigns.com, an established online publication dedicated to architecture, interior design, and contemporary living. Combining professional expertise with editorial precision, she curates and produces content that showcases outstanding architectural works, design innovation, and global creative trends. Her work reflects a commitment to promoting thoughtful, well-crafted design that informs and inspires a worldwide audience of professionals and enthusiasts alike.