Llull Apartment / YLAB Arquitectos / Spain

  • Project: Llull Apartment
  • Architect: YLAB Architects
  • Location: Spain, Barcelona
  • Year: 2019
  • Area: 68 m2
  • Photography: YLAB Arquitectos

A Coastal Barcelona Flat Reimagined

Situated in a modern high-rise near Diagonal Mar Park, just steps from the sea, Llull Apartment by YLAB Arquitectos transforms a once underused two-bedroom flat into a luminous, functional one-bedroom home. The clients—a couple captivated by Barcelona’s coastal life—wanted a layout that maximizes openness, storage, and a seamless orientation toward the terrace and sea views.

The design ambition: to merge interior and exterior and let light, landscape, and daily rituals guide the spatial logic.

Llull Apartment / YLAB Arquitectos / Spain
Photography © YLAB Architects
Llull Apartment / YLAB Arquitectos / Spain
Photography © YLAB Architects
Llull Apartment / YLAB Arquitectos / Spain
Photography © YLAB Architects
Llull Apartment / YLAB Arquitectos / Spain
Photography © YLAB Architects

Spatial Restructuring & Flow

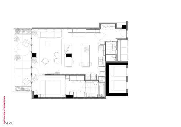
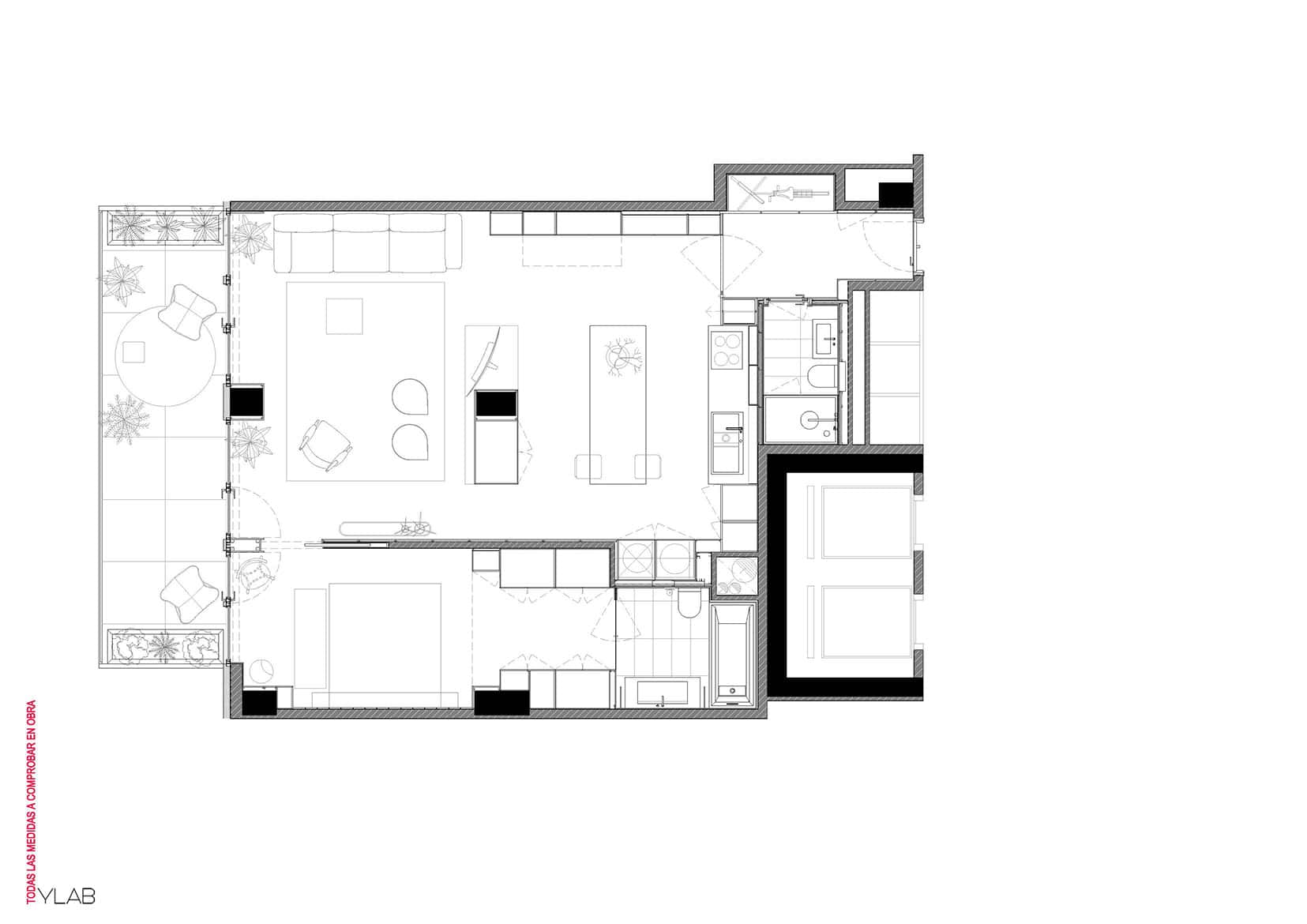
YLAB reorganized the apartment around a linear sequence: entry → kitchen / living → master suite → terrace. Non-structural walls were removed to allow the kitchen, living, and bedroom to align along a sweeping panorama window that frames parkland and the Mediterranean beyond.

Rather than compartmentalizing, the layout blurs boundaries. A pivoting door differentiates kitchen from foyer, while sliding panels let the space open up. A central structural element doubles as a view frame and support column, subtly reinforcing the narrative of landscape.

Llull Apartment / YLAB Arquitectos / Spain
Photography © YLAB Architects
Llull Apartment / YLAB Arquitectos / Spain
Photography © YLAB Architects
Llull Apartment / YLAB Arquitectos / Spain
Photography © YLAB Architects
Llull Apartment / YLAB Arquitectos / Spain
Photography © YLAB Architects
Llull Apartment / YLAB Arquitectos / Spain
Photography © YLAB Architects
Llull Apartment / YLAB Arquitectos / Spain
Photography © YLAB Architects

Storage, Cabinetry & Material Continuity

To optimize space, YLAB introduced floor-to-ceiling cabinetry around the perimeter—replacing walls, hiding doors, and interlocking storage zones. Oak veneer panels alternate with white lacquer finishes, creating a subtle rhythm between wood warmth and neutral expanses. Doors—both swinging and sliding—are flush with the cabinetry, maintaining visual continuity.

The flooring choice—natural oak parquet—ties the cabinetry and ceilings together, creating a seamless flow underfoot.

Llull Apartment / YLAB Arquitectos / Spain
Photography © YLAB Architects
Llull Apartment / YLAB Arquitectos / Spain
Photography © YLAB Architects
Llull Apartment / YLAB Arquitectos / Spain
Photography © YLAB Architects
Llull Apartment / YLAB Arquitectos / Spain
Photography © YLAB Architects
Llull Apartment / YLAB Arquitectos / Spain
Photography © YLAB Architects
Llull Apartment / YLAB Arquitectos / Spain
Photography © YLAB Architects

Kitchen, Living & Terrace Connection

The kitchen island, clad in white lacquer, anchors the social core. Its design integrates a hood, sink, and hidden storage. Floating back shelves display curated objects, while seating along the island lets guests face both cooking and views.

Large graphite-framed windows in the living/bedroom zones connect directly to the terrace. The aluminum frame hides motorized blinds and lighting fixtures, and a planter zone softens the transition to outdoors. The terrace is finished in bush-hammered graphite stone and furnished with lounge pieces that echo the interior palette.

Llull Apartment / YLAB Arquitectos / Spain
Photography © YLAB Architects
Llull Apartment / YLAB Arquitectos / Spain
Photography © YLAB Architects
Llull Apartment / YLAB Arquitectos / Spain
Photography © YLAB Architects
Llull Apartment / YLAB Arquitectos / Spain
Photography © YLAB Architects

Bedroom & Bath

The master bedroom includes a reading corner, discreet wardrobe zone, and upholstered bed—all wrapped in soft neutrals. The bathroom features wall-mounted oak washbasin, suspended fixtures, and clean tile accents. Materials are chosen for simplicity and tactile comfort, avoiding visual clutter in the compact footprint.

Llull Apartment / YLAB Arquitectos / Spain
Photography © YLAB Architects
Llull Apartment / YLAB Arquitectos / Spain
Photography © YLAB Architects

Light, Privacy & Comfort

Natural light floods the flat from its sea-facing façade. YLAB controls glare with hidden automated blinds, and frames views so that even when closed, the architecture reads as coherent and calm. The translucent transitions, recessed cabinetry, and perimetric detailing all orchestrate a sense of serenity and openness.

A Refined Coastal Infill in Barcelona

Llull Apartment / YLAB Arquitectos / Spain achieves a rare balance—heritage of structure, contemporary efficiency, and a deep tie to its coastal context. Through spatial economy, refined detail, and a strong connection to terrace and view, the renovation becomes more than a home—it becomes a daily stage for Barcelona living.

Floor Plan

Llull Apartment / YLAB Arquitectos / Spain

Posted by YLAB Architects

YLAB Arquitectos is a boutique architecture and interior design firm headquartered in Barcelona, co-led by Tobias Laarmann and Yolanda Yuste. They specialize in residential architecture, corporate offices, and medical/interior projects. Blending creative vision and technical precision, YLAB emphasizes strong conceptual identity, tailored functionality, and refined detailing. Their integrated approach unites architecture, interiors, furniture, and lighting to deliver cohesive, custom spaces that reflect client values while respecting site and context. With a client-first mindset, YLAB navigates every project phase—from concept and design to execution—ensuring clarity, control, and integrity in design outcomes.