
- Project: Casa Calma
- Architect: Ravel Architecture
- Location: United States, Austin, Texas
- Year: 2025
- Area: 440 m2
- Photography: Chase Daniel
Nestled on a gently sloped site in Austin, Texas, Casa Calma by Ravel Architecture embodies a balance of bold modern design and regional sensitivity. Completed in 2025, this 4,750-square-foot residence draws deeply from Mexican vernacular architecture, while seamlessly adapting to the demands of Texas climate and lifestyle.
A Home Defined by Warmth, Stone, and Light
Casa Calma’s identity is shaped by locally sourced limestone walls, expressing both permanence and tactility. These thick, grounded surfaces offer thermal comfort and privacy, while natural wood elements, including rhythmic exposed beams, add warmth and structural clarity. The use of plaster, glass, and timber further refines the architectural palette into one of restraint, richness, and timelessness.
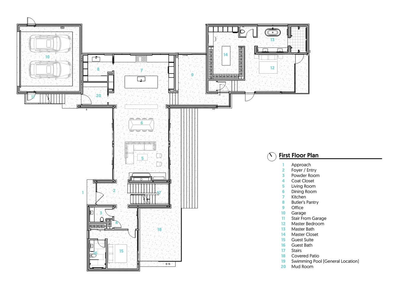
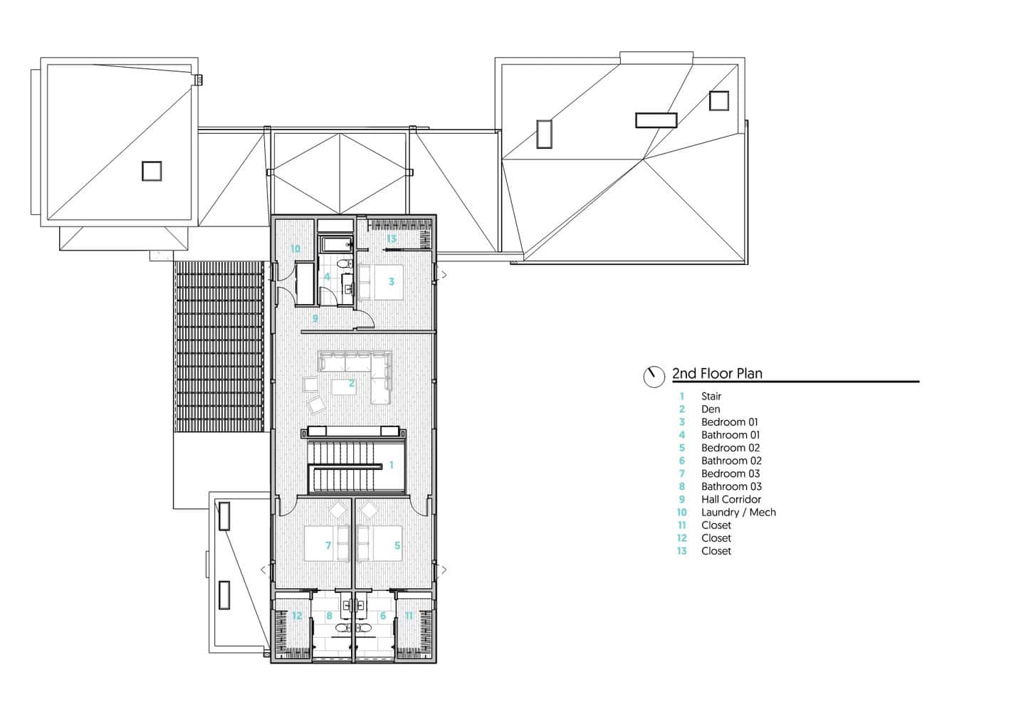
At the heart of the home lies a central communal space, beneath soaring wooden beams—a light-filled gathering place designed for both quiet conversation and vibrant activity. The structure radiates from this core in a pinwheel floor plan, where each wing flows effortlessly into outdoor courtyards and living spaces.
Pinwheel Plan and Purposeful Zoning
The pinwheel configuration is not just sculptural—it’s deeply functional. It naturally divides the home into social and private zones without corridors, encouraging intuitive movement while maximizing usable area.
-
Living room and kitchen open directly onto a forecourt terrace carved into the slope.
-
Outdoor spaces become natural extensions of indoor rooms, allowing gatherings large and small.
-
Private retreats, including a tranquil primary suite and shaded alcoves, invite restoration and solitude.
Every corner of Casa Calma feels intentional—framed by views, touched by daylight, and grounded in material honesty.
A Tranquil Dialogue Between Architecture and Landscape
Designed in collaboration with Shademaker Studio, the landscape architecture enhances the home’s serenity. Terraces, native plantings, and shaded areas respond to the site’s natural topography and climate, while expansive glass walls soften the weight of stone, ensuring that indoors and outdoors remain in constant conversation.
“Casa Calma is a home of contrasts—solid yet open, traditional yet modern, sculpted yet soft,” says Ravel Architecture.
























Casa Calma by Ravel Architecture is more than a house—it’s a contemporary retreat where architectural discipline meets emotional resonance. Grounded in regional materials and timeless spatial strategies, it offers a fresh, refined take on what it means to feel at home in Central Texas.