
- Project: Antriya House
- Architect: 23 Degrees Design Shift
- Location: India, Hyderabad
- Year: 2025
- Area: 1350 m2
- Photography: Shamanth Patil
Antriya House is a weekend home for a multi-generational family near Hyderabad. Sited on a long, narrow plot within a quiet suburban village, the residence weaves family dynamics, landscape, climate, and memory into a single, integrated design. Rather than spectacle, the architecture pursues quiet depth—deep overhangs, textured stone walls, serene water bodies, and calibrated thresholds that balance openness and privacy. The result is a thoughtful strand of regional modernism, where contemporary spatial logic dialogues with vernacular strategies and materials.

Site Strategy & Entry Sequence
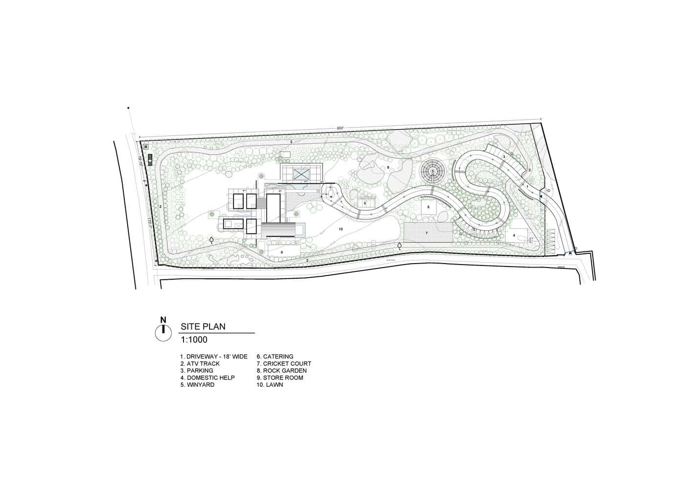
Approach is gradual and elusive. A curving drive mediates the scale of the site and delays full disclosure until arrival. Low vision-blocking walls and cut-through perspectives build anticipation. A majestic Peepal tree anchors the entry zone, creating a gathering place beneath its canopy before one crosses into the home.
The house is set toward the rear of the plot, allowing lawns and courtyards to buffer it visually and thermally. A surrounding water body wraps the base—cooling ambient air, deterring pests, and creating a reflective moat that softens the threshold between land and building.



Spatial Composition & Architecture
The residence is organized by three linear stone walls that set direction, privacy, and connectivity. Within these spines, the plan stretches across corridors and verandas. An overhang slab (8–10 ft spans) shelters glazing below from harsh sun while accommodating clerestories above. Generous 15 ft internal heights and an intermediate slab at 10 ft create layered spatial experiences. Living, dining, and verandas spill into each other beneath a continuous roof canopy; sliding glass panels dissolve boundaries with the landscape. Most bedrooms are on the ground level, while a single upstairs suite captures panoramic views over gardens.



Materials & Sensory Expression
A restrained palette brings clarity and tactility: neutral lime plaster unifies the mass; Khammam sandstone shapes the three defining walls with color and gravity; Markapuram slate floors run continuously indoors and out; reclaimed teak, live-edge wood, jute, and teak furnishings add warmth and memory; and black metal frames lend crisp graphic edges. The layering roots the home to its region while enabling flexibility, barefoot movement, and a subdued elegance.





Climate & Performance
Passive strategies are quiet but effective. Deep overhangs and clerestories temper solar gain; layered openings orchestrate cross-ventilation; the encircling water body cools air and moderates microclimate around the plinth. The extended canopy filters rain and sun while seasonal creepers provide additional shading. Durable, low-maintenance materials—stone, slate, teak, lime finishes—favor passive resilience over mechanical systems.




Living Atmosphere & Emotional Depth
Movement is deliberately varied—shaded verandas, courtyards, internal voids, and framed axes craft a reflective journey. The water mirrors ceiling and sky, drawing light inward. By day, spaces open to gardens for conversation, rest, meals, and play; by night, indirect lighting reveals the grain of stone and the silhouette of structure, balancing presence with tranquillity.










Drawings
Site Plan – 1:1000

Ground Floor Plan – 1:200

First Floor Plan – 1:200

Sections AA’ & BB’ – 1:200
