
- Project: An Apartment For A Software Developer
- Architect: Alexander Tischler
- Location: Russia, Moscow
- Year: 81
- Area: 2021 m2
- Photography: Yaroslav Lukiyanchenko
This apartment for a software developer by Alexander Tischler offers a stylish and efficient 871-square-foot interior crafted for modern urban living. Completed in 2021 in Moscow, the space reflects a refined balance of form and function—tailored to the lifestyle of a tech professional who values clean aesthetics and thoughtful design.


Refined Color Palette with Playful Accents
Dominated by taupe beige and dark gray, the apartment is unified through recurring design elements such as tinted glass partitions, ribbed textures, and bold egg-yellow accents. These details create visual cohesion while introducing contrast that enlivens the atmosphere.
The living room, viewed through a tinted glass doorway, is designed in two distinct emotional zones: a darker, more structured corner with a custom graphic cabinet, and a lighter lounge area anchored by a cozy sofa.


Separate Kitchen with Artistic Touches
Responding to the client’s request for separation between the kitchen and living room, the design maintains distinct spaces while encouraging flow. The kitchen houses a freestanding refrigerator—a deliberate choice to emphasize its independence from the cabinetry. Nearby, a minimalist Vibia vertical pendant provides artistic lighting.
In the dining area, a glass table on sleek metal legs is paired with vibrant eco-leather Bontempi chairs and round Vibia ceiling lamps, creating a focal point that blends modernity and warmth.







Innovative Workspace in the Bedroom
A highlight of the apartment is the 3.5-meter-long desk in the bedroom. Suspended without a support leg and carried by a hidden metal frame, this bold structure floats effortlessly against the wall. Above it, embossed panels add depth and texture, enhancing the workspace’s architectural appeal.
The dressing room is connected to the bedroom but separated by elegant tinted-glass partitions. Inside, a multifunctional storage system allows for display, deep drawers for accessories, and seasonal storage behind closet doors.



Clever Bathroom and Entryway Solutions
The bathroom showcases a striking yellow vanity module, echoing other yellow accents in the apartment like the hallway pouf and kitchen seating. The layout was modified from the original floor plan, allowing space to include a modern shower area.
A compact column cabinet at the entrance holds a washer, dryer, and built-in air extractor. With no space for a full closet, wall hooks and a small drawer unit handle daily outerwear, while a larger closet further down the hall stores essentials, including electrical and heating components.



Thoughtful Modifications for Enhanced Living
Originally, a hallway led from the entrance to the kitchen, but by relocating the entrance to the living room, the design team created the opportunity to enlarge the bathroom—enhancing both flow and utility.
Every piece of cabinet furniture in the apartment was custom-designed and manufactured by Alexander Tischler’s team, ensuring a seamless visual and functional result.

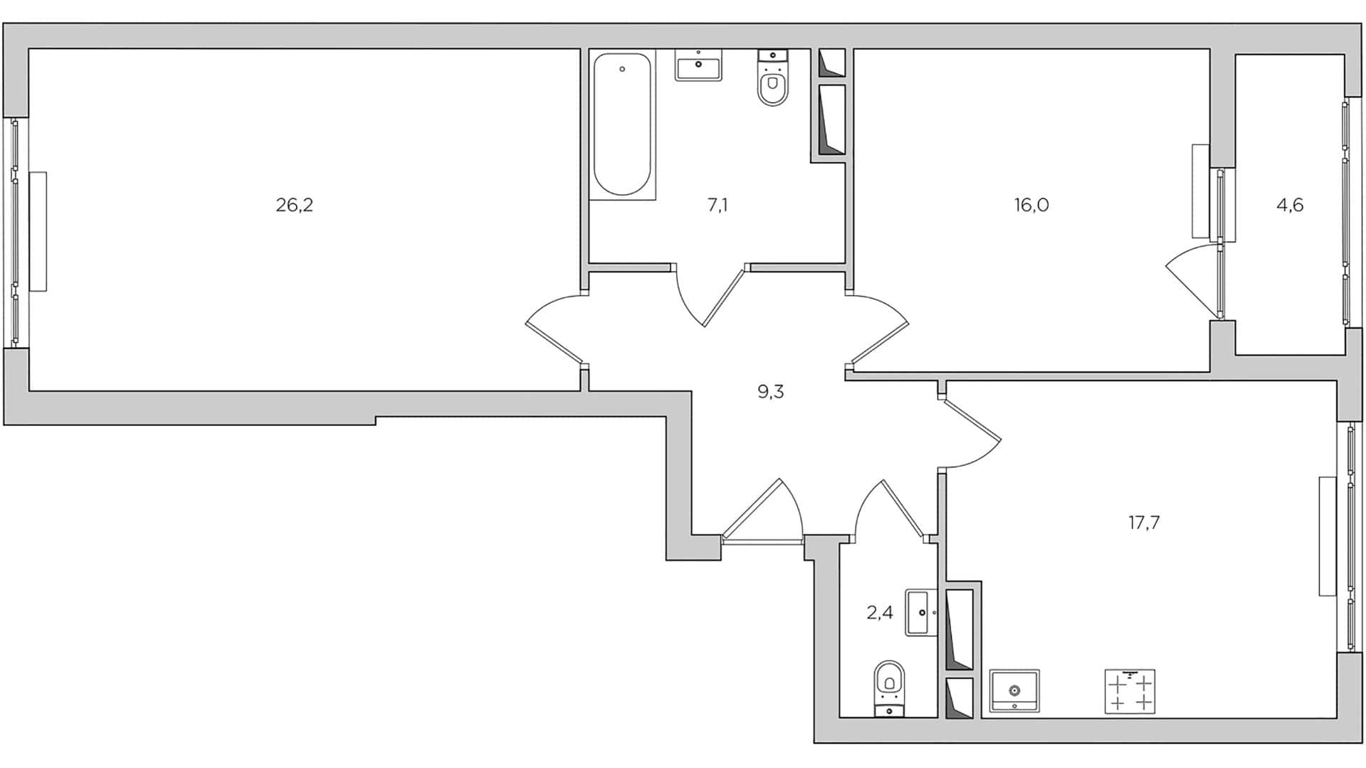
Floor Plan
Before

After
