178 House by 21 Arquitectos: Contemporary Living Integrated With Nature in Zapopan

  • Project: 178 House
  • Architect: 21 Arquitectos
  • Location: Mexico, Zapopan, Jalisco
  • Year: 2023
  • Area: 512 m2
  • Photography: Phocus Imagenes

In Zapopan, Jalisco, Mexico, 21 Arquitectos designed 178 House, a residence completed in 2023 that perfectly blends bold architectural expression with its sloping natural terrain. Rising on an ascending plot within a private development, the 178 House redefines contemporary living through spatial ingenuity, material richness, and a seamless relationship with nature.

Architectural Concept

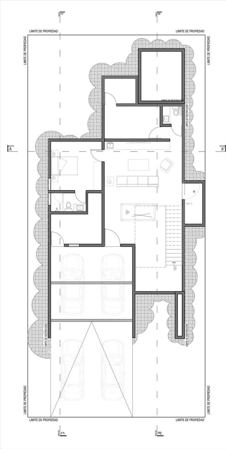
The design of 178 House responds directly to its topography. With the rear of the site elevated 1.5 meters above the street, the architects embraced this condition by lifting the main structure, introducing a semi-basement beneath the primary level. This gesture creates a dynamic architectural presence while embedding the residence into the landscape.

The exterior is characterized by solid geometries, sculptural subtractions, and illuminated voids. The result is a volumetric composition that appears to hover above the slope, reinforcing the home’s dialogue with its natural surroundings.

Entry Sequence and Central Atrium

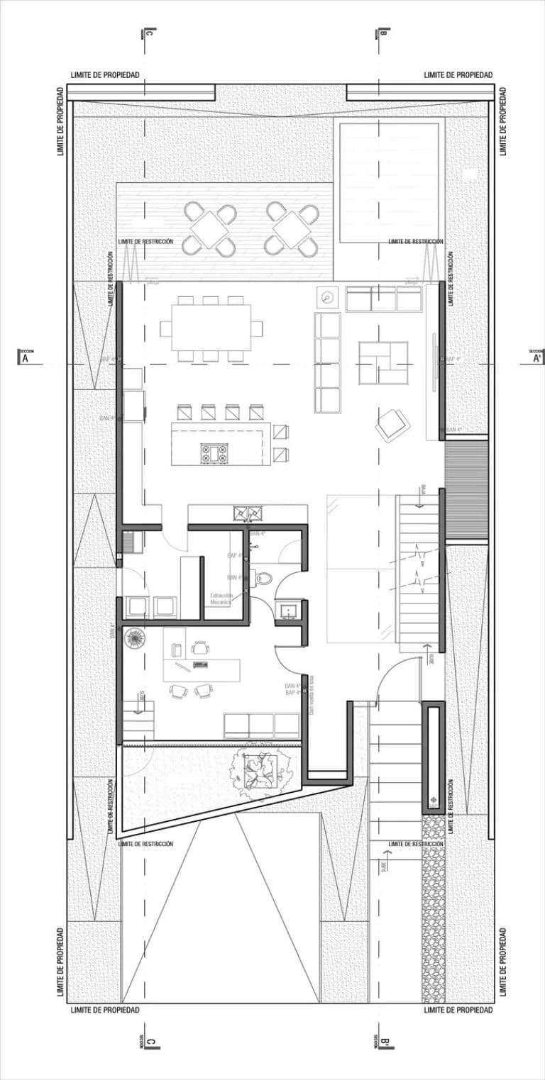
A side staircase carved into the terrain leads visitors to the main oak wood door. Upon entry, a spatial journey unfolds: the compressed entry hall dramatically opens into a triple-height core, anchored by a central atrium with a black olive tree. A glass bridge spans this vertical axis, visually connecting all four levels and allowing natural light to cascade through the home.

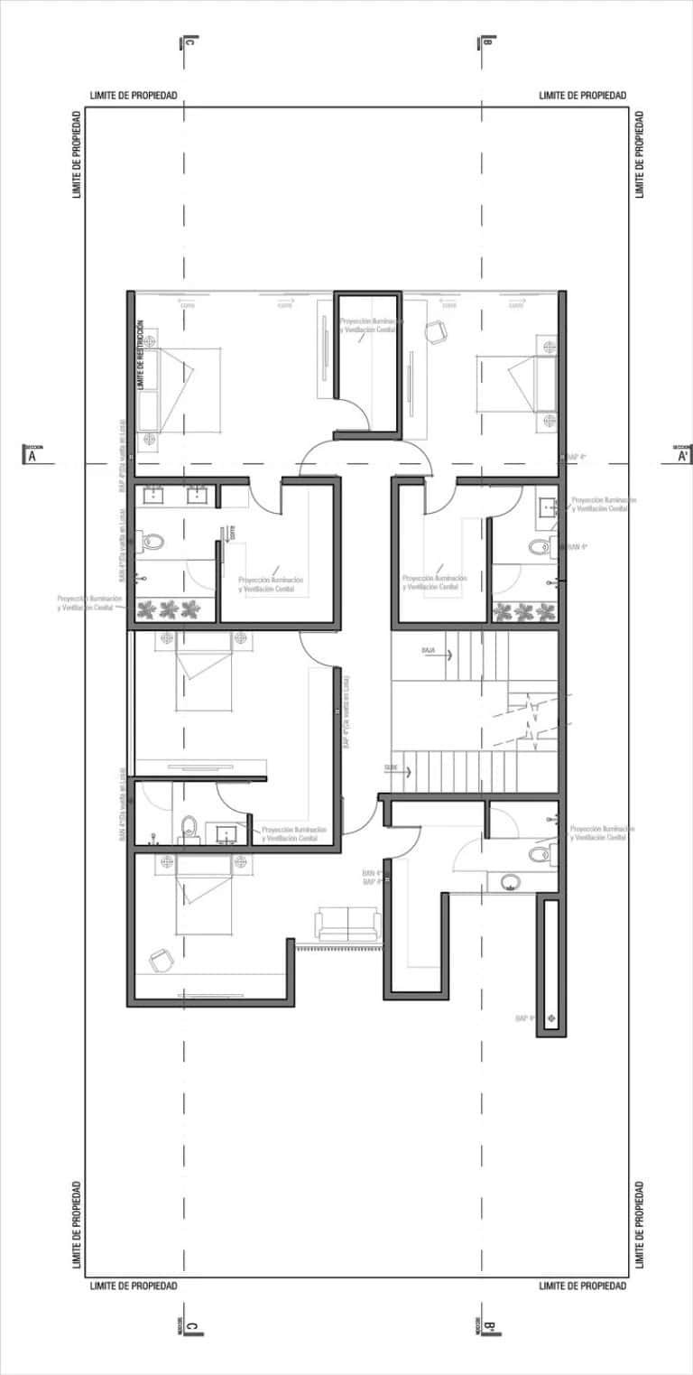
Interior Layout and Program

The house is organized into distinct but interconnected layers:

  • Ground Floor: A free-flowing open-plan layout minimizes structural supports to maximize space and light. Social zones extend toward the rear terrace and pool, blending into the shared forest beyond. This floor also includes a study, full bathroom, laundry, and storage.

  • Upper Floor: Designed for privacy, this level contains three bedrooms and a master suite with an en-suite bathroom and walk-in dressing room.

  • Semi-Basement: Adds versatility with a playroom, guest suite, service quarters, and ample storage.

  • Atrium Axis: A vertical spine that connects all levels, enhancing both circulation and visual fluidity.

Material Palette

The home’s material language balances modern austerity with warm accents:

  • White-coated masonry walls and a gray palette create a minimalist backdrop.

  • Exposed concrete adds structural honesty and an industrial edge.

  • Oak wood accents introduce warmth and elegance.

  • Large-format glazing blurs interior and exterior boundaries.

  • Saint Thomas marble elevates the luxury quotient with refined sophistication.

Integration With Nature

Perhaps the most defining aspect of 178 House is its symbiosis with the natural landscape. The rear terrace and pool extend seamlessly into the communal forest, offering uninterrupted immersion in nature. The elevated design not only respects the terrain but transforms it into an architectural asset, fusing structure and site into one cohesive experience.

A Model of Contemporary Mexican Architecture

178 House embodies 21 Arquitectos’ philosophy of design rooted in place, material honesty, and environmental sensitivity. Its careful orchestration of volumes, light, and textures makes it a benchmark for modern Mexican residential architecture.

Sleek modern house facade with minimalist architectural design featuring clean lines and contrasting dark and white exterior colors.
Photography © 21 Arquitectos
178 House by 21 Arquitectos: Contemporary Living Integrated With Nature in Zapopan
Photography © 21 Arquitectos
178 House by 21 Arquitectos: Contemporary Living Integrated With Nature in Zapopan
Photography © 21 Arquitectos
178 House by 21 Arquitectos: Contemporary Living Integrated With Nature in Zapopan
Photography © 21 Arquitectos
178 House by 21 Arquitectos: Contemporary Living Integrated With Nature in Zapopan
Photography © 21 Arquitectos
178 House by 21 Arquitectos: Contemporary Living Integrated With Nature in Zapopan
Photography © 21 Arquitectos
178 House by 21 Arquitectos: Contemporary Living Integrated With Nature in Zapopan
Photography © 21 Arquitectos
178 House by 21 Arquitectos: Contemporary Living Integrated With Nature in Zapopan
Photography © 21 Arquitectos
178 House by 21 Arquitectos: Contemporary Living Integrated With Nature in Zapopan
Photography © 21 Arquitectos
178 House by 21 Arquitectos: Contemporary Living Integrated With Nature in Zapopan
Photography © 21 Arquitectos
178 House by 21 Arquitectos: Contemporary Living Integrated With Nature in Zapopan
Photography © 21 Arquitectos
178 House by 21 Arquitectos: Contemporary Living Integrated With Nature in Zapopan
Photography © 21 Arquitectos
178 House by 21 Arquitectos: Contemporary Living Integrated With Nature in Zapopan
Photography © 21 Arquitectos
178 House by 21 Arquitectos: Contemporary Living Integrated With Nature in Zapopan
Photography © 21 Arquitectos
178 House by 21 Arquitectos: Contemporary Living Integrated With Nature in Zapopan
Photography © 21 Arquitectos
178 House by 21 Arquitectos: Contemporary Living Integrated With Nature in Zapopan
Photography © 21 Arquitectos

178 House by 21 Arquitectos: Contemporary Living Integrated With Nature in Zapopan 178 House by 21 Arquitectos: Contemporary Living Integrated With Nature in Zapopan 178 House by 21 Arquitectos: Contemporary Living Integrated With Nature in Zapopan 178 House by 21 Arquitectos: Contemporary Living Integrated With Nature in Zapopan

178 House by 21 Arquitectos: Contemporary Living Integrated With Nature in Zapopan 178 House by 21 Arquitectos: Contemporary Living Integrated With Nature in Zapopan 178 House by 21 Arquitectos: Contemporary Living Integrated With Nature in Zapopan 178 House by 21 Arquitectos: Contemporary Living Integrated With Nature in Zapopan 178 House by 21 Arquitectos: Contemporary Living Integrated With Nature in Zapopan
178 House by 21 Arquitectos: Contemporary Living Integrated With Nature in Zapopan

Posted by 21 Arquitectos

21 Arquitectos is a Mexico-based architecture studio offering design rooted in clarity, innovation, and grounded contextuality. With a focus on form, function, and thoughtful integration into its surroundings, the firm creates residential, commercial, and mixed-use solutions that balance creativity with pragmatism. Their work is characterized by clean lines, careful material selection, and an attentive response to site, climate, and user experience.