Shenzhen Yeahka C4 Office Design by JSPA Design in Shenzhen, China

Project: Shenzhen Yeahka C4 Office Design
Architects: JSPA Design
Location: Yeahka Kexing Science Park, Shenzhen, Guangdong, China
Area: 64,583 sf
Photographs by: Shengliang Su

Shenzhen Yeahka C4 Office Design by JSPA Design

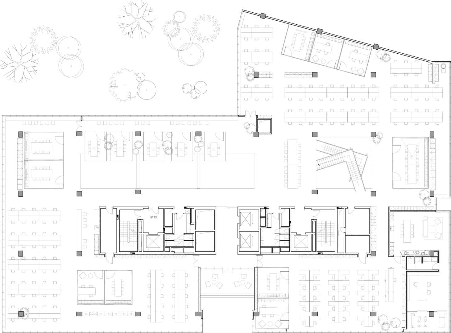
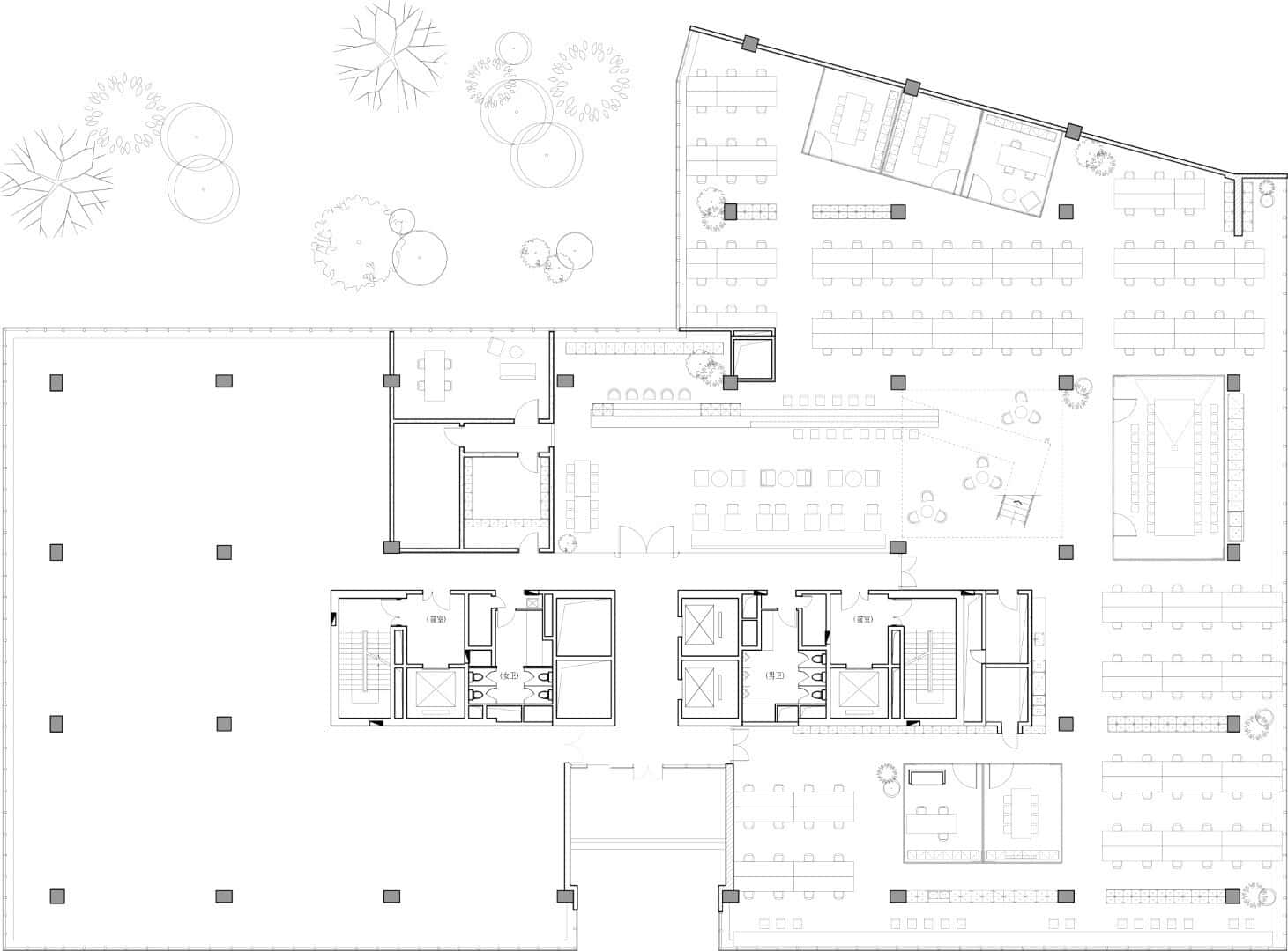
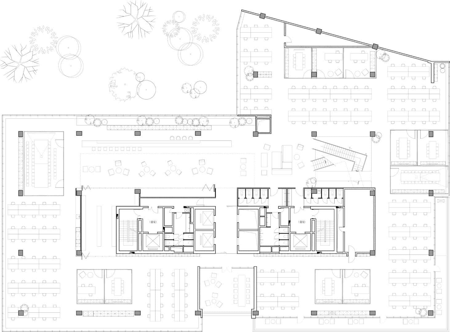
The Yeahka headquarter office project consisted in the refurbishment of three floors of the Kexing Science Park office building in Shenzhen for a total area of 6000 m2.

The design process started with the removal of all the superfluous claddings and decorations to come back to the original state of the building structure.

The idea was then to create openings in the concrete slabs to expand part of the space vertically, bring in more natural light and connect the three floors together.

Modern industrial office interior with exposed concrete beams, large windows, and contemporary furniture, showcasing innovative architecture and stylish design.

Located on the middle floor, the entrance gathers all the public functions of the program: reception, café, event space and product exhibition area. It is organized in a long transparent strip, to allow a total visual openness from one side of the building to the other. The geometry of the space is accentuated by a long reception desk sitting in front of the façade and behind which a landscape of cactuses filters the view to the outside.

The entrance public area is also dilatated vertically with a large opening in the ceiling expanding on three structural spans. Five meeting rooms are set-up in cantilever into this void, appearing like glass boxes floating in the reception area. They play with the instability sensation and create a strong spatial experience for the visitor. Work stations are kept invisible from the public but these suspended meeting rooms play the role of a showcase of the work activities going on in the office. It creates an interesting relationship between a visual connection and actual physical distance among the visitor and the office’s staff.

Shenzhen Yeahka C4 Office Design by JSPA Design in Shenzhen, China

The public area is also the place where a void on the three floors is created to become the main vertical circulation axis of the project. The staircase is conceived as a sculptural element composed of two L shaped structures overlapping flying from floor to floor with no intermediary support. Its apparent heaviness contrasts with the absence of visible structure and gives a strong aerial feeling.

The work stations of the office are organized into small units. Similar glass boxes hosting meeting rooms or manager private office are used to partition the working space into comfortable working open spaces.

For the materials we choose to use concrete block pavements, a commonly used outdoor public spaces flooring material, to bring it inside the office space. Through design, this very standard material becomes an interesting surface for the interior space. It creates the office’s public spaces floor and even continues vertically on the walls. It’s rough finishing emphasized by lighting comes in opposition with very sleek materials as glass, reglit or stainless steel.

-Project description and images provided by JSPA Design

Shenzhen Yeahka C4 Office Design by JSPA Design in Shenzhen, China

Shenzhen Yeahka C4 Office Design by JSPA Design in Shenzhen, China

Shenzhen Yeahka C4 Office Design by JSPA Design in Shenzhen, China

Shenzhen Yeahka C4 Office Design by JSPA Design in Shenzhen, China

Shenzhen Yeahka C4 Office Design by JSPA Design in Shenzhen, China

Shenzhen Yeahka C4 Office Design by JSPA Design in Shenzhen, China

Shenzhen Yeahka C4 Office Design by JSPA Design in Shenzhen, China

Shenzhen Yeahka C4 Office Design by JSPA Design in Shenzhen, China

Shenzhen Yeahka C4 Office Design by JSPA Design in Shenzhen, China

Shenzhen Yeahka C4 Office Design by JSPA Design in Shenzhen, China

Shenzhen Yeahka C4 Office Design by JSPA Design in Shenzhen, China

Shenzhen Yeahka C4 Office Design by JSPA Design in Shenzhen, China

Shenzhen Yeahka C4 Office Design by JSPA Design in Shenzhen, China

Shenzhen Yeahka C4 Office Design by JSPA Design in Shenzhen, China

Shenzhen Yeahka C4 Office Design by JSPA Design in Shenzhen, China

Shenzhen Yeahka C4 Office Design by JSPA Design in Shenzhen, China

Shenzhen Yeahka C4 Office Design by JSPA Design in Shenzhen, China

Shenzhen Yeahka C4 Office Design by JSPA Design in Shenzhen, China

Posted by Fidan

A young enthusiast with a passion for home decor and architecture, I love writing articles that inspire and guide readers in transforming their spaces into stylish, functional, and beautiful environments.