House Rooted in the Soil by KiKi ARCHi in Kunming, China

Project: House Rooted in the Soil
Architects: KiKi ARCHi
Location: Kunming, China
Area: 5,683 sf (site), 3,821 sf (building)
Year: 2023
Photographs by: Ruijing Photo Beijing

House Rooted in the Soil by KiKi ARCHi

Kunming, Yunnan Province, is a livable city with comfortable climatic and natural ecology, which attracts many sojourners to settle down. The newly completed mid-hill residence by KiKi ARCHi is in Kunming’s famous golf resort. The owner is a golf enthusiast, and he hopes that this house can provide rest space and take care of the needs of each family member so that they can enjoy the scenery and get close to nature to the greatest extent. After a year of design and renovation, the old single-storey building is now a stylish double-storey holiday house, which stands halfway up the hill, surrounded by green forests and cherry trees.

House Rooted in the Soil by KiKi ARCHi in Kunming, China

Soil has a temperature. The rammed earth house is warm in winter and cool in summer because of the attachment of mud. Crops that take root in warm soil produce grain in autumn. Wine jar sealed into mud cellar can brew long mellow… People’s dependence on and understanding of soil has accumulated a lot of life wisdom, which also inspired KiKi ARCHi. After research and investigation, the design team provides a bold idea:  let the house extend into the soil based on the characteristics of the original foundation and slope height difference, then make the single-storey building into a double one without destroying the main structure. This concept was a great surprise to the owner, as it meant an expansion of the square footage, also more functional and visual layers.

House Rooted in the Soil by KiKi ARCHi in Kunming, China

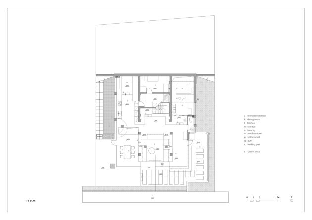
The space transformation started from the foundation columns. To plan the layout of the new underground floor, the design team analyzed more than ten exposed columns, including their position, height, stability, etc., This new floor is finally placed within a height of 3.6m to 2.9m with the help of the original slope. The dining, leisure, and fitness areas are in the front with the best view, while the kitchen, bathroom, and storage room are in the back end with a slightly lower height. The glass, as the skin of the building brings a lot of sunlight. The addition of round steel columns solves the support problem and provides a structural basis for the terrace extending from the upper floor. The diatom mud with moisture-proof and adsorption performance extends from the exterior wall to the interior, showing the beauty of the solid texture together with the delicate micro-cement. Thus, the once muddy slope transformed into a ‘glass box’ filled with daily life, breathing in the grass and trees.

House Rooted in the Soil by KiKi ARCHi in Kunming, China

The building structure gives the underground floor a free and flexible look, while the interior design shows the exploration desire, mystery, and originality of ‘deep into the earth’. The seats naturally formed in the leisure area through the clever combination of ground height and original columns are reminiscent of the malleability of soil. The tapering side windows in the kitchen and the arcs of daylight from the hot spring pool in the bathroom provide a cave-like experience. Under the switch between bright and dark, the immersed relaxing space presents a completely different contrast to the first floor.

House Rooted in the Soil by KiKi ARCHi in Kunming, China

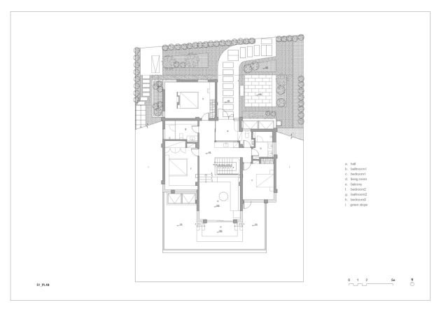
The warm wooden area is a staircase hall leading to the first floor, with an exposed white steel structure and slim handrail that create a beautiful visual line. Through upward, as into a wrapped ‘wooden box’, along the direction of light to find the exit, that is, into the small living room on the first floor. Here, the color temperature of the space begins to change, and everything is bright and warm. The entrance, water bar, sunken living room, and terrace are arranged on an axis, with 3 private bedrooms on either side. Local volcanic stone bricks extend from the outdoor path to the entrance, weakening the boundary between the interior and exterior. An inner window on the wall of the water bar connects the scenery of the front courtyard and back yard. The low wall of the staircase hall, with shelving, is both decorative and functional. All these Impressive details make the house more interesting.

House Rooted in the Soil by KiKi ARCHi in Kunming, China

With the completion of the renovation, the outdoor space has been increased three times. Courtyard walkways, terraces, small gardens, and diversified plants surround the house, creating more opportunities for enjoying nature and forming multiple entry routes. The carefully laid pebbles, slates, and outdoor preservative wood floors create a different feeling of staying in each area through the material, and the specially designed drainage device will form a small hanging waterfall on rainy days. Plants take root downward for better upward growth, like this house, it goes deep into the soil and nourishes a better future life with rich inner in the temperature of kinship.

-Project description and images provided by Sideview

House Rooted in the Soil by KiKi ARCHi in Kunming, China

House Rooted in the Soil by KiKi ARCHi in Kunming, China

House Rooted in the Soil by KiKi ARCHi in Kunming, China

House Rooted in the Soil by KiKi ARCHi in Kunming, China

House Rooted in the Soil by KiKi ARCHi in Kunming, China

House Rooted in the Soil by KiKi ARCHi in Kunming, China

House Rooted in the Soil by KiKi ARCHi in Kunming, China

House Rooted in the Soil by KiKi ARCHi in Kunming, China

House Rooted in the Soil by KiKi ARCHi in Kunming, China

House Rooted in the Soil by KiKi ARCHi in Kunming, China

House Rooted in the Soil by KiKi ARCHi in Kunming, China

House Rooted in the Soil by KiKi ARCHi in Kunming, China

House Rooted in the Soil by KiKi ARCHi in Kunming, China

House Rooted in the Soil by KiKi ARCHi in Kunming, China

House Rooted in the Soil by KiKi ARCHi in Kunming, China

House Rooted in the Soil by KiKi ARCHi in Kunming, China

House Rooted in the Soil by KiKi ARCHi in Kunming, China

House Rooted in the Soil by KiKi ARCHi in Kunming, China

House Rooted in the Soil by KiKi ARCHi in Kunming, China

House Rooted in the Soil by KiKi ARCHi in Kunming, China

House Rooted in the Soil by KiKi ARCHi in Kunming, China

House Rooted in the Soil by KiKi ARCHi in Kunming, China

House Rooted in the Soil by KiKi ARCHi in Kunming, China

House Rooted in the Soil by KiKi ARCHi in Kunming, China

House Rooted in the Soil by KiKi ARCHi in Kunming, China

Drawings

House Rooted in the Soil by KiKi ARCHi in Kunming, China

House Rooted in the Soil by KiKi ARCHi in Kunming, China

House Rooted in the Soil by KiKi ARCHi in Kunming, China

House Rooted in the Soil by KiKi ARCHi in Kunming, China

House Rooted in the Soil by KiKi ARCHi in Kunming, China

House Rooted in the Soil by KiKi ARCHi in Kunming, China

House Rooted in the Soil by KiKi ARCHi in Kunming, China

Posted by Fidan

A young enthusiast with a passion for home decor and architecture, I love writing articles that inspire and guide readers in transforming their spaces into stylish, functional, and beautiful environments.