
- Project: City Heights Residence
- Architect: SAOTA, ARRCC
- Location: South Africa, Cape Town
- Year: 2022
- Area: 1200 m2
Set high on Cape Town’s mountainside, the City Heights Residence by SAOTA and ARRCC is a bold architectural statement that fuses angular geometry with opulent materiality, panoramic views, and dynamic interiors. This private home, designed for a client with a passion for entertaining and comfort, is characterized by custom furniture, gem-like finishes, and a rich narrative of form and contrast.
Sculptural Architecture, Layered Living
SAOTA’s architectural design stacks the home vertically, with guest bedrooms positioned on the lower levels and the main living spaces and master suite elevated to optimize privacy and views. The middle level, which includes the primary entertainment and social zones, offers the most immersive experience, reached via a dramatic double-volume glass stairwell that frames mountain vistas.
“The home is dynamic—a place where unexpected materials combine to reflect the energy of its owner,” says ARRCC Director Mark Rielly.
Grand Entrance with Artistic Layers
The entrance hall immediately sets the tone:
-
Walnut paneling adds warmth
-
A metal-fleck ceramic piece by Chantal Woodman for OKHA rests on a suspended black swing server
-
A custom grey wool rug and marble-inspired flooring are paired with a ceramic art installation by Hennie Meyer, creating a sense of artistic curiosity
Entertainment Floor: Metallics, Warmth & Artistry
The main living level is a showcase of controlled contrasts:
-
Polished and patinated metals
-
Walnut and marble surfaces
-
Circular lighting features like the brass ring chandelier above the custom walnut dining table with marble lazy Susan
-
Rounded Arti-forte chairs and polygonal light installations echo the home’s angular architecture
The kitchen, set within this open-plan layout, features:
-
A patinated brass countertop
-
Inset dark marble detailing
-
Granite prep surfaces
-
An abstract Andrzej Urbanski painting from Everard Read
A slatted walnut screen separates the lounge, where a custom sofa with angled bend offers multiple sightlines—to the ocean, courtyard, and a mirror-backed television above a biofuel Emperador marble fireplace.
Decorative acoustic panels with brass detailing conceal integrated speakers. OKHA Gloob chairs, a mustard-felt recliner, and Tom Dixon accents add layers of personality and warmth.
Bar & Lounge: Intimate, Artistic, Refined
The bar area is defined by:
-
Pietra Paesina Laminam slabs
-
A slatted timber ceiling that wraps into the backlit wood shelving
-
Lee Broom pendant lights
-
Tom Dixon bar stools and Classicon tables from Limeline
The entire level opens to a climate-controlled terrace, with:
-
Custom outdoor seating
-
A cantilevered biofuel fireplace
-
An infinity pool overlooking Cape Town
Master Suite: A Personal Sanctuary
The top-floor master suite continues the palette of walnut, mustard, and stone. Highlights include:
-
Brass-lit walnut slatted walls
-
A geometric painting by Andrzej Urbanski
-
Linen-effect drapery softening angular lines
Signature furnishings include:
-
Kaggen Side Table by OKHA and Atang Tshikare
-
A marble-topped Tonic coffee table
-
Shany van den Berg artwork near the private lounge
This level offers complete immersion, both mentally and physically, into a world of elevated textures and curated calm.
A Unified Design Philosophy
Every detail of City Heights Residence by SAOTA and ARRCC speaks to a harmony of art, architecture, and individuality. Through dynamic layouts, bespoke pieces, and a material palette that is both bold and tactile, the home delivers a layered experience that reflects Cape Town’s natural drama and urban sophistication.
















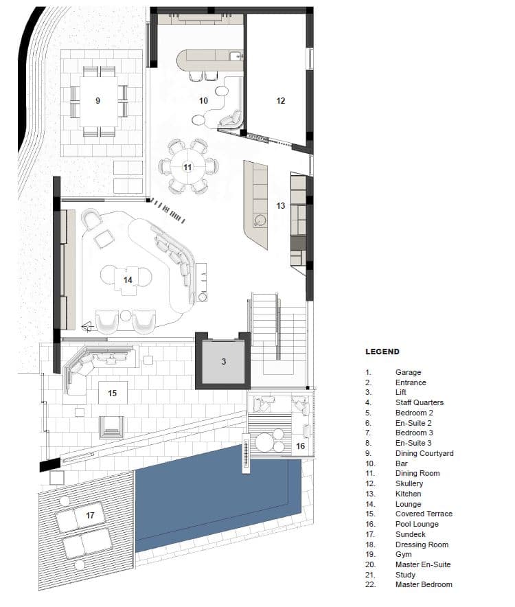
Floor Plans



