
- Project: 1,800 sf Moscow Apartment
- Architect: Alexander Tischler
- Location: Russia, Moscow
- Year: 2023
- Area: 170 m2
- Photography: Evgenii Kulibaba
Designed by Alexander Tischler, this 1,800 sf Moscow apartment is a perfect synthesis of sophistication, function, and heartfelt warmth. Completed in 2023, the space was envisioned for a couple who frequently host their children and grandchildren, making flexibility and comfort central to the design.


Open-Plan Living with Smart Transitions
The original developer layout separated the kitchen and living areas. Tischler’s team reimagined the floorplan, uniting these rooms into a spacious 55.5 m² open-plan kitchen–living space. Natural light pours through large windows, emphasizing the oak veneer wall panels and light porcelain flooring. A ceiling-mounted R9 audio system and a laser projector with a retractable screen ensure the space doubles as a refined home theater.
A deep-toned dark veneer kitchen with a functional niche for everyday appliances pairs with a quartz kitchen island that includes hidden outlets, drawers, and a wine cabinet. The minimalist approach continues with broken-tile porcelain backsplash, a hob with integrated extractor, and sleek pendant lighting by Vibia and CVL.





A Hallway That Serves Purpose
The entrance hallway features a floor-to-ceiling backlit mirror, console table, and cozy pouf. A wardrobe along the corridor wall and porcelain cladding creates a stylish yet practical transitional space. A guest bathroom was expanded by reclaiming part of a small corridor, allowing room for a shower clad in dark Italon porcelain tiles and wooden-textured ceramics.



Guest Bedroom Turned Home Office
The multifunctional guest room doubles as a home office and children’s bedroom. A Clei transformable sofa unfolds into twin beds. A wall-mounted desk stretches across the window with built-in drawers, flanked by tall cabinets for clothes and documents. This flexible room embodies the apartment’s theme: designed for today, prepared for tomorrow.



Serene Master Bedroom with Boutique Details
The master bedroom reveals the couple’s love for subtle tones and tactile richness. Ash-veneered wall panels accent the headboard, while porcelain stoneware with a stone texture frames the TV wall. A green-upholstered armchair and Kartell coffee table offer a gentle splash of color.
Tucked behind the bedroom is a luxury walk-in closet, complete with backlit shelving, glass-faced modules, a styler, and a vanity table beside a full-height mirror. Every shelf is illuminated, lending the space the air of a prima ballerina’s dressing room. A hidden cabinet stores perfume collections, and utilities are discretely concealed behind mirrored panels.




Stylish Guest Bathroom and Laundry Room
Originally a 10 m² bathroom, this space was reconfigured into a 7.3 m² bathroom and a separate laundry room. The bathroom includes a freestanding tub, shower with black artificial stone niches, and generous floor space. The laundry zone is highly functional, with a washer, dryer, drying cabinet, and ironing area beneath a hanging backlit cabinet. A dedicated cabinet houses cleaning supplies and a vacuum.


Guest-Ready Balcony Lounge
The balcony continues the oak veneer design language, transforming it into a tranquil retreat. Furnished with Bonaldo metal coffee tables and two armchairs, the area is set for relaxation and casual family moments.





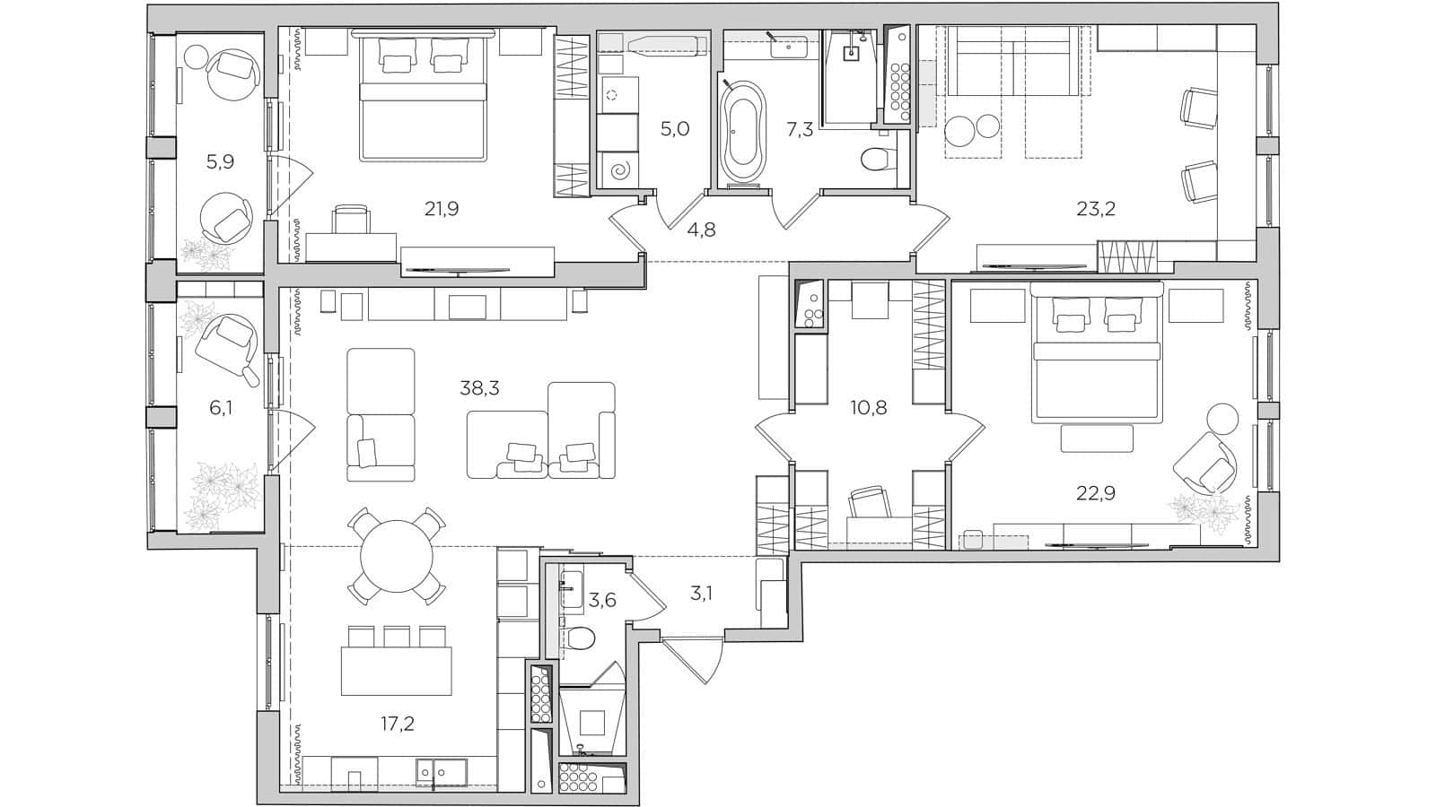
Floor Plan
Before

After
