The Boutique Shop on the Hill, Chongqing, China

Project: The Boutique Shop on the Hill
Architects: Basic Element Architecture Design
Location: Chongqing, China
Area: 7,319 sq ft (building), 6,522 sq ft (interior)
Photographs by: Zhang Qilin

The Boutique Shop on the Hill

The Boutique Shop on the Hill project is the latest development by Chongqing Basic Element Architecture Design. It is located in Chongqing’s Liangjiang New Area where it has access to vies of the picturesque Mountain Park. All of the characteristics of this design were planned in accordance with the modern architectural philosophy, combining elements of the local area in order to create a contemporary office space that has a unique identity suitable for its location.

Stylish modern interior design with sleek furniture, contemporary accents, and vibrant lighting, perfect for inspiring architecture and interior design ideas.

Project Background

The project is located at the heart of “Chongqing House” a development on 46 Cuiyu Rd., Chongqing’s Liangjiang New Area. The magnificent Earth Park can be appreciated on the west sidehill, while the east side delivers a view of the beautiful Mountain Park. On top of the hills, stilted constructions, ramps, backward terraces, yards and courtyards were all planed following a modern architectural language that combines elements from the local environment to create a contemporary space of office architecture with a unique regional identity. The original structure of the project was an empty “warehouse-style” construction located inside a creative industry complex. The owner desired to create a boutique space for furniture brands, as well as to provide a comfortable working environment for all kinds of people, portraying the lifestyle, architectural elements and collective memories familiar to the people of Chongqing, in an architectural space imbued with a renewed regional spirit.

The Boutique Shop on the Hill, Chongqing, China

Design Concept

To part away with the concept behind traditional furniture showrooms, the designer created a complete spatial experience imbued in an artistic boutique shop. It is indeed a simple yet open space created by combining the architectural elements of Chongqing’s residences.

To increase the vividness of after-sale use in the customer’s mind, improve pleasant experiences and induce desire of purchase, the designer breaks the conventional divisions of space by using different partition forms to cut spatial order and portray the relationship between far and near, high and low, as well as visually intermingled areas that infiltrate space.

This allows space to become the carrier, a place where the product is the protagonist. Just as the product is featured within the space, its appearance becomes even more refined and interesting as it acquires a substantial sense of quality. Furthermore, this space delivers an international perspective to the customer, where every angle presents a unique visual sense achieved by careful composition and well-thought combinations.

The designer makes use of contrasting cold and warm elements to better express the quality of the rich materials displayed in the furniture (leather, fabric, metal, etc.), by selecting a strong color contrast between serenity blue and rose quartz, as well as stone materials such as emery and terrazzo combined with warm wood floors. Through design, the space becomes integrated as a vast carrier for furniture, without losing ground to the merge of styles portrayed.

The match between serenity blue and rose quartz shortens the psychological interaction between the viewer and the space. Black, white and gray are used as the main tones of the atmosphere, where large blocks of contrasting colors attract the attention of visitors and provide them with a perfect background for photographs.

 

Social Media Value

To take pictures has become an important activity besides visiting and shopping, as customers desire to capture their interests with their mobiles. Let us attract the customers’ attention then, let them take photos and publish them on their social networks, and deliver greater value to all commercial spaces.

-Project description provided by Chongqing Basic Element Architecture Design

The Boutique Shop on the Hill, Chongqing, China

The Boutique Shop on the Hill, Chongqing, China

The Boutique Shop on the Hill, Chongqing, China

The Boutique Shop on the Hill, Chongqing, China

The Boutique Shop on the Hill, Chongqing, China

The Boutique Shop on the Hill, Chongqing, China

The Boutique Shop on the Hill, Chongqing, China

The Boutique Shop on the Hill, Chongqing, China

The Boutique Shop on the Hill, Chongqing, China

The Boutique Shop on the Hill, Chongqing, China

The Boutique Shop on the Hill, Chongqing, China

The Boutique Shop on the Hill, Chongqing, China

The Boutique Shop on the Hill, Chongqing, China

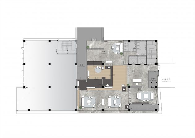
Floor Plan

The Boutique Shop on the Hill, Chongqing, China

Posted by Fidan

A young enthusiast with a passion for home decor and architecture, I love writing articles that inspire and guide readers in transforming their spaces into stylish, functional, and beautiful environments.