Noe House by Studio VARA – A Modern Home For A Scientist

Project: Noe House
Architects: Studio VARA
Location: Noe Valley, San Francisco, California, USA
Photographs by: Bruce Damonte

Noe House by Studio VARA

Noe House by Studio VARA - A Modern Home For A Scientist (2)

An old cottage dating from 1908 on a great location in Noe Valley. What do you do? Simple, you get Studio VARA to transform it into a modern home that will not only look fabulous but also provide you with everything that a brand new modern home would.
The Noe House is an open plan modern home built by transforming an old cottage for a research scientist located in San Francisco, California. Check out the details below!

Noe House by Studio VARA - A Modern Home For A Scientist (1)

Noe House by Studio VARA - A Modern Home For A Scientist (4)

From the architects: “A research scientist with an eye for detail approached us with a modest vision and a couple of basic practical needs: First, transform a 1908 Noe Valley cottage– with a history of subpar alterations – into a cohesive modern dwelling. Second, provide an enclosed garage in a neighborhood with tough parking and an organized home for a sprawling collection of wine. The result is a quiet house of 3500 sq. ft. with two distinct faces; one that provides privacy from urban street traffic, and another that opens up to expansive Bay views.”

Noe House by Studio VARA - A Modern Home For A Scientist (5)

Noe House by Studio VARA - A Modern Home For A Scientist (6)

Noe House by Studio VARA - A Modern Home For A Scientist (3)

The original cottage isn’t totally demolished though. There are traces of it preserved in the massing and circulation of the final building.
On the north side, the folding window wall allows the open living area to get a lot of natural light and fresh air as well as spectacular views of the city and East Bay or of the natural garden just below it. The master suite, which is located just above the main space, offers even more breathtaking views through a lofty private deck.

Noe House by Studio VARA - A Modern Home For A Scientist (7)

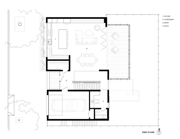
The plans

Noe House by Studio VARA - A Modern Home For A Scientist (8)

Noe House by Studio VARA - A Modern Home For A Scientist (9)

Noe House by Studio VARA - A Modern Home For A Scientist (10)

Noe House by Studio VARA - A Modern Home For A Scientist (11)

Posted by Fidan

A young enthusiast with a passion for home decor and architecture, I love writing articles that inspire and guide readers in transforming their spaces into stylish, functional, and beautiful environments.