Highgate Hill Townhouse Project by LLI Design in London, UK

Project: Highgate Hill
Architects: LLI Design
Location: London, United Kingdom
Area: 3,500 sqft
Photographs by: Courtesy of LLI Design

Highgate Hill Townhouse Project by LLI Design

LLI Design has recently finished their redesign project of a 7-story townhouse in Highgate, one of London’s most expensive suburbs.
The owners of the house liked the idea of living in a contemporary home but were also concerned that it could become cold and lack in personality. They wanted to create a new environment and they hired LLI Design to do it for them, therefore, the Highgate Hill townhouse received an amazing makeover.

Highgate Hill Townhouse Project by LLI Design in London, UK

LLI Design recently completed a total redesign and refurbishment of a 7 storey townhouse in Highgate, a leafy and desirable part of London.

The owners wanted to create a new environment; they liked the idea of having a contemporary house and agreed that the house lent itself to this, however they were concerned that contemporary design could be cold and impersonal.

The brief was to create a contemporary family home, not in a stark clinical sense, but rather, colourful and practical. The key to the overall success of the design was to re-think the dynamics of all the spaces and change the existing layouts to provide a design and flow which responded to their brief. The family had a large collection of vintage travel posters that they wished to display prominently around the house.

Highgate Hill Townhouse Project by LLI Design in London, UK

Layout

Although the house was c. 3500 sq ft, with generous room sizes, the house was very vertical comprising of 7 floors, with each room being effectively on a half landing; with a central core staircase connecting them. Overall the rooms seemed disconnected from each other without flow or relationship between them. The staircase and hallways were poorly lit and had a gloomy feel.

The design revolved around redefining the General Arrangements. We brought light into the staircase, by adding extra skylights on the top floor and also adding a floor-to-ceiling window on the third floor half landing.

We decided that it would have been logistically complex to replace the existing staircase, so we stripped back the existing structure, re-clad it in a greyed oak and re-designed spindles, banister rail and newel posts, to be in keeping with the new warm contemporary aesthetic.

Highgate Hill Townhouse Project by LLI Design in London, UK

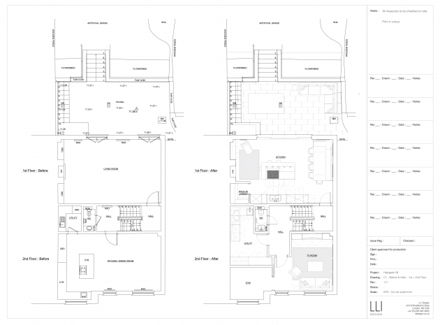
Ground Floor

The Ground floor configuration was maintained, however we redesigned the office to double as a guest room and as a study in which we lined one wall with write on / wipe off wallpaper. All home office paraphernalia, such as printers and filing was contained within a bespoke joinery cupboard. We redesigned the otherwise redundant understair space to accommodate a bespoke joinery shoe storage unit.

Highgate Hill Townhouse Project by LLI Design in London, UK
Before
Highgate Hill Townhouse Project by LLI Design in London, UK
After

First Floor

The existing kitchen was located on the second floor which was impractical as the heart of the home. We relocated the kitchen to the first floor at rear of the property which had existing access to the terrace and garden by way of 2 pairs of french doors in a masonry wall. We removed the wall and the french doors and increased the opening to 4 metres. We installed full height sliding doors set in varnished hardwood frames, creating a light and airy kitchen with a great views and direct access to the terrace and garden.

We positioned the kitchen island to look out over the garden and created a separate pantry. There was an existing chimney but no fireplace, so we specified a gas ribbon fire and added some casual seating in the form of a chaise longue. On the other side of the room we designed a bespoke fitted banquette and specified a contemporary oak dining table to seat 12 comfortably.

Highgate Hill Townhouse Project by LLI Design in London, UK

Highgate Hill Townhouse Project by LLI Design in London, UK

Highgate Hill Townhouse Project by LLI Design in London, UK

Highgate Hill Townhouse Project by LLI Design in London, UK

Highgate Hill Townhouse Project by LLI Design in London, UK

Highgate Hill Townhouse Project by LLI Design in London, UK

Highgate Hill Townhouse Project by LLI Design in London, UK

Highgate Hill Townhouse Project by LLI Design in London, UK

Second Floor

The second floor where the kitchen was originally located was reconfigured with a larger landing at the top of the stairs, a very generous sized utility room, a gym and a family TV room.

The utility room featured bespoke joinery units to accommodate an airing cupboard, washing machine and dryer; which were installed at waist height with washing baskets under so there was no need to bend down to change over the washing. The high level utility room joinery units where white matt lacquer and the low level units were midnight blue with a white composite worktop. These clean lines were set against a feature wall of Cole & Son Fornasetti “Clouds” wallpaper.

The TV Room featured a bespoke illuminated TV wall cabinet with numerous cupboards and alcoves for displaying items and accessories.

Highgate Hill Townhouse Project by LLI Design in London, UK

Highgate Hill Townhouse Project by LLI Design in London, UK

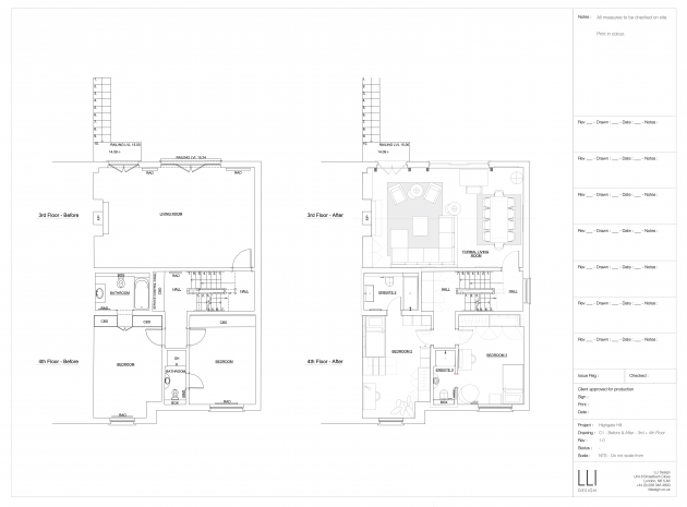
Third Floor

On the third floor, we wanted to create a welcoming, calming, formal living room. We removed the existing french windows and juliette balcony over the terrace below and replaced them with floor to ceiling casement windows set in varnished hardwood frames. We removed the existing fireplace and designed and installed a contemporary bespoke Pietra Serena stone fireplace with clean confident lines. Either side of the fireplace we designed bespoke storage and display units along with a decorative log store feature. We specified a large and very comfortable L shaped sofa and ottoman as well as some comfy armchairs with tables and lamps beside them.

Highgate Hill Townhouse Project by LLI Design in London, UK

Modern living room with built-in white shelving, stylish fireplace, comfortable sofas, and large windows with sheer curtains, showcasing contemporary interior design and cozy decor.

Highgate Hill Townhouse Project by LLI Design in London, UK

Highgate Hill Townhouse Project by LLI Design in London, UK

Fourth Floor

On the fourth floor, bedrooms 2 and 3 and accompanying ensuite bathrooms were redesigned as spaces personal to the family’s children. In bedroom 2 we designed a fun mid-height bed unit with storage shelves to be used as steps up to the bed and a den underneath with sliding doors. We redesigned the bathroom with a wall of mirror fronted storage and specified interesting feature tiles.

Bedroom was 3 designed to provide a “cool” bedroom – with a secret space to chat / hang out with friends. We designed a bespoke joinery unit which when opened contained a chest of drawers upon which we created an upholstered seating area.

For the bed we designed a bespoke matt lacquered truckle bed with cushions along one side so it could double as a daybed. In the rest of the room we specified a bubble chair and incorporated a writing desk.

Highgate Hill Townhouse Project by LLI Design in London, UK

Highgate Hill Townhouse Project by LLI Design in London, UK

Highgate Hill Townhouse Project by LLI Design in London, UK

Highgate Hill Townhouse Project by LLI Design in London, UK

Highgate Hill Townhouse Project by LLI Design in London, UK

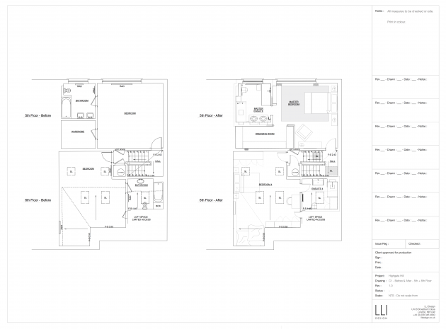
Fifth Floor

The existing master suite on the fifth floor comprised an over sized bedroom, a small ensuite bathroom and a small dressing room. We reconfigured this to become a smaller but better proportioned bedroom, a luxurious bathroom suite and designed an extended bespoke dressing room.

Highgate Hill Townhouse Project by LLI Design in London, UK

Highgate Hill Townhouse Project by LLI Design in London, UK

Highgate Hill Townhouse Project by LLI Design in London, UK

Highgate Hill Townhouse Project by LLI Design in London, UK

Highgate Hill Townhouse Project by LLI Design in London, UK

Highgate Hill Townhouse Project by LLI Design in London, UK

Sixth Floor

On the sixth floor, bedroom 4 was redesigned to create an exciting environment with a bespoke bed which incorporated illuminated display alcoves.

Highgate Hill Townhouse Project by LLI Design in London, UK

Home Automation

Considered lighting design throughout the property was also an important element of the overall design, particularly so in a townhouse where vertical circulation throughout the building was constant and multiple floors would be used simultaneously. The lighting scheme was controlled on a Rako Intelligent lighting system which allowed for different moods / scenes to be set, both indoor and outdoor.

In open plan overlapping areas such as the kitchen / dining room / terrace, the lighting design becomes an important feature of how the spaces function. We designed scenes for “dining”, “cooking”, “watch TV”, “entertaining” etc as relevant to each room, which set different moods, adjusting lights both inside and outside to create an atmosphere relevant to the function of the room at that time.

To further enhance the house we designed and specified a whole house music distribution system with 7 different zones, playing through in-ceiling speakers and outdoor speakers in the garden / terrace, allowing different music to be played across each zone all controllable from devices such as an iPhone / iPad etc.

Summary

By changing the dynamics of the spaces involved we maximized the available space creating a contemporary, but colourful, warm and inviting home; with a harmonious feel as you move up the house, but with each floor having its own character.

As with the majority of LLI Design’s projects, the construction, joinery, home automation and landscaping were carried out by our in-house vertically integrated teams – Pegasus Property & Pegasus Automation.

Awards

The project recently won an award in the Interior Design, London category of the United Kingdom Property Awards, in association with Bentley Motors.

 

About LLI Design

London interior designers LLI Design offer a comprehensive design service creating beautifully crafted interiors for discerning clients. The creative team is led by Design Director Linda Levene. Her background as a fashion and textile designer is reflected in her love of form, texture and colour.

Recent projects include the interior design and modernisation of properties in Hampstead, Belgravia and Highgate including a 10,000 sq ft victorian residence, a 12,000 sq ft new build home and the co-joining and re-planning of two apartments to provide a single luxury penthouse.

LLI Design

Highgate Hill Townhouse Floor Plans

Highgate Hill Townhouse Project by LLI Design in London, UK

Highgate Hill Townhouse Project by LLI Design in London, UK

Highgate Hill Townhouse Project by LLI Design in London, UK

Highgate Hill Townhouse Project by LLI Design in London, UK

Posted by Fidan

A young enthusiast with a passion for home decor and architecture, I love writing articles that inspire and guide readers in transforming their spaces into stylish, functional, and beautiful environments.