Dilido Haus, Gabriela Liebert, Dilido Island, Miami Beach, Florida

DILIDO HAUS is a single family home designed with a unique vision, the expression of both, personal story and architectural history. The intention was to achieve an architecture of dignity and honesty. The ideas built upon the strong foundations of Miami’s rich history, geography and culture, while using the latest construction technologies and high quality materials.

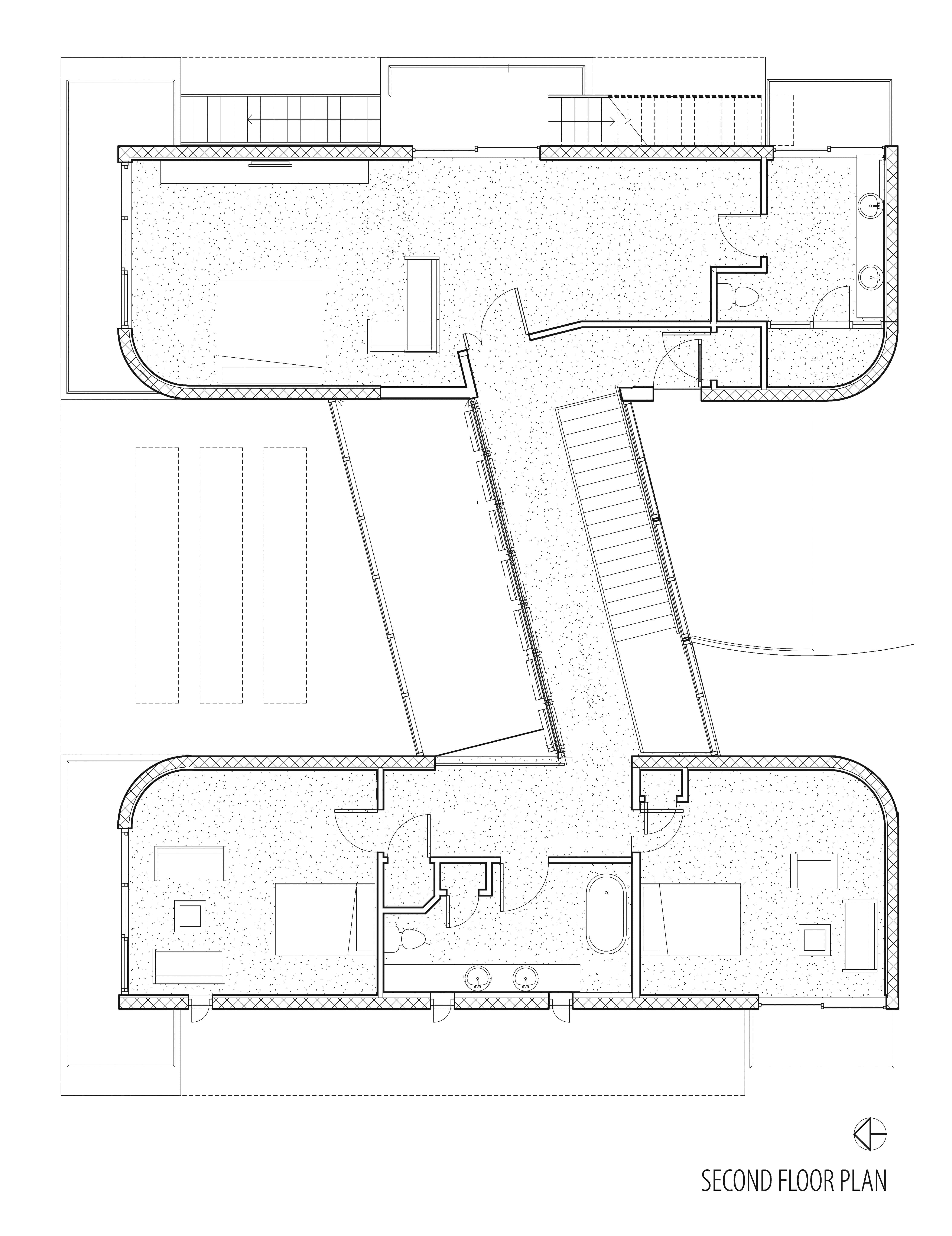
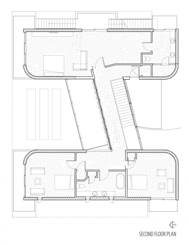
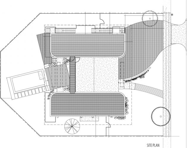
The front façade of Dilido Haus expresses the key characteristics of MIMO, an architectural style that evolved from Art Deco and Streamline. A rectangle with horizontal proportions, flat roof broad overhanging eaves echoed by horizontal projections of balconies, creating what appear to be two thin continuous gray lines drawn across the white façade and dividing it into three elements: roof terrace, second and ground floor. Two identical white, round cornered, windowless blocks form a mirror image of one another facing a generous interior courtyard, partially enclosed by a double height store front glass wall. A thin bridge
connects the both volumes. The solidity of the blocks contrasts with their interior openness to the courtyard and the exterior balcony projections that expand the interior spaces. The horizontal planes appear to be suspended by traditional, thin round steel columns. The curved wall separates the car port from the exterior steps leading to the main entrance landing, strengthening the central axis shift to the west and producing a subtle but noticeable asymmetry. From the front door, the main axis is
projected onto the floor as a mosaic line, running in serpentine motion across the central interior space to the exterior covered back patio, dipping into the pool and finding and end point on the wall of the water feature.

Dilido Haus was built using poured in place concrete. Due to the sandy terrain of the island, more than 30 pilotis, approximately 12 meters (40 feet) deep support the foundation. The glass windows and doors resist 110 Km/h (177 miles per hour) winds. The first floor is elevated 75 cm (2.5 feet) above the 100 year flood plain.

_DSC4193

_DSC4282

_DSC4312

_DSC4348

depuhl-150425-15HVD01 Dilido-0890-r.tif

depuhl-150425-15HVD01 Dilido-9096-Main Room (1)

depuhl-150426-15HVD01 Dilido-1034-r.tif

depuhl-150427-15HVD01 Dilido-1126-Front Elevation

C:UsersGabrielaDesktopDILIDOPDFPERMIT-10-03-14DILIDO-A102 VIEWS

C:UsersGabrielaDocumentsdilido-2014-08-04-new-permit.pdf second floor plan

Posted by Maya Markovski

Maya Markovski is an architect and the founder of ArchitectureArtDesigns.com, an established online publication dedicated to architecture, interior design, and contemporary living. Combining professional expertise with editorial precision, she curates and produces content that showcases outstanding architectural works, design innovation, and global creative trends. Her work reflects a commitment to promoting thoughtful, well-crafted design that informs and inspires a worldwide audience of professionals and enthusiasts alike.