Casa EE by A4estudio: A Sun-Oriented Concrete Retreat in Mendoza

  • Project: Casa EE
  • Architect: A4estudio
  • Location: Argentina, hacras de Coria, Luján, Mendoza
  • Year: 2023
  • Area: 510 m2

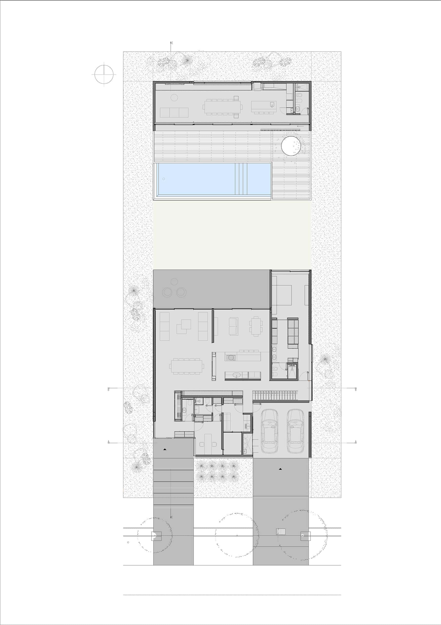
Located in the private residential neighborhood of Chacras de Coria, in Luján de Cuyo, Mendoza, Casa EE by A4estudio is a refined 510 m² residence that artfully balances sunlight management, privacy, and spatial efficiency. Completed between 2019 and 2023, the project was built by Jorge Estrada with landscape design by Elina Llaver.

Set against the backdrop of the Andes Mountains, Casa EE occupies a flat suburban plot. Designed as a compact two-level home, it includes four bedrooms and an integrated quincho/parrilla (Argentinian barbecue area) at the rear of the site. The project responds to strict site coverage regulations while embracing the desire for double-height social spaces—pushing the design toward a vertical organization from the start.

A Dialogue Between Light and Form

The architects made a decisive gesture by closing the house to the street (south) and situating service and utility spaces along this edge. In contrast, the northern façade is fully opened to maximize natural light for the main living and dining areas. A dramatic 16-meter vierendeel beam spans this opening, doubling as a vertical brise-soleil that regulates solar exposure throughout the year. This structural-luminous element casts dynamic shadows that evolve with the seasons, enhancing both comfort and aesthetic depth.

On the upper floor, a complementary gesture opens the southern side to create a semi-private courtyard, framed by a massive exposed concrete beam. This contrast of orientations allows the home to breathe while offering secluded spaces upstairs for more intimate uses.

Material Strategy and Thermal Comfort

Casa EE is defined by its dual material stratification. The lower level features insulated cladding, supporting thermal efficiency in core spaces. Above, exposed concrete dominates the upper layer, giving the house a sculptural and monumental character. This layered materiality helps scale the home relative to its surroundings and establishes a tactile relationship between indoors and out.

By merging passive solar strategies, robust material choices, and intelligent spatial zoning, Casa EE exemplifies A4estudio’s architectural language—minimal yet grounded in context.

Casa EE by A4estudio - Modern concrete house façade evening a4estudio
Photography © A4estudio
Casa EE by A4estudio - Corner detail contemporary home design a4estudio
Photography © A4estudio
Casa EE by A4estudio - Front elevation minimalist house a4estudio
Photography © A4estudio
Casa EE by A4estudio - Linear geometry contemporary home a4estudio
Photography © A4estudio
Casa EE by A4estudio - Courtyard seating area modern house a4estudio
Photography © A4estudio
Casa EE by A4estudio - Double height courtyard skylight a4estudio
Photography © A4estudio
Casa EE by A4estudio - Rear view poolside modern house a4estudio
Photography © A4estudio
Casa EE by A4estudio - Garden terrace pool minimalist home a4estudio
Photography © A4estudio
Casa EE by A4estudio - Reflection pool modern facade a4estudio
Photography © A4estudio
Casa EE by A4estudio - Glass façade living space reflection a4estudio
Photography © A4estudio
Casa EE by A4estudio - Symmetrical facade reflecting pool a4estudio
Photography © A4estudio
Casa EE by A4estudio - Corner terrace concrete wall detail a4estudio
Photography © A4estudio
Casa EE by A4estudio - Garden terrace seating modern home a4estudio
Photography © A4estudio
Casa EE by A4estudio - Terrace lounge furniture minimalist home a4estudio
Photography © A4estudio
Casa EE by A4estudio - House entrance minimalist façade a4estudio
Photography © A4estudio
Casa EE by A4estudio - Concrete house side garage view a4estudio
Photography © A4estudio
Casa EE by A4estudio - Front corner detail modern house a4estudio
Photography © A4estudio
Casa EE by A4estudio - Upper corner window detail a4estudio
Photography © A4estudio
Casa EE by A4estudio - Corner frame detail concrete and glass a4estudio
Photography © A4estudio
Casa EE by A4estudio - Double height living room with art a4estudio
Photography © A4estudio
Casa EE by A4estudio - Upstairs corridor wood and glass a4estudio
Photography © A4estudio
Casa EE by A4estudio - Minimalist corridor wooden doors a4estudio
Photography © A4estudio
Casa EE by A4estudio - Upstairs corridor window wall a4estudio
Photography © A4estudio
Casa EE by A4estudio - Long corridor glass facade view a4estudio
Photography © A4estudio
Casa EE by A4estudio - Courtyard pebble roof and sunlight a4estudio
Photography © A4estudio
Casa EE by A4estudio - Framed view mountains through courtyard a4estudio
Photography © A4estudio
Casa EE by A4estudio - Andes mountain view framed courtyard a4estudio
Photography © A4estudio
Casa EE by A4estudio - Glass corner study area with mountain view a4estudio
Photography © A4estudio
Casa EE by A4estudio - Art and shadows double height space a4estudio
Photography © A4estudio
Casa EE by A4estudio - Wood panel corridor with window end a4estudio
Photography © A4estudio
Casa EE by A4estudio - Gallery view above living area a4estudio
Photography © A4estudio
Casa EE by A4estudio - Bedroom terrace with circular skylight a4estudio
Photography © A4estudio
Casa EE by A4estudio - Interior courtyard view curved skylight a4estudio
Photography © A4estudio
Casa EE by A4estudio - Terrace curved sky opening a4estudio
Photography © A4estudio
Casa EE by A4estudio - Round skylight sculptural detail a4estudio
Photography © A4estudio
Casa EE by A4estudio - Upper floor terrace casting stripes a4estudio
Photography © A4estudio
Casa EE by A4estudio - Dining room wood panel wall art a4estudio
Photography © A4estudio
Casa EE by A4estudio - Living room glass wall pool view a4estudio
Photography © A4estudio
Casa EE by A4estudio - Exterior corner chair glass wall a4estudio
Photography © A4estudio
Casa EE by A4estudio - Covered terrace with circular cutout a4estudio
Photography © A4estudio
Casa EE by A4estudio - Aerial front view modern home a4estudio
Photography © A4estudio
Casa EE by A4estudio - Backyard pool and modern residence a4estudio
Photography © A4estudio
Casa EE by A4estudio - Wooden furniture open kitchen area a4estudio
Photography © A4estudio
Casa EE by A4estudio - Rear façade poolside glass wall a4estudio
Photography © A4estudio
Casa EE by A4estudio - Sunlit modern poolside facade a4estudio
Photography © A4estudio
Casa EE by A4estudio - Pool reflection modern façade evening a4estudio
Photography © A4estudio
Casa EE by A4estudio - Double height dining and shelving area a4estudio
Photography © A4estudio
Casa EE by A4estudio - Kitchen island and living space contrast a4estudio
Photography © A4estudio
Casa EE by A4estudio - Living room corner artwork and garden a4estudio
Photography © A4estudio
Casa EE by A4estudio - Bedroom with view to modern pool a4estudio
Photography © A4estudio
Casa EE by A4estudio - Living room pool view and exterior a4estudio
Photography © A4estudio
Casa EE by A4estudio - Backyard pool and guest house a4estudio
Photography © A4estudio
Casa EE by A4estudio - Main entrance dark wood doorway a4estudio
Photography © A4estudio
Casa EE by A4estudio - Front façade linear design lighting a4estudio
Photography © A4estudio
Casa EE by A4estudio - Glass corner office dark cladding a4estudio
Photography © A4estudio
Casa EE by A4estudio - Entry hallway view to garden a4estudio
Photography © A4estudio
Casa EE by A4estudio - Wine cellar display wooden rack a4estudio
Photography © A4estudio
Casa EE by A4estudio - Wine cellar glass cabinet interior a4estudio
Photography © A4estudio
Casa EE by A4estudio - Guest house glass façade poolside a4estudio
Photography © A4estudio
Casa EE by A4estudio - Evening pool view house illuminated a4estudio
Photography © A4estudio
Casa EE by A4estudio - Twilight living room and kitchen a4estudio
Photography © A4estudio
Casa EE by A4estudio - Twilight kitchen dining room a4estudio
Photography © A4estudio
Casa EE by A4estudio - Façade at night full reflection a4estudio
Photography © A4estudio
Casa EE by A4estudio - Twilight reflection modern façade a4estudio
Photography © A4estudio
Casa EE by A4estudio - Covered terrace night lighting a4estudio
Photography © A4estudio
Casa EE by A4estudio - Front façade straight view at dusk a4estudio
Photography © A4estudio
Casa EE by A4estudio - Angled night view modern home a4estudio
Photography © A4estudio
Casa EE by A4estudio - Front corner night lighting detail a4estudio
Photography © A4estudio
Casa EE by A4estudio - Front façade entryway evening a4estudio
Photography © A4estudio
Casa EE by A4estudio - Garage entry concrete home at night a4estudio
Photography © A4estudio
Casa EE by A4estudio - Corner perspective night façade a4estudio
Photography © A4estudio
Casa EE by A4estudio - Mountain view from courtyard evening a4estudio
Photography © A4estudio
Casa EE by A4estudio - Twilight courtyard mountain view a4estudio
Photography © A4estudio
Casa EE by A4estudio - Dusk front façade minimalist home a4estudio
Photography © A4estudio

Casa EE by A4estudio: A Sun-Oriented Concrete Retreat in Mendoza

Casa EE by A4estudio: A Sun-Oriented Concrete Retreat in Mendoza Casa EE by A4estudio: A Sun-Oriented Concrete Retreat in Mendoza Casa EE by A4estudio: A Sun-Oriented Concrete Retreat in Mendoza Casa EE by A4estudio: A Sun-Oriented Concrete Retreat in Mendoza Casa EE by A4estudio: A Sun-Oriented Concrete Retreat in Mendoza

Posted by A4estudio

A4estudio is an award-winning architecture firm based in Mendoza, Argentina, recognized for its commitment to sustainable design and contextual architecture. Founded in 2004, the studio is currently led by architect Leonardo Codina and has developed a diverse portfolio of residential, commercial, cultural, and landscape projects that respond sensitively to the surrounding environment and local traditions. The studio’s design philosophy centers on the relationship between architecture and nature, often integrating raw materials, natural lighting, and passive environmental strategies to enhance spatial experience and ecological performance. A4estudio’s work is characterized by minimalist forms, poetic materiality, and a deep respect for the cultural and natural landscape of Argentina. Their acclaimed projects, such as the Casa Codina and Entre Cielos Hotel, have been featured internationally and reflect the studio’s dedication to craftsmanship, innovation, and timeless design.