
- Project: V4 House
- Architect: Studio MK27
- Location: Brazil, São Paulo
- Year: 2012
- Area: 1291 m2
- Photography: Nelson Kon
A Minimal Presence in a Garden Neighborhood
The V4 House by Studio MK27 is an unusual case of restraint in São Paulo’s dense residential context. While zoning laws allowed a much larger construction, the architects opted for a single-level pavilion that nearly disappears from the street. Its design is guided by the principle of scale, ensuring the house forms an appropriate relationship with the site and surrounding gardens.
A Living Room as a Veranda
At the heart of the project is the living room, positioned at the front and sheltered by a delicate exposed concrete beam. Floor-to-ceiling glazed doors line both sides of the space, retracting completely to merge the front garden, living room, and back patio into one continuous sequence. The effect is a home that acts like a large veranda—open, shaded, and deeply integrated with the landscape.
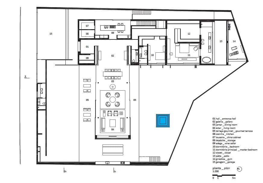
Spatial Organization
-
Front Pavilion: Living room and open kitchen beneath the concrete beam.
-
Roof Terrace: Above this block, a solarium deck provides an outdoor lounge and sunlit garden extension.
-
Private Areas: Bedrooms and bathrooms arranged discreetly, buffered from the street.
-
Outdoor Integration: Gardens flow around and through the house, blurring edges of architecture and nature.
Materiality and Atmosphere
The palette emphasizes simplicity:
-
Exposed concrete as structural beam and roof deck.
-
Glass walls for transparency and full integration with gardens.
-
Wood and neutral finishes in interiors, giving warmth to the minimal envelope.
Inside, spaces are calm and fluid, designed in neutral tones to allow natural light, greenery, and shadows to define the atmosphere.
Landscape as Architecture
The landscape design by Isabel Duprat enhances the home’s horizontal character. Gardens on both sides of the living space create dual orientations, reinforcing cross-ventilation and continuous views. The rooftop deck becomes an additional “garden level,” extending outdoor living vertically.
A Pavilion of Restraint
Where most houses in São Paulo’s garden neighborhoods dominate their plots with multistory massing, the V4 House demonstrates restraint and elegance. Its decision to occupy less ground than permitted underscores Studio MK27’s sensitivity to proportion, context, and the essential qualities of light, air, and greenery.















