Spring Kindergarten in Wanchai by Joey Ho Design

Spring Kindergarten in Wanchai by Joey Ho Design: Design concept

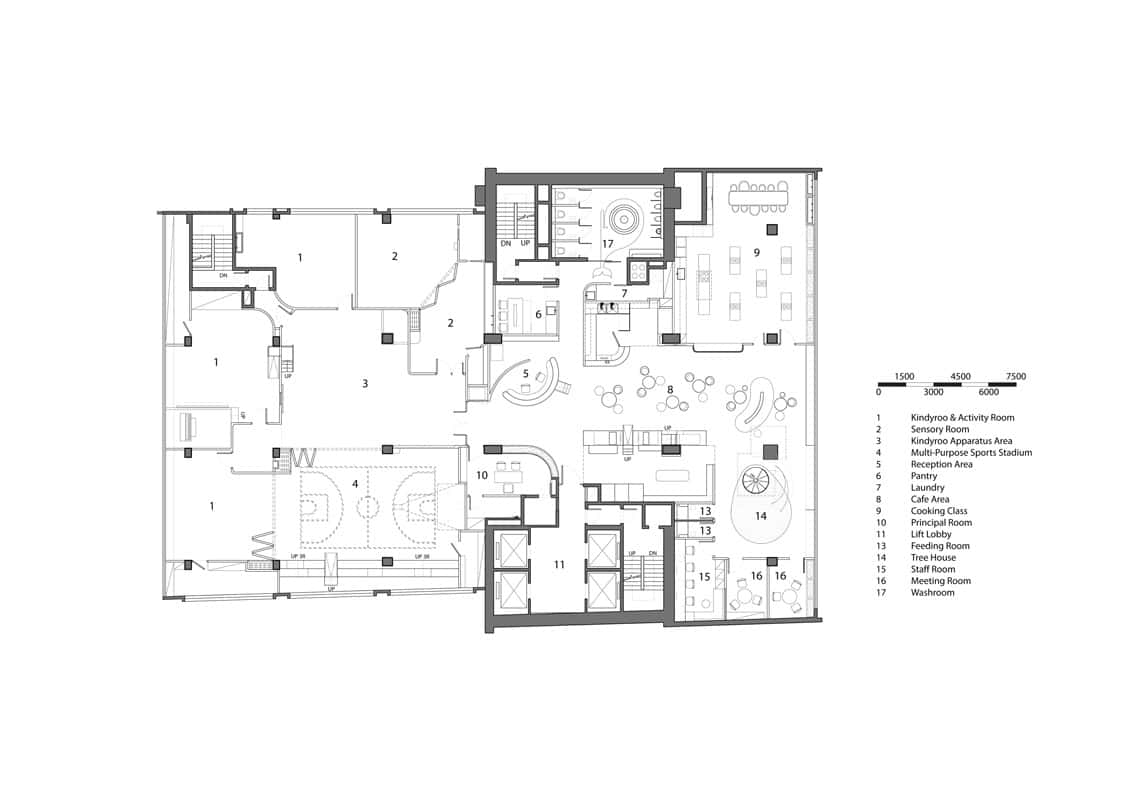
Spring is a newly established learning center for children with the aim to help them achieve their development and learning potential during the crucial growth years. With this philosophy in mind, the designer came up with a concept that would enrich the learning experience — dual perspective. By bringing together the perspectives of a child and an adult, and manifested in the space, furniture and details, it is hoped to facilitate a dialogue and interaction between the children, parents and educators. Throughout the centre, fairy tale-like cliches gave way to a neutral palette of white, light green, pastel blue and wood, with a few touches that bring back happy childhood memories. The tree houses and swings in the cafe are inspired by the outside greenery, and a hilly relief feature create cozy cocoons for reading or internet surfing.

 Two furniture systems catering to children and adults respectively have been designed and placed together in the various functional spaces. For example, the reception counter is fitted with stairs to allow kids to climb up and communicate with the staff directly. The cooking studio is modeled after a professional kitchen, equipped with stainless steel worktops and kitchen equipment which are reduced to child dimensions to give about an authentic cooking experience. Likewise, the bathroom features a dual height washbasin in the form of a fountain, which lets adults and children share the same facility and thereby forging a closer relationship.

01

02

03

04

06

08

09

10

floor plan

Design Company:        Joey Ho Design Limited

Designer:                     Joey Ho

Design team:               Noel Chan

Branding Design:         Eddy Yu & Hung Lam (Co Design Limited)

Location:                      Centre Point, 181-185 Gloucester Road, Wanchai, Hong Kong

Area:                             697 sq. m. (7,500 sq. ft.)

Completion (date) :      March 2013

Finishing materials :    Clear Glass, Clear Mirror, Glass, Wood Veneer, Laminated floor, Paint, Vinyl Floor, Fabric, Corian, Marble, Tiles, Carpet, Mirror Stainless Steel, Hairline Stainless Steels

Photographer :              Dick Liu

Posted by Anna

Anna is a blog writer with a degree in English, a dedicated cat lover, and a decoration enthusiast. Always on the lookout for the latest trends and creative ways to style spaces, Anna 's passion for writing and design shines through in her content. She shares her love for home decor, creative expression, and all things feline, inspiring her readers with fresh and imaginative ideas. With a keen eye for detail and a flair for decoration, Anna brings a unique perspective to every post.