Portixol I Home by PMA Studio in Mallorca, Spain

Project: Portixol I Home
Architects: PMA Studio
Location: Mallorca, Spain
Area: 1,011 sf
Photographs by: Pernilla Danielsson

Portixol I Home by PMA Studio

Mallorca, Spain – PMA Studio is pleased to reveal pictures of the minimalist holiday home, situated in the charming neighborhood of Portixol, in Palma de Mallorca.

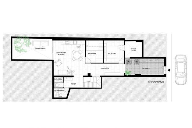
The project consists in the complete renovation of a traditional rowhouse, situated on a very narrow plot. Despite the slender shape of the property, the planning ensured that the interiors of the home still received plenty of light.

The proposed distribution takes advantage of the most of natural light, by putting the living room at the end of the plot, next to the main patio. A large sliding glass door allows occupants to expand their living space outdoors.

Portixol I Home by PMA Studio in Mallorca, Spain

At the front of the property there is a generous entrance, with a sitting area and storage space. The entrance door and a window to the patio flood this area with natural light.

The main bedroom is situated next to the entrance, while the children bedroom occupies the area where the floor plan narrows, with a glass door opening onto the living area and a skylight to provide better lighting.

A double sink entirely made of natural stone is located in the vestibule immediately next to the living room, where the plot expands. The two bathrooms are accessed through this area, which also gives access to a metallic custom-designed staircase, leading to the rooftop.

On the rooftop there is a laundry room and an outdoors kitchen. An L-shaped bench covered in local limestone is built on one side of the terrace.

Portixol I Home by PMA Studio in Mallorca, Spain

“Moving throughout the home, the expansion and contraction of the space defines the distribution and the different degrees of privacy.” managing director of the studio, Pablo Madrid states.

“As the clients were keen for the house to have a timeless aesthetic, natural materials and light colors were used throughout the space.” he continues.

Ceramics, limestone flooring and exposed wooden beams resonate with the Mallorca tradition, while black window frames and fixtures were chosen to connect the house with the Scandinavian roots of the clients.

Minimalist Nordic furniture pieces are mixed with local decor made of straw and natural fabric.

Portixol neighborhood develops around a historic fishing harbor of the city of Palma. In the latest years it has become one of the trendiest and sought after areas in Mallorca.

Portixol I Home by PMA Studio in Mallorca, Spain

About PMA Studio

PMA Studio is a leading architectural company based in Palma de Mallorca. The office is currently working on a variety of residential and commercial projects between Mallorca and Madrid.

PMA Studio was founded in Mallorca by Pablo Madrid. Prior to establishing his own practice, he gained international experience in the UK and Vietnam and was awarded with the 1st place at “BCN Thiniking Challenge II” an 3rd place at “Plug In” Competition by Pladur.

-Project description and images provided by PMA Studio

Portixol I Home by PMA Studio in Mallorca, Spain

Portixol I Home by PMA Studio in Mallorca, Spain

Portixol I Home by PMA Studio in Mallorca, Spain

Portixol I Home by PMA Studio in Mallorca, Spain

Portixol I Home by PMA Studio in Mallorca, Spain

Portixol I Home by PMA Studio in Mallorca, Spain

Portixol I Home by PMA Studio in Mallorca, Spain

Portixol I Home by PMA Studio in Mallorca, Spain

Portixol I Home by PMA Studio in Mallorca, Spain

Portixol I Home by PMA Studio in Mallorca, Spain

Portixol I Home by PMA Studio in Mallorca, Spain

Portixol I Home by PMA Studio in Mallorca, Spain

Portixol I Home by PMA Studio in Mallorca, Spain

Portixol I Home by PMA Studio in Mallorca, Spain

Portixol I Home by PMA Studio in Mallorca, Spain

Portixol I Home by PMA Studio in Mallorca, Spain

Portixol I Home by PMA Studio in Mallorca, Spain

Portixol I Home by PMA Studio in Mallorca, Spain

Plans

Portixol I Home by PMA Studio in Mallorca, Spain

Portixol I Home by PMA Studio in Mallorca, Spain

Portixol I Home by PMA Studio in Mallorca, Spain

Posted by Fidan

A young enthusiast with a passion for home decor and architecture, I love writing articles that inspire and guide readers in transforming their spaces into stylish, functional, and beautiful environments.