
- Project: PH Helguera
- Architect: OADD Arquitectos
- Location: Argentina, Villa del Parque, Buenos Aires
- Year: 2023
- Area: 94 m2
- Photography: Bruto Studio
PH Helguera, designed by OADD Arquitectos, is a bold renovation project in Villa del Parque, Buenos Aires. What was once a dark carpentry shop has been transformed into a luminous and contemporary residence of 1,011 square feet (94 m²). The project exemplifies the adaptive reuse of Argentina’s traditional “PH” housing typology, breathing new life into a structure while preserving traces of its history.
From Carpentry Shop to Contemporary Home
The central challenge of PH Helguera was to redefine an old “ph” (propiedad horizontal), a housing typology characteristic of Buenos Aires, into a welcoming family home. The original structure was composed of closed, dimly lit rooms, unsuitable for modern living. OADD Arquitectos responded with a radical redesign: opening the interior to a longitudinal patio that now functions as the social and spatial heart of the home.
Patio as a Social Catalyst
The patio is the project’s defining element. Acting as an urban void within the dense fabric of Villa del Parque, it links the living room and kitchen with an outdoor grill area, seamlessly accommodating daily family life as well as larger social gatherings. By separating the bedrooms onto a slightly elevated plane, the architects improved both lighting and privacy, ensuring balance between communal and intimate spaces.
A generous terrace crowns the residence, conceived as a catalyst for outdoor living. This elevated platform encourages relaxation, recreation, and an enhanced connection with the surrounding neighborhood.
The “Coconut Paradigm”: Materiality and Contrast
One of the project’s most striking aspects is its material language, which pays homage to the building’s origins. The design incorporates exposed brick walls—robust and tactile—paired with a smooth whitewashed interior. This interplay of rough and refined surfaces creates what the architects call the “coconut paradigm”: an architectural metaphor where the coarse exterior shell contrasts with a delicate, luminous core.
This dialectic of contrasts—old and new, rough and smooth, past and present— is key to the home’s identity. By reinterpreting preexisting conditions, OADD Arquitectos created a dwelling that respects its history while projecting a bold vision of contemporary living.
Reinterpreting Tradition Through Innovation
PH Helguera demonstrates how adaptive reuse can reshape urban living. Rather than erasing the past, the project embraces it, integrating the building’s former identity into its renewed existence. This approach not only honors the character of the neighborhood but also reflects the evolving story of Buenos Aires’ iconic PH typology.
























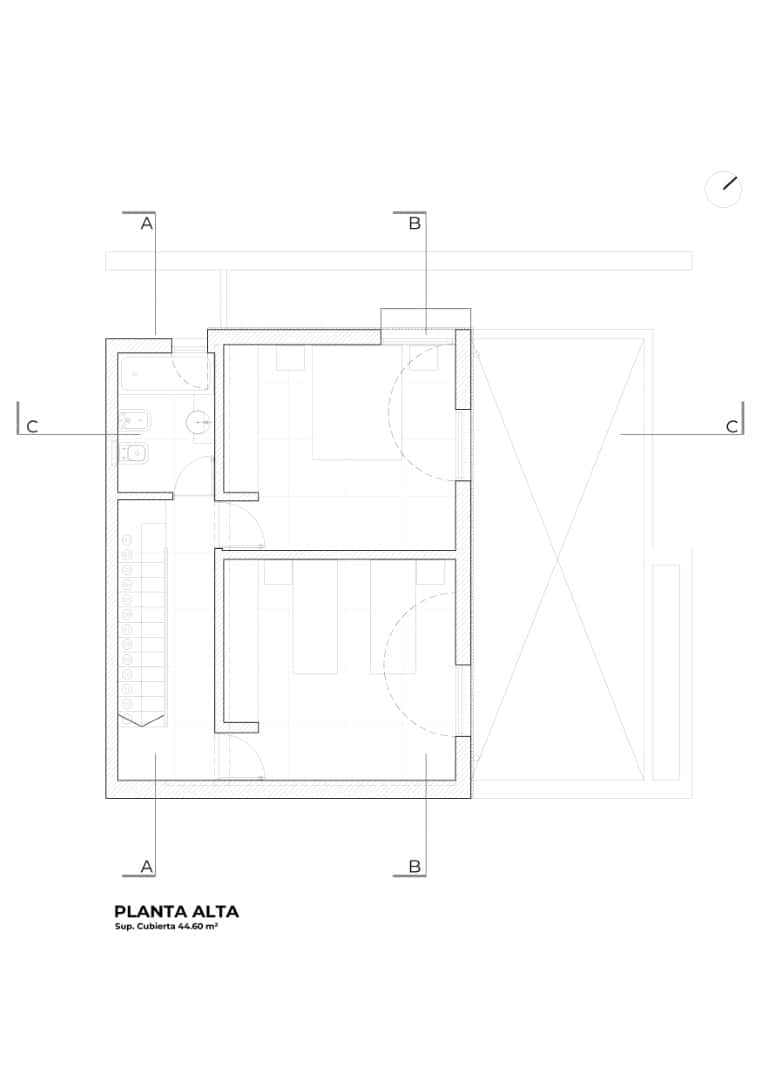
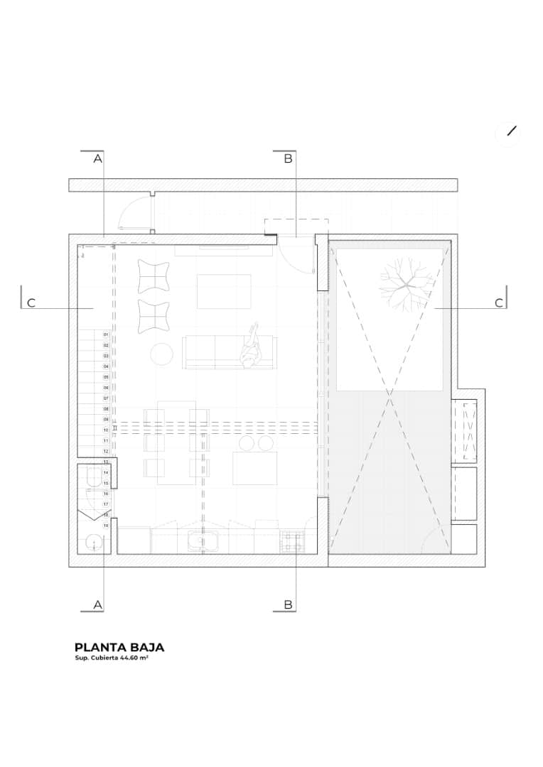
Drawings


