
- Project: SUBBOTA Apartment
- Architect: PROJECT905
- Location: Russia, Moscow
- Year: 2024
- Area: 52 m2
- Photography: Varvara Toplennikova
Project: SUBBOTA Apartment
Architects: PROJECT905
Location: Moscow, Russia
Area: 559 sf
Year: 2024
Photographs by: Varvara Toplennikova
SUBBOTA Apartment by PROJECT905
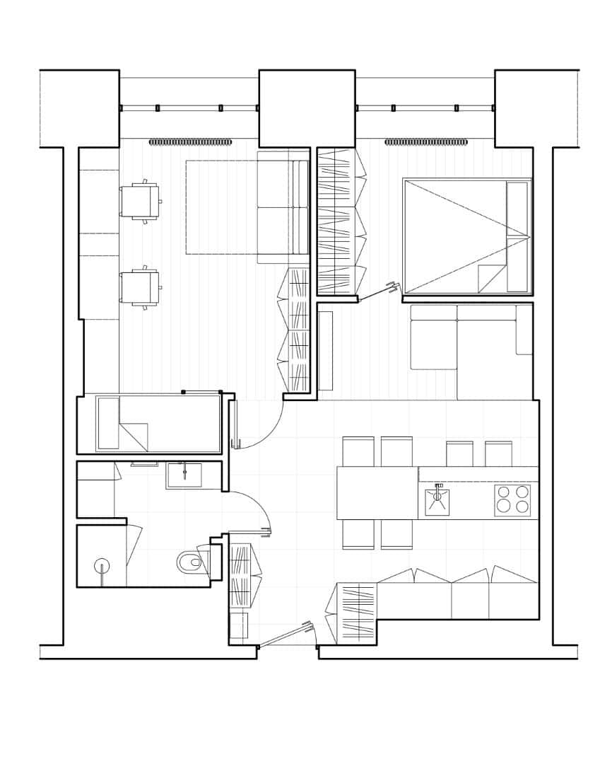
The apartment with an area of 52 m2 was designed for a married couple with two children and a dog as a temporary accommodation. The family planned to move to a larger apartment in two years.
Our goal in this project was to find solutions in which life in a small space would be as comfortable as in a large one.
Although the area is limited and the apartment has only two windows, the clients asked us to place all required functional zones: a kitchen-dining room, a sofa area with TV, a parents’ bedroom and a children’s room, including a folding sofa for a nanny and areas for playing and studying, a bathroom with a laundry zone, plenty of storage systems.
But, nevertheless, the aesthetic quality of the space is as important for the clients as its function, because the family spends a lot of time in it.
The common room combines the functions of living room, dining room, kitchen and hall. We combined the kitchen cupboards and the wardrobe into a single wooden volume and placed it at the entrance to the room.
The dining table is attached to the kitchen island. A compact corner sofa forms the living area. It is very difficult to maintain order in small spaces therefore we designed many hidden storage systems.
Despite of the small area, this room looks spacious. It is illuminated by natural light passing through the upper window in the interior partition, dividing sofa zone from the parents’ bedroom. The parents’ bedroom is the smallest room in the apartment, one of its walls is completely occupied by a built-in wardrobe. White color and total absence of any details on facades hide roomy storage compartments.
Mirrors behind the bed make the space visually bigger. The furniture in the children’s room is designed as a single multifunctional object made of wood. The study desk merges to a bunk. Because the floor area of the apartment isn’t large, multifunctionality was made the priority.
The interior of the apartment is minimalist, and even austere. The same floor tiles are in the kitchen area and in bathroom, walls are white, and furniture is made of wood of the same color tone as floorboard.
The clients planned to rent out this apartment in the future, but living in it turned out to be so comfortable that they decided to stay.
-Project description and images provided by PROJECT905