NH25 Loft by Standard Studio in Amsterdam, The Netherlands

Project: NH25 Loft
Architects: Standard Studio
Location: Amsterdam, The Netherlands
Area: 3,982 sq ft
Photographs by: Courtesy of Standard Studio

NH25 Loft by Standard Studio

The NH25 Loft is located in the heart of Amsterdam, in an old canal house to be more precise. Standard Studio have undertaken a complete makeover project recently and we are glad to be able to showcase their amazing result. Most of their work was focused on bringing natural light to the interior as it was quite limited, but they have also changed up the layout so that it would have a better flow, creating a modern, open floor plan dwelling.

NH25 Loft by Standard Studio in Amsterdam, The Netherlands

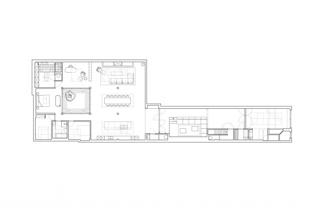
In the city centre of Amsterdam a hidden gem is built in an old canal house. The canal house was built in the beginning of the 17th century. From the street the only part visible is big double garage door that marks the entrance. The loft is entered through the garage where is space for an old classic car and bikes. Adjacent to the entrance you come in at the sitting pit carried out with a home cinema.

The loft is mostly built in a former courtyard without any windows providing day light. Central in the lay-out Standard Studio designed a patio in the middle of the space bringing in the day light and adding some outdoor space. All the program like, bedrooms, bathroom, walk in closet and kitchen are situated around the patio. The patio is used to organize all the program which still allows the space to feel very open.

To add more natural day light six extra big roof lights are created to provide a lot of light to the spaces around the courtyard. Even though the loft is in the middle of a residential courtyard there is a lot of privacy because no direct visible connection is made through the surrounding buildings. The end result is a bright and vibrant open floorplan that suits the life style of the inhabitants. Open but private.

Standard Studio

NH25 Loft by Standard Studio in Amsterdam, The Netherlands

NH25 Loft by Standard Studio in Amsterdam, The Netherlands

NH25 Loft by Standard Studio in Amsterdam, The Netherlands

NH25 Loft by Standard Studio in Amsterdam, The Netherlands

NH25 Loft by Standard Studio in Amsterdam, The Netherlands

NH25 Loft by Standard Studio in Amsterdam, The Netherlands

NH25 Loft by Standard Studio in Amsterdam, The Netherlands

NH25 Loft by Standard Studio in Amsterdam, The Netherlands

NH25 Loft by Standard Studio in Amsterdam, The Netherlands

NH25 Loft by Standard Studio in Amsterdam, The Netherlands

NH25 Loft by Standard Studio in Amsterdam, The Netherlands

NH25 Loft by Standard Studio in Amsterdam, The Netherlands

NH25 Loft by Standard Studio in Amsterdam, The Netherlands

NH25 Loft by Standard Studio in Amsterdam, The Netherlands

NH25 Loft by Standard Studio in Amsterdam, The Netherlands

NH25 Loft by Standard Studio in Amsterdam, The Netherlands

NH25 Loft by Standard Studio in Amsterdam, The Netherlands

NH25 Loft by Standard Studio in Amsterdam, The Netherlands

NH25 Loft by Standard Studio in Amsterdam, The Netherlands

NH25 Loft by Standard Studio in Amsterdam, The Netherlands

NH25 Loft by Standard Studio in Amsterdam, The Netherlands

NH25 Loft by Standard Studio in Amsterdam, The Netherlands

NH25 Loft by Standard Studio in Amsterdam, The Netherlands

NH25 Loft by Standard Studio in Amsterdam, The Netherlands

NH25 Loft by Standard Studio in Amsterdam, The Netherlands

NH25 Loft by Standard Studio in Amsterdam, The Netherlands

NH25 Loft by Standard Studio in Amsterdam, The Netherlands

Floor Plan

NH25 Loft by Standard Studio in Amsterdam, The Netherlands

Posted by Fidan

A young enthusiast with a passion for home decor and architecture, I love writing articles that inspire and guide readers in transforming their spaces into stylish, functional, and beautiful environments.