Beijing Hongkun Valley – Communication among sun, wind and natural light

Project: Beijing Hongkun Valley
Architects: ZOE Architecture
Location: Xi-hong-men Town, Daxing District, Beijing City, China
Area: 867,485 sq ft (site), 1,562,467 sq ft (floor)
Photographs by: Yang Chaoying / Zhang Huiming

Beijing Hongkun Valley by ZOE Architecture

ZOE Architecture have finished their design for the Beijing Hongkun Valley project in the town of Xihongmen, in the Daxing District of Beijing City in China. This ambitious projects boasts a floor area of over a million and a half thousand square feet spread across three floors above ground and one under. This office building is a conversation between the sun, the wind and natural light, designed as a green seed intended to serve as an origin for more green buildings to come in the park. The main concept of this design is green ecological focus, incorporating plenty of different attempts and innovations to achieve the perfect combination of an intelligent green building system and architectural design.

Futuristic modern glass office building with illuminated accents, surrounded by landscaped greenery and trees, showcasing innovative architecture and urban design.

The Hongkun Financial Valley Project is located in Xihongmen, Daxing District, Beijing. The overall plan is designed with “the office oxygen bar “ as concept to create a pleasant garden-style office environment with an area of 80,592 square meters and a construction area of 145,158 square meters.

The Beijing Hongkun financial valley project has made different attempts and innovations in functional, spatial and five-sensory experience design, taking the construction itself as the most economical space energy saving device. To create a comfortable office environment through the rational use of energy saving technologies such as respiratory curtain walls, midcourt air flow guidance, electric baiye sunshade, geothermal pump and soil greening, which achieving a perfect combination of intelligent green building system with architectural design.

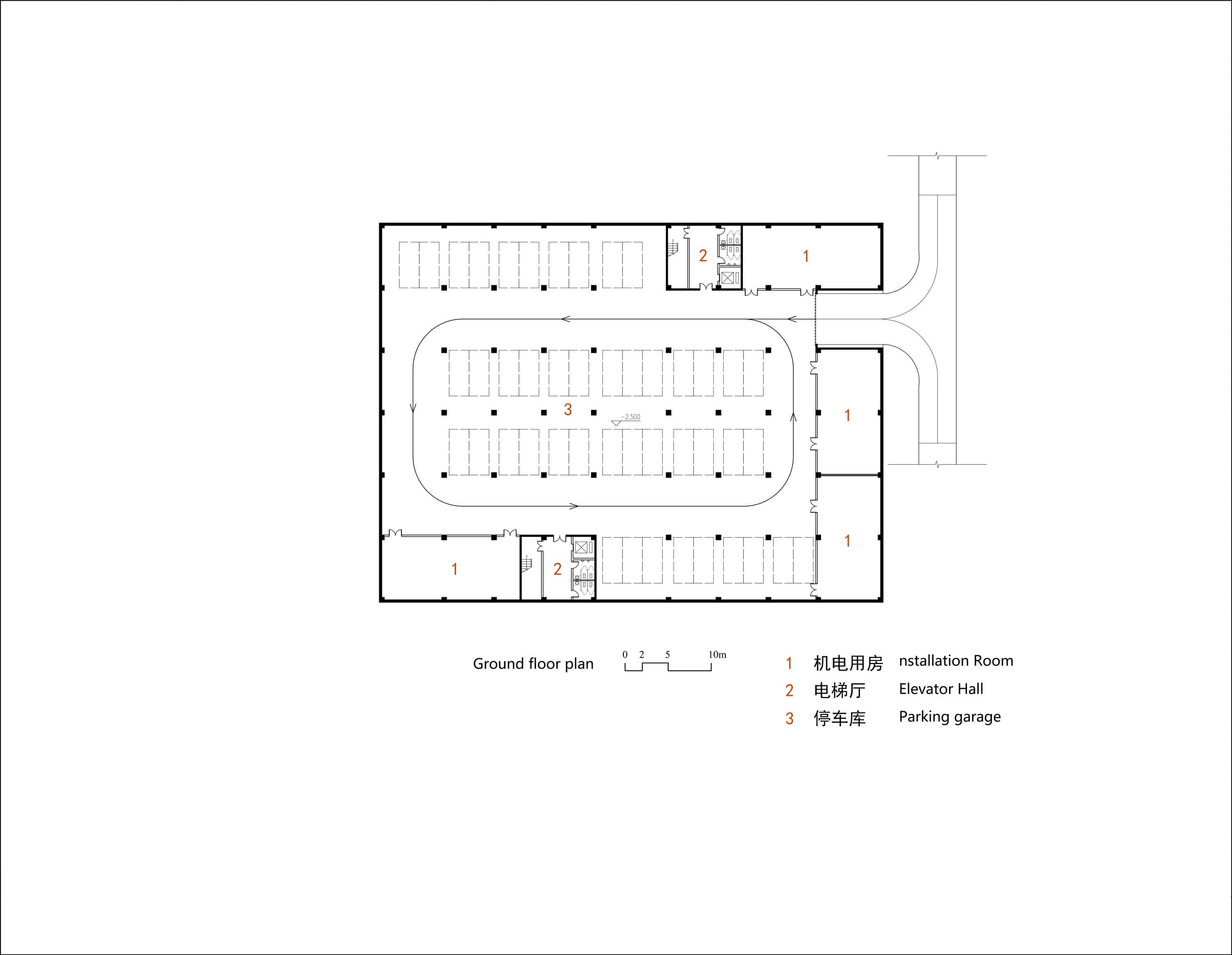
The construction area of the demonstration building is 11895m2, with 3 floors above ground and 1 underground floor. The office is a large-scale box, located on the second and third floors of the building. The first-floor space holds the office function in an orderly combination of eight functionally different small boxes, and the functions are organically combined through the atrium. Relying on the terrain, the building is connected to the surrounding environment through green slopes, making the building appear to be located above the park and become a green and energy-saving seed in the park. The grey space is combined with the atrium space, the terrace is combined with the roof garden, and the space is smart and exquisite. The white wall is lined with swaying trees and shines on sunny days. Respiratory curtains reflect the ever-changing light and shadow, showing different attractive colors in different days and times; the demonstration building consists of a number of independent functional unit boxes, each with its own personality.

Beijing Hongkun Valley - Communication among sun, wind and natural light Beijing Hongkun Valley - Communication among sun, wind and natural light Beijing Hongkun Valley - Communication among sun, wind and natural light Beijing Hongkun Valley - Communication among sun, wind and natural light

Beijing Hongkun Valley - Communication among sun, wind and natural light Beijing Hongkun Valley - Communication among sun, wind and natural light Beijing Hongkun Valley - Communication among sun, wind and natural light Beijing Hongkun Valley - Communication among sun, wind and natural light Beijing Hongkun Valley - Communication among sun, wind and natural light
Beijing Hongkun Valley - Communication among sun, wind and natural light Beijing Hongkun Valley - Communication among sun, wind and natural light Beijing Hongkun Valley - Communication among sun, wind and natural light Beijing Hongkun Valley - Communication among sun, wind and natural light Beijing Hongkun Valley - Communication among sun, wind and natural light
Beijing Hongkun Valley - Communication among sun, wind and natural light Beijing Hongkun Valley - Communication among sun, wind and natural light Beijing Hongkun Valley - Communication among sun, wind and natural light Beijing Hongkun Valley - Communication among sun, wind and natural light Beijing Hongkun Valley - Communication among sun, wind and natural light
Beijing Hongkun Valley - Communication among sun, wind and natural light Beijing Hongkun Valley - Communication among sun, wind and natural light Beijing Hongkun Valley - Communication among sun, wind and natural light Beijing Hongkun Valley - Communication among sun, wind and natural light Beijing Hongkun Valley - Communication among sun, wind and natural light
Beijing Hongkun Valley - Communication among sun, wind and natural light Beijing Hongkun Valley - Communication among sun, wind and natural light Beijing Hongkun Valley - Communication among sun, wind and natural light Beijing Hongkun Valley - Communication among sun, wind and natural light

Project information

Project name:The project of Beijing Hongkun Valley

Project location:Xi-hong-men Town ,Daxing District ,Beijing City

Google map link:https://j.map.baidu.com/TxEYO

Design company:ZOE ARCHITECTURE

Principle designer:Huiming Zhang

Design team: Huiming Zhang、Rong Lin ,Ning Han, Xiaoyan Jia, Ming Gong, Fei Liu, Yanyan Liu,Dizhang

Project type:office

Design starting date:May 2013

Design finish date:July 2014

Construction starting date:October 2013

Construction finish date:2016

Site area (m2):80592㎡

Gross floor area (m2):145158㎡

FAR:2.0

Greening rate:30%

Project status:COMPLETION

Contractor:CHINA CONSTRUCTION FIRST BUILDING(GROUP)CORPORATION LIMITED

Structural engineer:EDRI GROUP

MEP consultant:EDRI GROUP

Lighting consultant:H.G Lighting

Quantity surveyor:Liu Xue

Photographer:YANG CHAOYING  /ZHANG HUIMING

*Building materials & brand name (at least 3 types):

Glass – TIANJIN CSG ARCHITECTUTAL GLASS Co. Ltd,

Metal louvres – ASIA CUANON

Paint – SYSWAY

-Text description provided by the architects

Beijing Hongkun Valley - Communication among sun, wind and natural light

Beijing Hongkun Valley - Communication among sun, wind and natural light Beijing Hongkun Valley - Communication among sun, wind and natural light Beijing Hongkun Valley - Communication among sun, wind and natural light Beijing Hongkun Valley - Communication among sun, wind and natural light Beijing Hongkun Valley - Communication among sun, wind and natural light
Beijing Hongkun Valley - Communication among sun, wind and natural light Beijing Hongkun Valley - Communication among sun, wind and natural light Beijing Hongkun Valley - Communication among sun, wind and natural light Beijing Hongkun Valley - Communication among sun, wind and natural light Beijing Hongkun Valley - Communication among sun, wind and natural light
Beijing Hongkun Valley - Communication among sun, wind and natural light Beijing Hongkun Valley - Communication among sun, wind and natural light Beijing Hongkun Valley - Communication among sun, wind and natural light

Posted by Fidan

A young enthusiast with a passion for home decor and architecture, I love writing articles that inspire and guide readers in transforming their spaces into stylish, functional, and beautiful environments.