Aviator’s Villa – A Unique House For A Retired Pilot

Project name: Aviator’s Villa
Architects: Urban Office Architecture
Principal Architect: Carlo Enzo
Location: Dutchess County, New York

EXTERIOR2

There are some people that enjoy doing their job so much that they don’t feel tired of it when they go home afterwards. But there are also some people that they love doing their job so much that they want their home to be designed in a way to represent their enthusiasm for the job that they hold.
A retired pilot who loves flying had exactly this idea in mind when he hired Urban Office Architecture to design his future house. Why? You’ll see below.

EXTERIOR4

From the architects: “The house, designed for a retired Pilot, the Aviator, is organized as an analogical continuum of dis-assembled flight components. Similarly to how the “Air Body” wraps an airplane all around, and completely, so is the House “exposed” to air on all its sides, in an orbital fashion.”

EXTERIOR1

“The House, sited on a hilly parcel next to a small lake in the New York area of Duchess County, plays on the concept of being fully surrounded by water as well, as the swimming pool to the south side of the house mirrors the water body of the lake on the north side. The Architecture is thus imagined as a floating piece between two water bodies and fully surrounded by air.”

EXTERIOR3

“Similarly to how a plane would steer and point through currents, simultaneously aimed at its destination and navigating the prevalent currents, the House turns and torques to face both the sky, the surrounding views and the waters. The House looks south, north and west predominantly. Articulated as a vertically extending volume and a cantilevered prow, the main house is oriented to allow maximum daylight in. Large open glazed panes are mounted on riveted metal frames, further screened by perforated metal paneling or brise soleils. These elements are meant to replicate the texture of clouds of one plane fending through the skies, while mitigating the high sun rays and producing soothing shadows within the home interiors.”

CED-UOA-AV-SK001

CED-UOA-AV-SK002

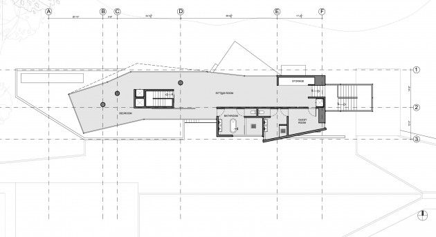
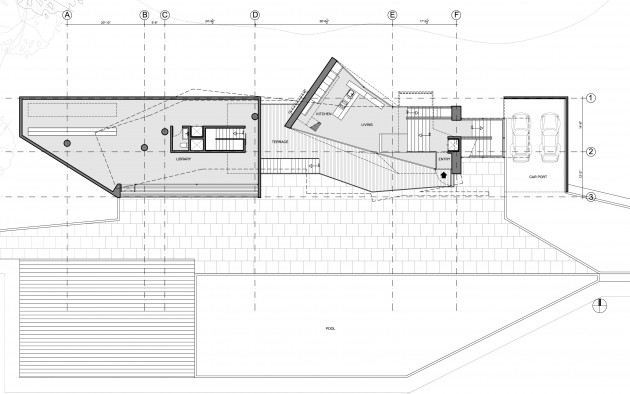
“The house is thus designed as a minimal sequence of three primary spaces: the large 30 feet tall living/study and kitchen/dining area, the cantilevered 40 feet bedroom, and the Library. This last floating volume is imagined a “Memory Box”. Accessible only through and directly from the Bedroom, the Library is thought both of as a container of memorabilia of the Owner’s past, as well as a space for reflection and study. Its large window opening faces the wooded areas outside, while a more secluded area in the rear is lit by a zenithal skylight whose view is directed to the cantilevered volume of the bedroom above.”

BEDROOM-1

LIBRARY1

SITTING-ROOM

“The house for an airplane pilot (the aviator) is both expressive and simple in its architectural morphology. A series of hidden spaces are tucked between the two main spaces and are revealed through the monumental circulatory staircase ascending to the bedroom at the top. The path through the house rooms is articulated via a sequence of programmatic functions: living, bath, sleeping and studying. This sequence is imagined vertically and one- directionally, inviting the Owner to follow a disciplined and timed journey through the house. In some way the arrival at the upper level bedroom and sitting room is viewed as a daily final retreat, a long lasting time which won’t require the descent back into the lower floor kitchen and living room. Spaces are meant to be lived independently and uniquely, as a counterpart to standard living where all spaces are directly adjacent.”

DETAIL2 - Copy

DETAIL1

LIBRARY2

01-AVIATOR

02-AVIATOR

The plans:

C:UsersCarlo EnzoDesktopPROJECTS�13-AVIATORS-VILLAELEVATIO

C:UsersCarlo EnzoDesktopPROJECTS�13-AVIATORS-VILLAMASTER S

C:UsersCarlo EnzoDesktopPROJECTS�13-AVIATORS-VILLAMASTER S

C:UsersCarlo EnzoDesktopPROJECTS�13-AVIATORS-VILLAMASTER S

C:UsersCarlo EnzoDesktopPROJECTS�13-AVIATORS-VILLAMASTER S

C:UsersCarlo EnzoDesktopPROJECTS�13-AVIATORS-VILLAMASTER S

Images provided by: Urban Office Architecture

Posted by Fidan

A young enthusiast with a passion for home decor and architecture, I love writing articles that inspire and guide readers in transforming their spaces into stylish, functional, and beautiful environments.