
- Project: Simple House
- Architect: Moon Hoon
- Location: South Korea, Jeju-si, Jeju Island
- Year: 2017
- Area: 206 m2
- Photography: Moon Hoon
A House Named “Simple” That Defies Simplicity
On the windswept landscape of Jeju Island — where basalt rock walls, shifting weather and scattered hills define the terrain — Moon Hoon’s Simple House emerges not as a humble dwelling but as a daring architectural statement. The name may suggest restraint, but the design is sculptural, bold, and intimately responsive to its environment.
Far from a conventional home, Simple House was conceived as a three-storey concrete composition of stacked, rotated volumes — each cantilevered and interconnected by a lattice of diagonal concrete braces that evoke an almost geologic randomness. The result is a dynamic, layered structure that seems to defy gravity even as it responds to the elemental forces of wind and rain that sweep across the island.
Moon Hoon originally drafted a more low-lying, bunker-like plan, perhaps more in line with traditional local typologies. But when the client’s vision shifted toward something more expressive — something “showy” and distinctive — the architect embraced the challenge, turning the original concept on its head. What emerged is a vertical, rotating concrete pavilion with maximum presence.
Concrete Sculpture Shaped by Climate and Terrain
To understand Simple House, one must first consider Jeju’s harsh climate: strong winds, sudden storms, and ever-shifting conditions. Moon Hoon’s response was structural daring: the stacked concrete volumes are anchored and tied together with reinforced diagonal beams, transforming potential instability into deliberate architecture.
Each volume is rotated slightly relative to the others — a strategy that does more than create sculptural drama. It opens up varied viewpoints toward the surrounding landscape, distributes loads in a way that improves stability under wind pressure, and produces overhangs and terraces that afford sheltered outdoor space.
Large glazed walls at the ends of each block allow daylight to penetrate deep into the structure, while generous verandas and terraces invite outdoor connection, respecting the island’s natural environment.
A Vertical Journey with Rhythm and Surprise
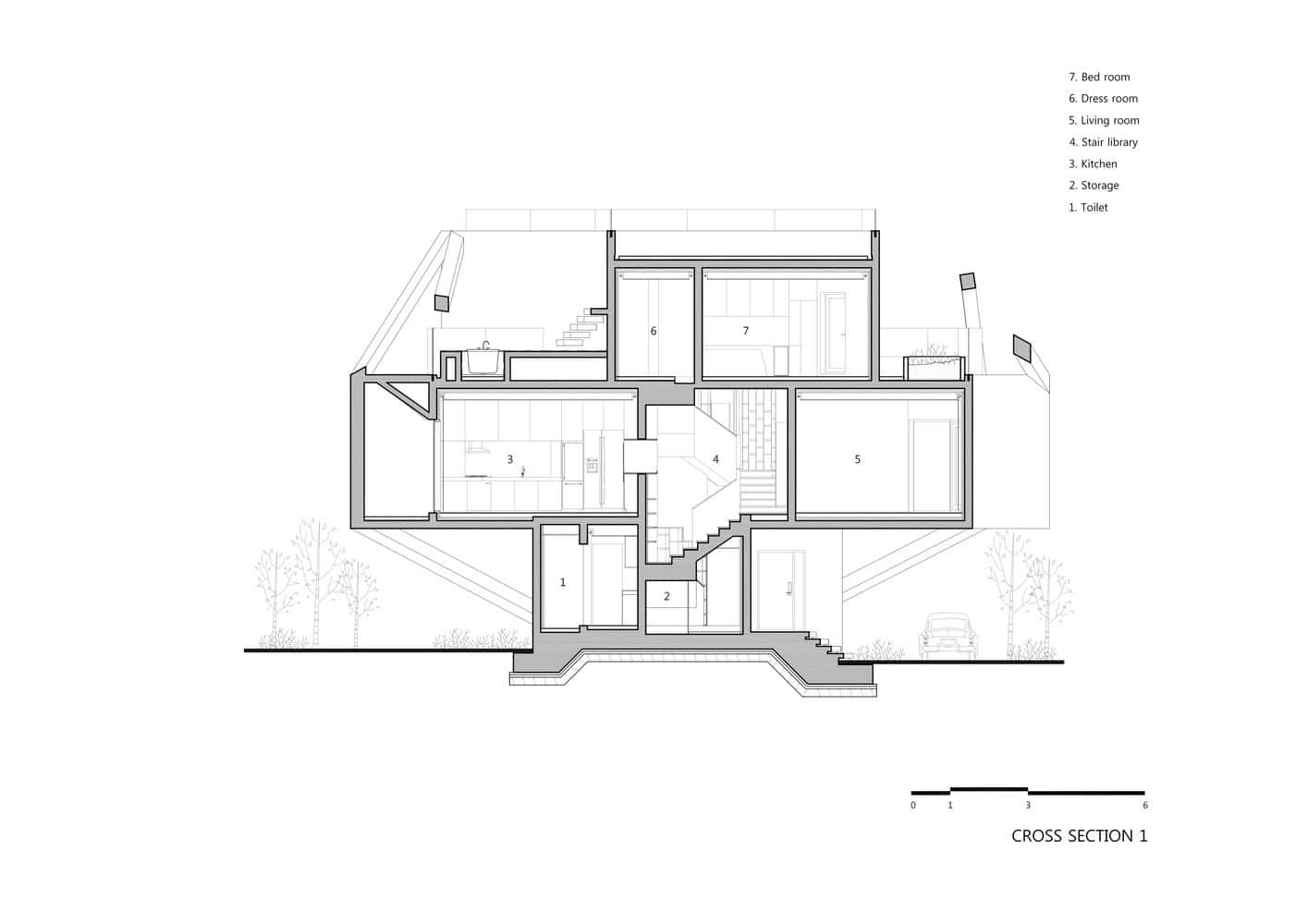
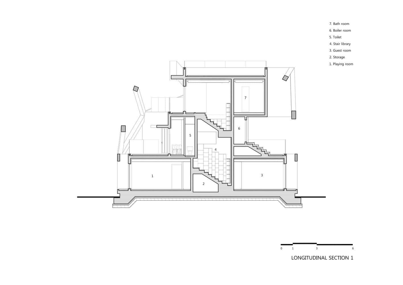
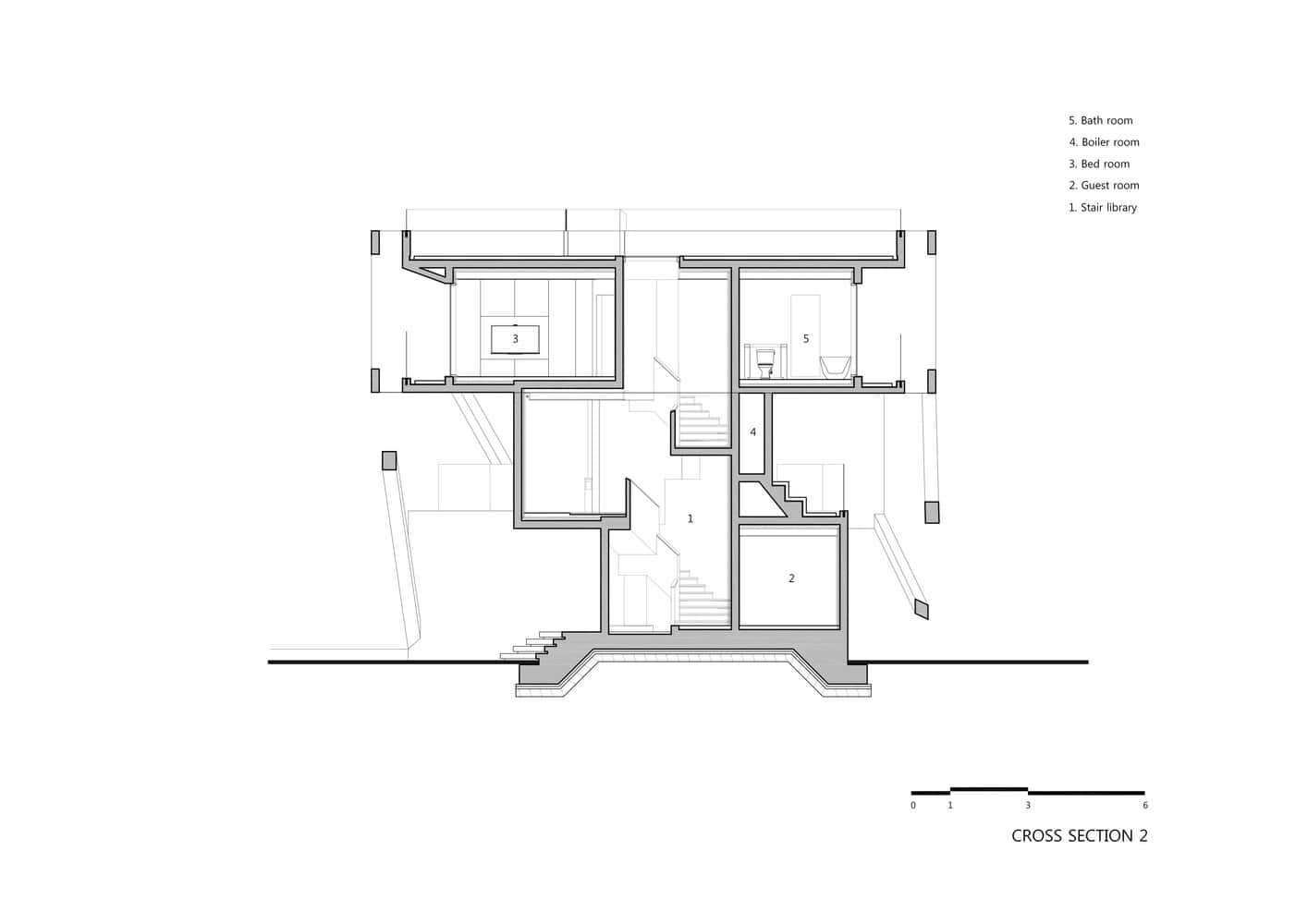
Inside, Simple House is organized around a central void and a spiral timber staircase lined with built-in bookshelves — creating an atrium-like spine that connects all three floors.
-
The ground floor houses more private, perhaps service-oriented functions (guest rooms, playroom, storage, etc.).
-
The middle floor is the heart of daily life: open plan kitchen, dining, living area, with glazed ends that open onto outdoor terraces for dining and lounging.
-
The top floor is reserved for rest and retreat — master bedroom, bathroom, wardrobe — plus access to a rooftop terrace and outdoor garden, offering sweeping views and privacy.
This vertical stacking, rotation, and careful zoning transforms what could be a static home into a layered spatial experience — a journey upward, outward, and inward.
Why Simple House Matters
-
Architecture as resistance to environment: Simple House shows how architecture can respond to extreme climate (wind, rain, storms) not by retreat, but through structural boldness and sculptural form.
-
Vertical rethinking of home on challenging terrain: On an island of hills, basalt, wind and weather, Moon Hoon avoids flattening the land — instead he builds upward, preserving landscape and re-imagining domestic spatial logic.
-
Sculptural drama meets livability: Despite its avant-garde form, Simple House remains a functioning home — with living, sleeping, and social zones thoughtfully distributed and connected.
-
Ambiguity & tension as design fuel: The house plays with contradictions — heavy concrete but open glazing, bunker-like ambition but airy terraces, rotated volumes but structural equilibrium. In doing so, it offers a living environment that is at once grounded and free.
Simple House by Moon Hoon becomes both a refuge and a statement — a home that refuses convention and invites residents to inhabit architecture as experience.