Našahiša Residence by Sanja Premrn in Ajdovščina, Slovenia

Project: Našahiša Residence
Architects: Sanja Premrn
Location: Ajdovščina, Vipava Valley, Slovenia
Area: 1,829 sf
Photographs by: Miha Bratina

Našahiša Residence by Sanja Premrn

An architect’s own family home is often an insight into their design ethos. Balancing the simplicity of rectilinear forms and raw materials such as stone, steel and glass with elegant, detailed interiors, it is a contemporary family home designed to stand the test of time.
This modern home is located between typical single-dwelling houses from the 1970s and 1980s, which are mostly of two displaced volumes, all covered with gabled roofs. Rather than mimicking the existing surroundings, the new construction is slightly separated from them, without standing out. In fact, it is almost imperceptible.

Našahiša Residence by Sanja Premrn in Ajdovščina, Slovenia

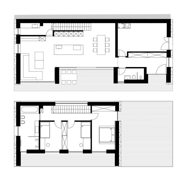
The project has 170 square meters on two floors and a terrace. The building location is an important factor because it is in the Vipava Valley, where the ferocious Bora wind is blowing. Therefore, the building orientation and the space of the house should provide shelter and allow natural light to shine in without too much heat in the summer. At the same time, the users inside could be able to see nice garden view outside as well.
The flat roof makes it lower and does not obscure the neighbors’ view. For the same reason, the upper floor has been shifted to the western part of the building, while the terrace is on the eastern side.

Našahiša Residence by Sanja Premrn in Ajdovščina, Slovenia

To guarantee the durability of this home, selected natural materials were used. The east and west facade are clad in local stone, while the interior is dominated by wood combined with stone.
The design also refers to vernacular materials; old weathered bricks were used to make the driveway. This sort of traditional materials incorporated into the architecture confer the popular warmth of local buildings and simultaneously engage a project of contemporary features with large glass surfaces that dominate the south facade, with a complete view of the city.

-Project description and images provided by Sanja Premrn

Našahiša Residence by Sanja Premrn in Ajdovščina, Slovenia

Našahiša Residence by Sanja Premrn in Ajdovščina, Slovenia

Našahiša Residence by Sanja Premrn in Ajdovščina, Slovenia

Našahiša Residence by Sanja Premrn in Ajdovščina, Slovenia

Našahiša Residence by Sanja Premrn in Ajdovščina, Slovenia

Našahiša Residence by Sanja Premrn in Ajdovščina, Slovenia

Našahiša Residence by Sanja Premrn in Ajdovščina, Slovenia

Našahiša Residence by Sanja Premrn in Ajdovščina, Slovenia

Našahiša Residence by Sanja Premrn in Ajdovščina, Slovenia

Našahiša Residence by Sanja Premrn in Ajdovščina, Slovenia

Našahiša Residence by Sanja Premrn in Ajdovščina, Slovenia

Našahiša Residence by Sanja Premrn in Ajdovščina, Slovenia

Našahiša Residence by Sanja Premrn in Ajdovščina, Slovenia

Našahiša Residence by Sanja Premrn in Ajdovščina, Slovenia

Našahiša Residence by Sanja Premrn in Ajdovščina, Slovenia

Našahiša Residence by Sanja Premrn in Ajdovščina, Slovenia

Našahiša Residence by Sanja Premrn in Ajdovščina, Slovenia

Našahiša Residence by Sanja Premrn in Ajdovščina, Slovenia

Našahiša Residence by Sanja Premrn in Ajdovščina, Slovenia

Posted by Fidan

A young enthusiast with a passion for home decor and architecture, I love writing articles that inspire and guide readers in transforming their spaces into stylish, functional, and beautiful environments.