
- Project: Zhongmeishan self-service BBQ PLUS
- Architect: FUNUN LAB
- Location: China, Linao CITY PARK Shopping Center, Beijing
- Year: 2022
- Area: 1039 m2
- Photography: Song Yuming
Redefining the Brand Experience
Zhongmeishan, a popular dining brand originating in Wudaokou, opened its first upgraded flagship store in Olympic North, one of Beijing’s most prestigious residential areas. To capture the attention of a high-end clientele, the brand collaborated with FUNUN LAB, known for innovative restaurant design across Beijing.
FUNUN LAB’s challenge was to transform a large, square floor plate into a space with rich detail, rhythm, and atmosphere. Through the interplay of geometry, curves, and light, the designers crafted an environment where dining transcends the meal and becomes an immersive experience.
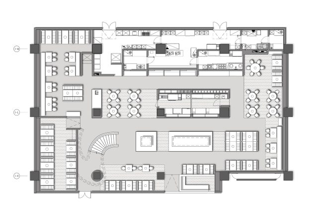
Sculptural Focal Point: The White Staircase
At the heart of the restaurant is a sculptural white staircase whose free-flowing curves evoke a mountain range softened by clouds. This feature not only organizes circulation but also embodies the brand’s identity, symbolizing the connection between cuisine and landscape.
The staircase provides clear orientation within the large space, while its glowing backlit edges infuse warmth and softness. It becomes both a visual anchor and a metaphorical link between earthly sustenance and elevated experience.
Interactive and Immersive Dining
FUNUN LAB emphasized interactivity as a core element of the design. On the first floor, an interactive dining area enriches customer engagement, reflecting the brand’s philosophy that food is both sustenance and social exchange.
From the lobby, guests glimpse a transparent private room across the dining hall—an arrangement that poetically recalls classical Chinese verses about reciprocal gazes from bridges and towers. This layering of views deepens the spatial and cultural narrative.
Light, Shadow, and Atmosphere
Dining tables on the first floor are positioned in staggered patterns to create dynamic plays of light and shadow, producing different atmospheres within one expansive space. The design carefully balances rigidity and softness, square and fluid lines, light and dark—a rhythm that enlivens the restaurant while preserving intimacy.
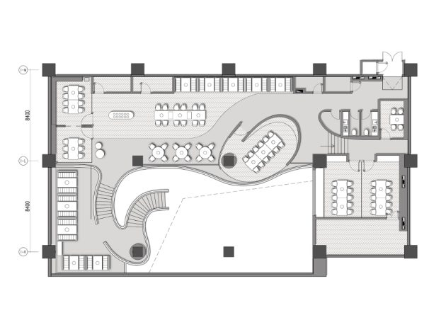
On the second floor, the atmosphere shifts. Private dining rooms and smaller lounges are designed for banquets, team gatherings, or intimate conversations. The lighting here is subdued, creating a sense of privacy and refinement.
Commercial Logic and Aesthetic Strength
Zhongmeishan self-service BBQ PLUS exemplifies FUNUN LAB’s approach to hospitality design: merging aesthetics with commercial logic. By combining macro-level sculptural gestures (the staircase, spatial zoning) with micro-level detailing (textures, lighting, furniture placement), the design achieves both spectacle and subtlety.
The result is a restaurant that is grand yet human-centered, functional yet poetic—where food, culture, and design converge to form a memorable brand identity.