
- Project: Tianyou Experimental Primary School
- Architect: BAU Brearley Architects + Urbanists
- Location: China, Suzhou New District, Suzhou, Jiangsu
- Year: 2021
- Area: 67760 m2
- Photography: Courtesy of BAU – Brearley Architects & Urbanists
A New Model for Learning Environments in Suzhou
In the rapidly urbanizing fringe of Suzhou’s New District, BAU – Brearley Architects & Urbanists was commissioned through an invited competition to design a combined 24-class kindergarten and 48-class primary school. The result is Tianyou Experimental Primary School — a forward-thinking educational complex that challenges traditional school design by transforming both classrooms and circulation spaces into interactive learning landscapes.
This project redefines how architecture can foster curiosity, creativity, and collaboration in modern education.
Blurring the Line Between Formal and Informal Learning
BAU’s design begins with a fundamental question: What if every corner of a school could become a space for learning?
The architecture dissolves the rigid boundary between formal classrooms and informal “in-between” zones, creating an environment where learning happens everywhere — in corridors, courtyards, and even under staircases.
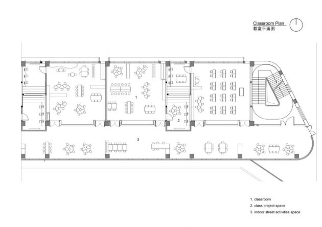
Wide, meandering internal corridors act as “learning beams”, replacing traditional hallways with generous, flexible spaces for group activities, exhibitions, and impromptu discussions. These informal areas flow seamlessly into classrooms, inviting students to engage in collaborative and self-directed learning.
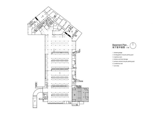
A Compact Site Reimagined
Unlike BAU’s earlier campus projects that placed discrete buildings in open landscapes, this smaller, denser site demanded a reversal of figure and ground.
Here, open spaces are carved out of a solid architectural podium, resulting in a composition that resembles a series of gardens, courtyards, and terraces framed by a continuous built edge.
The design extracts key outdoor programs — sports grounds, playgrounds, and green rings — from the podium mass, leaving behind a continuous “beam” of interconnected learning spaces. This concept turns the compact site into a dynamic topography of movement, light, and discovery.
The Classroom as a Flexible Framework
Six sun-oriented “regular beams” house the formal teaching zones. Within each pair of classrooms, BAU introduces a glass-walled breakout room for small-group collaboration — a space that bridges independence and supervision.
This dual system — structured classrooms within a fluid, interactive framework — encourages both concentration and creativity. Teachers can guide teams without isolating them from the collective learning environment.
The contrast between the meandering informal beam and the linear classroom beams is both spatial and material, visually articulating the balance between play and structure that defines the school’s educational philosophy.
Learning from the Chinese Garden
Working with Chinese classical-garden scholar Craig Easton, BAU infused the project with a subtle layer of local cultural geometry and symbolism.
Through techniques of framing, layering, scaling, and wrapping, the design references Suzhou’s historic gardens — reinterpreting their poetic spatial qualities within a contemporary educational context.
The result is a campus that feels both deeply rooted in place and forward-looking, merging the sensory richness of traditional Chinese landscapes with the fluidity of modern pedagogy.
The Kindergarten: Five Gardens of Discovery
The kindergarten portion of the complex celebrates the true meaning of “children’s garden.”
BAU designed five themed gardens, each stimulating different aspects of development:
-
🌿 Imagination Garden: A space for dreaming, performing, and storytelling.
-
🧗 Muscle Garden: For climbing, swinging, sliding, and jumping — encouraging physical expression.
-
🌾 Nature Garden: A sensory landscape for digging, planting, and exploring.
-
🛠️ Work Garden: A practical environment for sweeping, shoveling, and organizing.
-
🌸 Garden of the Senses: An immersive garden of fragrance, sound, texture, and taste.
Together, these landscapes form a pedagogical ecosystem — nurturing emotional, physical, and intellectual growth.
Past, Present, and Future
Tianyou Experimental Primary School demonstrates how ancient spatial models and progressive educational theories can coexist in harmony.
By combining cultural abstraction with contemporary flexibility, BAU has created a prototype for future schools — one that transforms the built environment into a continuous, evolving classroom.
This is not just a building for learning; it’s a living framework for imagination, play, and lifelong curiosity.