Scenery Alley by TEAM_BLDG: Revitalizing a Historic Streetfront into a Creative Retail and Cultural Hub

  • Project: Scenery Alley | Hangzhou Beco295 select store and creative space
  • Architect: TEAM BLDG
  • Location: China, 295 Middle Zhongshan Road, Hangzhou
  • Year: 2021
  • Photography: Jonathan Leijonhufvud

On Middle Zhongshan Road in Hangzhou, once a thriving Imperial Street during the Southern Song Dynasty, TEAM_BLDG has transformed an old building into Becó295, a designer select store, showroom, café, and creative space. The project, titled Scenery Alley, reimagines the historic urban fabric through a design strategy rooted in memory, imaging principles, and spatial storytelling.

Context: Old Street, New Life

Middle Zhongshan Road, once the commercial and cultural core of Hangzhou, declined in the early 2000s as new business districts emerged. Today, the pedestrianized old town preserves fragments of Hangzhou’s history. At No. 295, near Jishanfang Alley, the renovation project integrates retail, café culture, and creative workshops into the historic context, reinforcing the street’s role as a living cultural corridor.

The site’s past adds depth: the building was once one of Hangzhou’s earliest photo studios. This heritage of capturing moments and framing perspectives became a conceptual anchor for the design.

Design Concept: Three Orders of Imaging

1. Blending into the Street

The façade was restructured by adding a rotated wall tilted 20 degrees, creating a semi-open “floating box” that stands out from neighboring shops while blending into the rhythm of the street. Hidden LED typography reflected on black mirrors creates a visual play between real and virtual, arousing curiosity and drawing passersby inward.

At the entrance, the café forms a public threshold, serving coffee by day and functioning as a bar by night. Inspired by the habit of locals gathering outside their homes for tea or chess, this design blurs the boundary between indoors and outdoors, making the store an extension of street life.

2. Objects in the Mirror

A black mirror angled at 45° connects the store interior with the adjacent alley. This reflected view incorporates the hidden alley’s character into the retail experience, merging urban memory with contemporary display. Mirrors also enhance spaces like the dressing room, multiplying spatial depth and creating playful moments of discovery.

3. The Box

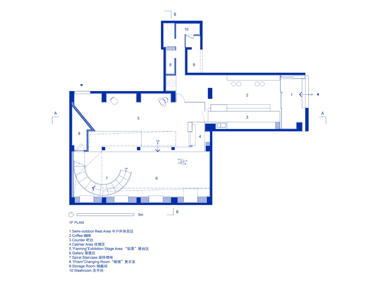
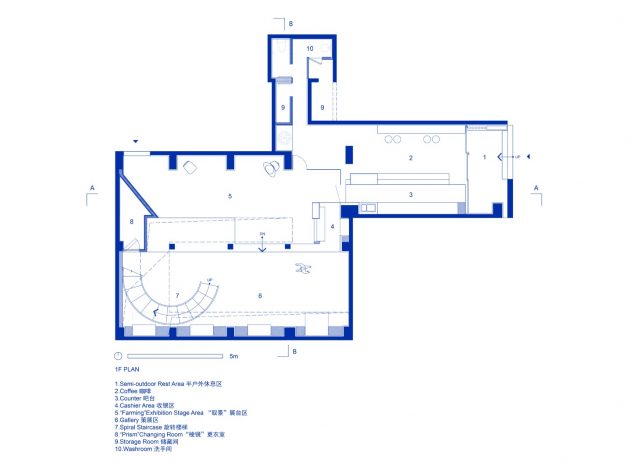
The ground floor unfolds as a flexible retail and exhibition zone:

  • Café at the entrance.

  • Central area for independent designer displays, scattered across custom stands.

  • A sunken display/event space marked by a sculptural spiral staircase, which doubles as a stage during events.

The second floor is dedicated to thematic displays and VIP functions. Preserving the old roof truss, the space blends bare structure with new finishes, layering old and new atmospheres. Natural light, mirrors, and integrated lighting strategies enhance transparency and visual depth.

Materiality and Atmosphere

TEAM_BLDG paired modern finishes—stainless steel, micro-cement, mirrored glass—with traces of the past, creating tension between old and new. Though some original red brick walls could not be fully preserved, the design retains the building’s character through contrast and spatial layering.

Challenges and Craft

Construction challenges arose due to limited technical skills of local workers, requiring repeated adjustments and refinements. Despite this, the project succeeds in balancing architectural storytelling, commercial needs, and cultural memory, offering a fresh perspective on Hangzhou’s historic core.

Scenery Alley | Becó295 by TEAM_BLDG demonstrates how contemporary design can revitalize historic urban streetscapes. By weaving together themes of imaging, memory, and urban life, the project transforms a former photo studio into a hybrid cultural-commercial hub, connecting past and present through architecture, retail, and community.

Scenery Alley by TEAM_BLDG: Revitalizing a Historic Streetfront into a Creative Retail and Cultural Hub
Photography © Jonathan Leijonhufvud
Scenery Alley by TEAM_BLDG: Revitalizing a Historic Streetfront into a Creative Retail and Cultural Hub
Photography © Jonathan Leijonhufvud
Scenery Alley by TEAM_BLDG: Revitalizing a Historic Streetfront into a Creative Retail and Cultural Hub
Photography © Jonathan Leijonhufvud
Scenery Alley by TEAM_BLDG: Revitalizing a Historic Streetfront into a Creative Retail and Cultural Hub
Photography © Jonathan Leijonhufvud
Scenery Alley by TEAM_BLDG: Revitalizing a Historic Streetfront into a Creative Retail and Cultural Hub
Photography © Jonathan Leijonhufvud
Scenery Alley by TEAM_BLDG: Revitalizing a Historic Streetfront into a Creative Retail and Cultural Hub
Photography © Jonathan Leijonhufvud
Scenery Alley by TEAM_BLDG: Revitalizing a Historic Streetfront into a Creative Retail and Cultural Hub
Photography © Jonathan Leijonhufvud
Scenery Alley by TEAM_BLDG: Revitalizing a Historic Streetfront into a Creative Retail and Cultural Hub
Photography © Jonathan Leijonhufvud
Scenery Alley by TEAM_BLDG: Revitalizing a Historic Streetfront into a Creative Retail and Cultural Hub
Photography © Jonathan Leijonhufvud
Scenery Alley by TEAM_BLDG: Revitalizing a Historic Streetfront into a Creative Retail and Cultural Hub
Photography © Jonathan Leijonhufvud
Scenery Alley by TEAM_BLDG: Revitalizing a Historic Streetfront into a Creative Retail and Cultural Hub
Photography © Jonathan Leijonhufvud
Scenery Alley by TEAM_BLDG: Revitalizing a Historic Streetfront into a Creative Retail and Cultural Hub
Photography © Jonathan Leijonhufvud
Scenery Alley by TEAM_BLDG: Revitalizing a Historic Streetfront into a Creative Retail and Cultural Hub
Photography © Jonathan Leijonhufvud
Scenery Alley by TEAM_BLDG: Revitalizing a Historic Streetfront into a Creative Retail and Cultural Hub
Photography © Jonathan Leijonhufvud
Scenery Alley by TEAM_BLDG: Revitalizing a Historic Streetfront into a Creative Retail and Cultural Hub
Photography © Jonathan Leijonhufvud
Scenery Alley by TEAM_BLDG: Revitalizing a Historic Streetfront into a Creative Retail and Cultural Hub
Photography © Jonathan Leijonhufvud
Scenery Alley by TEAM_BLDG: Revitalizing a Historic Streetfront into a Creative Retail and Cultural Hub
Photography © Jonathan Leijonhufvud

Drawings

Scenery Alley by TEAM_BLDG: Revitalizing a Historic Streetfront into a Creative Retail and Cultural Hub
Scenery Alley by TEAM_BLDG: Revitalizing a Historic Streetfront into a Creative Retail and Cultural Hub
Scenery Alley by TEAM_BLDG: Revitalizing a Historic Streetfront into a Creative Retail and Cultural Hub
Scenery Alley by TEAM_BLDG: Revitalizing a Historic Streetfront into a Creative Retail and Cultural Hub
Scenery Alley by TEAM_BLDG: Revitalizing a Historic Streetfront into a Creative Retail and Cultural Hub
Scenery Alley by TEAM_BLDG: Revitalizing a Historic Streetfront into a Creative Retail and Cultural Hub
Scenery Alley by TEAM_BLDG: Revitalizing a Historic Streetfront into a Creative Retail and Cultural Hub
Scenery Alley by TEAM_BLDG: Revitalizing a Historic Streetfront into a Creative Retail and Cultural Hub

Posted by TEAM BLDG

Founded in 2012, TEAM_BLDG is an interdisciplinary architecture and design studio working across architecture, interiors, landscape, and product design. With offices in China and Japan, the practice is rooted in the philosophy that design is not a final form, but an ongoing process of building—emphasizing the lived experience of space over the mere expression of form or style. The name “BLDG” (short for “building”) is interpreted not as a noun, but as a verb—representing construction as a dynamic, human-centered process. Rather than focusing solely on concept or aesthetics, TEAM_BLDG places greater importance on crafting atmospheres—the emotional and spatial relationships between interior and exterior, light and material, people and place. In 2023, TEAM_BLDG expanded internationally with the establishment of TEAM_BLDG Japan in Tokyo, founded by the studio’s three partners. Throughout its journey, TEAM_BLDG has collaborated with a diverse group of designers, artists, and craftspeople, creating custom furniture, lighting, signage, and art installations tailored to specific architectural contexts. Their creative collaborations are seamlessly integrated into built projects, enhancing both function and narrative. The studio has also had the honor of working alongside renowned architects such as Takaharu Tezuka, Kazunari Sakamoto, Kazuyo Sejima, Ryue Nishizawa, and Mitsuru Senda. These professional partnerships have enriched TEAM_BLDG’s approach, contributing to a deep understanding of multiple design methodologies and spatial logic.