Restaurante Marco by FMJPC Architecture and Design in Lisbon, Portugal

Project: Restaurante Marco
Architects: FMJPC Architecture and Design
Location: Largo de Santos, Lisbon, Portugal
Area: 2,206 sf
Photographs by: Ivo Tavares Studio

Restaurante Marco by FMJPC Architecture and Design

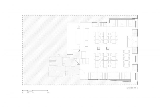
The restaurant “Marco” is a refurbishment of an existing restaurant, in Largo de Santos, Lisbon, which sought to create different atmospheres in the various dining rooms.

With a simple and affordable design, the only restriction to the intervention was to avoid any changes to the existing layout of the restaurant. This intervention considered the three following principles: the alteration and balance of the existing and new colours, the reorganization of the kitchen and bar areas and new furniture.

Modern architecture interior with exposed stone arches, contemporary lighting, and stylish furniture in a trendy restaurant setting.

After carefully analysing the existing space, the decision was made to utilise and retain the distinctive existing features of the rooms. Such as the columns, arches, dining table side fixings and the finishes on the walls.

As the structure of the walls and colours stood out in the main room, it was clear that a similar colour needed to be used on wide surfaces in the room, on ceilings and ventilation ducts. On the unique features of the room, it was proposed to use colours from the restaurant brand to create visual contrast and to connect the room. The fabrics, furniture, staircase and the main counter are an example of this use of colour.

Restaurante Marco by FMJPC Architecture and Design in Lisbon, Portugal

To achieve connectivity between the rooms the colours from the staircase are replicated on a tall skirting board on the first floor. This skirting board not only stands out but also helps to protect the walls and create harmony between the various rooms.

In order to organise the bar area and the flow of customers, the client asked to integrate and design a bespoke bar with fixed storage. The bar will have enough space to incorporate all of the beer kegs needed for the restaurant and use of materiality and the variety of colours on the bar gives it a prominent position in the room. The proposed fixed furniture will answer to the need for storage and will help to separate the public and private areas.

Restaurante Marco by FMJPC Architecture and Design in Lisbon, Portugal

It was crucial to connect and balance the existing materials, features and colours with the proposed details and furniture. This was achieved by replacing the existing table screens, tables, illumination and seating. Flower beds next to the fixed dining tables and green walls were also proposed in the rooms.

With this, the main focus of creating a new atmosphere in the different rooms through improving and enhancing the existing elements was achieved. Thus, making it possible to propose an affordable renovation to create a completely new space at The Restaurant “Marco.”

-Project description and images provided by Ivo Tavares Studio

Restaurante Marco by FMJPC Architecture and Design in Lisbon, Portugal

Restaurante Marco by FMJPC Architecture and Design in Lisbon, Portugal

Restaurante Marco by FMJPC Architecture and Design in Lisbon, Portugal

Restaurante Marco by FMJPC Architecture and Design in Lisbon, Portugal

Restaurante Marco by FMJPC Architecture and Design in Lisbon, Portugal

Restaurante Marco by FMJPC Architecture and Design in Lisbon, Portugal

Restaurante Marco by FMJPC Architecture and Design in Lisbon, Portugal

Restaurante Marco by FMJPC Architecture and Design in Lisbon, Portugal

Restaurante Marco by FMJPC Architecture and Design in Lisbon, Portugal

Restaurante Marco by FMJPC Architecture and Design in Lisbon, Portugal

Restaurante Marco by FMJPC Architecture and Design in Lisbon, Portugal

Restaurante Marco by FMJPC Architecture and Design in Lisbon, Portugal

Restaurante Marco by FMJPC Architecture and Design in Lisbon, Portugal

Restaurante Marco by FMJPC Architecture and Design in Lisbon, Portugal

Restaurante Marco by FMJPC Architecture and Design in Lisbon, Portugal

Restaurante Marco by FMJPC Architecture and Design in Lisbon, Portugal

Drawings

Restaurante Marco by FMJPC Architecture and Design in Lisbon, Portugal

Restaurante Marco by FMJPC Architecture and Design in Lisbon, Portugal

Restaurante Marco by FMJPC Architecture and Design in Lisbon, Portugal

Posted by Fidan

A young enthusiast with a passion for home decor and architecture, I love writing articles that inspire and guide readers in transforming their spaces into stylish, functional, and beautiful environments.