Office space design – Flowing melody Interior design of Shanghai KUNCHI office

Project: Kunchi Office Interior Design
Architects: Ferri Architectural Design Engineering Co.Ltd Shanghai
Location: Shanghai, China
Area: 53,819 sf
Photographs by: Hero Li

Kunchi Office Interior Design by Ferri

Ferri Architectural Design Engineering Co.Ltd Shanghai, a Chinese studio, has submitted their latest work – the Kunchi Office Interior Design in Shanghai. The total construction area of this new office interiors is almost 54,000 square feet, a rather large space that the designs have to bring to a standard that will satisfy the working requirements while also creating a very modern and elegant look.
The cosmetic company needs their employees to be able to work independently while working together as a whole. At the same time, they want to provide their employees with places that will make sure they are well-rested and full of energy when they start working.

Office space design - Flowing melody Interior design of Shanghai KUNCHI office

Project location and project overview:

Shanghai KUNCHI Trade and Development Co., Ltd is an enterprise specialized in e-commerce operation with its core business in facilitating international cosmetics brands to establish their e-commerce business system in China. Located on Dangui Road, Pudong New District, Shanghai, the office building of KUNCHI covers a total construction area of 6,000 square meters.

Aiming at providing a workspace of flexibility, collaboration, stress reduction, and creative thinking stimulation, the office design tried to meet different working requirements, allowing employees to conduct independent work with concentration as well as collaborative work when necessary. The working environment provides employees with physical and mental comfort so that people could perform and function at their best. Scope of design includes interior design and construction drawings from 1st – 4th floor. Construction work of the office was completed in August 2018.

Project design concept– Melody:

There are in total 4 floors for the project. Each floor is deployed with relatively independent departments and features. The tacit cooperation among different departments constitutes the unique company of Kunchi, as if different chapters of music compose variations. The alternation and combination of different chapters form a unique melody for Kunchi office. Inspired by melodies, designers adopt a variety of materials in this project with curves as a main element.

Design description in details:

First Floor

Prelude – Brand Association

The lobby design commences with the intention to convey corporate culture through sense of space.

As the project owner is an e-commerce enterprise, neutral color scheme from white to gray is applied to the entrance lobby with the concept of black and white cyber pixel. The feature wall of metal cylinders looks like the timekeeping wall in live studios, separating the entrance lobby from the back office area. The gray-white waves on the floor function as a guidance into the office area. The concept of open ceiling is adopted to ensure adequate space height. Disc-shaped decorative plates, which are inspired by reflectors, one of the e-commerce photography props, are suspended on the ceiling and serve as a separation between the ceiling equipment and the lobby space.

Walking through the entrance lobby, one can find a display area for client to exhibit the main products. Between the display area on both sides, a commercial reception as well as leisure cafe area is designed. Spot lights in circular shape are custom-made on the ceiling of the display area to provide professional illumination for exhibits. Windows are retained on the left corridor to embrace natural light with lighting system. Diffuse light slots in the curved shape go with the direction to the multi-function room.

The shape of spire is common in nature, embodied in animal shells, planets in galaxy, flowing water drop and dust in the air. Spire conveys the concept of development and evolvement, seasons and time, and the reincarnation of lives, representing revolution and proliferation. Design works of employees are displayed on the wall, presenting to the guests its entrepreneurial culture. Curves on the floor are matched with the spiral wall, finally extended to the ceiling of the entire space

Office space design - Flowing melody Interior design of Shanghai KUNCHI office

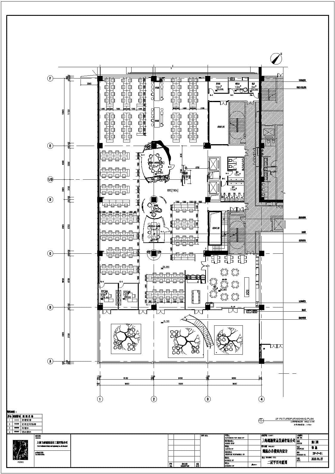
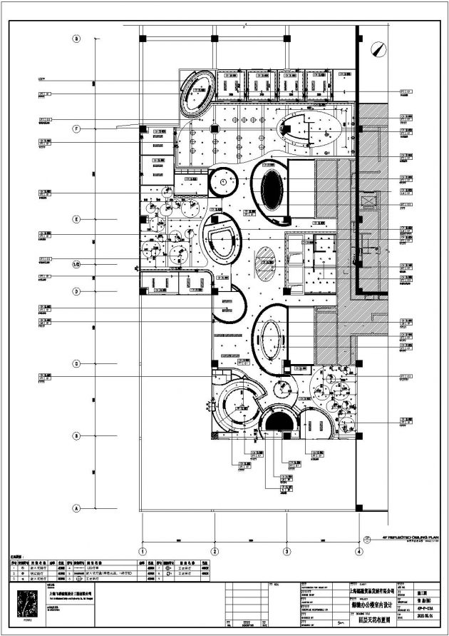
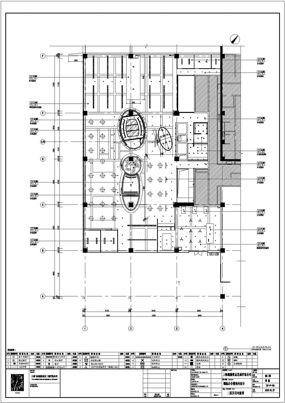
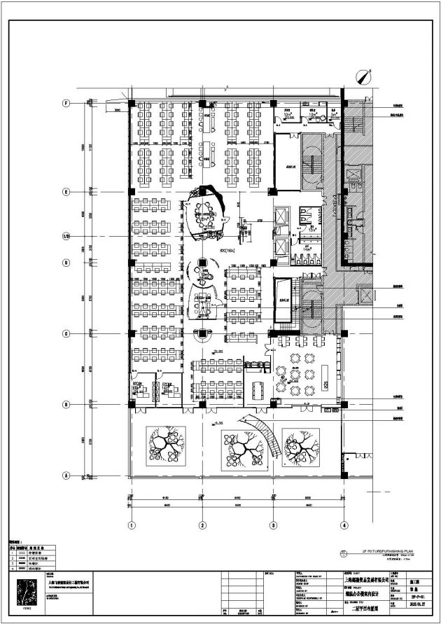
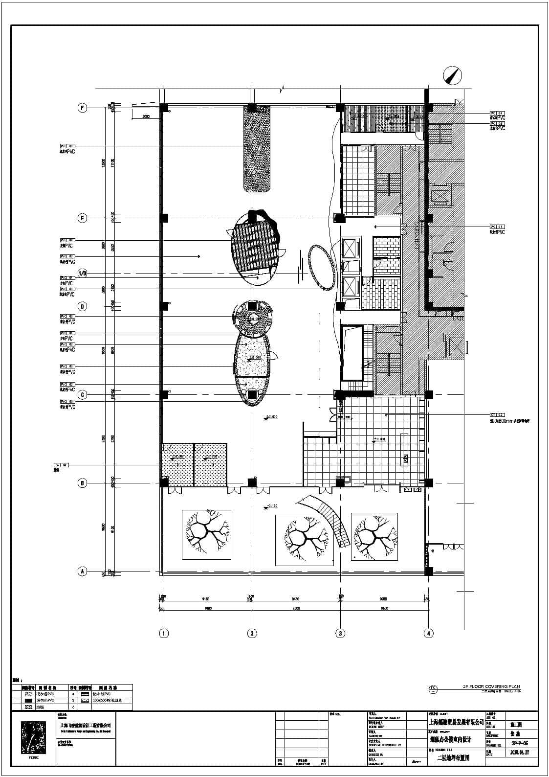
Second Floor

Interlude

On the 2nd floor is the office area of the company’s design department. Wood material and custom-made chandeliers are adopted to create a bright and comfortable working environment so as to relieve the stress for designers. Discussion zone in the core area is designed with bright colors to spark inspiration and let designers immerse themselves in. Meeting rooms of different themes with transparent glass wall in oval shape are reminiscent of “islands” distributed on the 2nd floor.

Third Floor

Variation

As the lift doors open, a unique spaceship-like meeting room unfolds in sight. Transparent materials are adopted to produce a see-through effect for the space. As the symbol of thinking, vivid colors in the brainstorming area help stimulate the working passion of employees.

There are several private meeting rooms and open working area on the 3rd floor to meet the requirements of different departments. On both sides of the elevators there are translucent partition walls served as products display area and create different scene in the office space.

Fourth Floor

Key Composition

If designers are compared to musicians, space is deemed as flowing melody. Different rhythms invite people to a varying journey. On the fourth floor, lighting turns from bright to soft with mild materials and compose the impressive climax of the composition.

Façade

Inspired by woods in the natural forest, the new façade design adopts vertical wooden blades to create a new entrance for the office building, which also integrates with the existing architecture.

-Project description provided by Ferri Architectural Design Engineering Co.Ltd Shanghai

Office space design - Flowing melody Interior design of Shanghai KUNCHI office Office space design - Flowing melody Interior design of Shanghai KUNCHI office Office space design - Flowing melody Interior design of Shanghai KUNCHI office

Office space design - Flowing melody Interior design of Shanghai KUNCHI office Office space design - Flowing melody Interior design of Shanghai KUNCHI office Office space design - Flowing melody Interior design of Shanghai KUNCHI office Office space design - Flowing melody Interior design of Shanghai KUNCHI office Office space design - Flowing melody Interior design of Shanghai KUNCHI office
Office space design - Flowing melody Interior design of Shanghai KUNCHI office Office space design - Flowing melody Interior design of Shanghai KUNCHI office Office space design - Flowing melody Interior design of Shanghai KUNCHI office Office space design - Flowing melody Interior design of Shanghai KUNCHI office Office space design - Flowing melody Interior design of Shanghai KUNCHI office
Office space design - Flowing melody Interior design of Shanghai KUNCHI office Office space design - Flowing melody Interior design of Shanghai KUNCHI office Office space design - Flowing melody Interior design of Shanghai KUNCHI office

Plans

Office space design - Flowing melody Interior design of Shanghai KUNCHI office Office space design - Flowing melody Interior design of Shanghai KUNCHI office

Office space design - Flowing melody Interior design of Shanghai KUNCHI office Office space design - Flowing melody Interior design of Shanghai KUNCHI office Office space design - Flowing melody Interior design of Shanghai KUNCHI office Office space design - Flowing melody Interior design of Shanghai KUNCHI office Office space design - Flowing melody Interior design of Shanghai KUNCHI office
Office space design - Flowing melody Interior design of Shanghai KUNCHI office Office space design - Flowing melody Interior design of Shanghai KUNCHI office Office space design - Flowing melody Interior design of Shanghai KUNCHI office Office space design - Flowing melody Interior design of Shanghai KUNCHI office Office space design - Flowing melody Interior design of Shanghai KUNCHI office
Office space design - Flowing melody Interior design of Shanghai KUNCHI office

Posted by Fidan

A young enthusiast with a passion for home decor and architecture, I love writing articles that inspire and guide readers in transforming their spaces into stylish, functional, and beautiful environments.