Landscape temperament – Balance and integration: Lin’an Sports and Culture Center

Project: Lin’an Sports and Culture Center
Architects: The Architectural Design & Research Institute Of ZheJiang University Co,Ltd
Location: Crossroad Jiuzhou Streent and Jiquan Road, Linan District, Hangzhou City, China
Area: 115,532,2 sq ft (site), 807,142 sq ft (gross floor)
Photographs by: Qiang Zhao

Lin’an Sports and Culture Center

The Architectural Design & Research Institute Of ZheJiang University Co,Ltd has submitted one of their latest projects and we are glad we can feature the design of the Lin’an Sports and Culture Center in in the Linan District of the Hangzhou City in China.
The most notable feature of this design which you can easily notice by yourselves is its integration with the natural landscape. It feels as if it belongs there, outlining the rivers and mountains. It’s unique exterior features elevated contour lines that respond to the surrounding mountains, closely linking it between them.  The architecture connects with the urban nature as well, creating a high level of platforms that greatly improve accessibility.

Landscape temperament - Balance and integration: Lin'an Sports and Culture Center

A sports center that belongs to the landscape

Landscape is the name card of Lin’an city. The idea of this project originated from the landscape of Lin’an. Using the freehand brushwork method, it outlines the landscape of the mountains and rivers, which is consistent with the profound cultural heritage of the city of Lin’an.

 

A sports center that belongs to the city

In combination with the geomorphic features of the low hill and gentle slope in the site, we have designed the sports center as a unique form with the elevation of the contour lines, responding to the surrounding mountains on the overall urban level, like a green vein, closely liking the natural mountains in the north and the south.

By combining the layers with the geomorphology, the architecture can connect with the urban nature and create a number of high level activity platforms, which greatly improves the accessibility and participation of the site.

Landscape temperament - Balance and integration: Lin'an Sports and Culture Center

A sports center that makes full use of land

The project covers an area of 161 mu, and we need to arrange various functions such as gymnasium, training hall, natatorium, outdoor stadium and business support, and the land is scarce. The plan takes the sports complex as the starting point. On the one hand, the body of the gymnasium is wrapped with the tapered and perforated plate of the double surface to create a translucent and light visual effect. With the lantern, the site is made into a striking city landmark. On the other hand, the height difference of the site is fully utilized and the rest of the functions are integrated together. With the stacked terrace as the design intention, the landscape processing techniques help form a continuous platform model, coordinating with the surrounding mountain environment, and at the same time it can highlight the main image of the gymnasium.

 

The sports center with the most comprehensive benefits

As an important part of supporting the center by itself, the project includes a children’s park, a large supermarket, a fitness center, KTV and a variety of catering spaces, and a linear commercial belt along the sides of the road and the inner street can meet the complex appeal of fitness, leisure and entertainment for citizens.

Landscape temperament - Balance and integration: Lin'an Sports and Culture Center

Design processing

In the design, the site is firstly divided into three stations with a difference of five meters, and the internal road is introduced into the functional blocks. The corresponding building volume is placed in each functional block. The height of the floor is also set at five meters, so that the roof of each layer can be seamlessly connected with the above floor.

The main plaza along the main street leads the ordinary audience to the second floor by the platform, and the bottom is designed to be the passage for VIP, athletes, instruments and media to create a three-dimensional and stratified traffic organization manner.

Along the road around, the gentle steps and grass slope are arranged to alleviate the road elevation, docked with landscape belt to form the simple and elegant space effect.

The whole sports center has designed several groups of landscape courtyards and transitional spaces around the courtyard to create rich spatial experience.

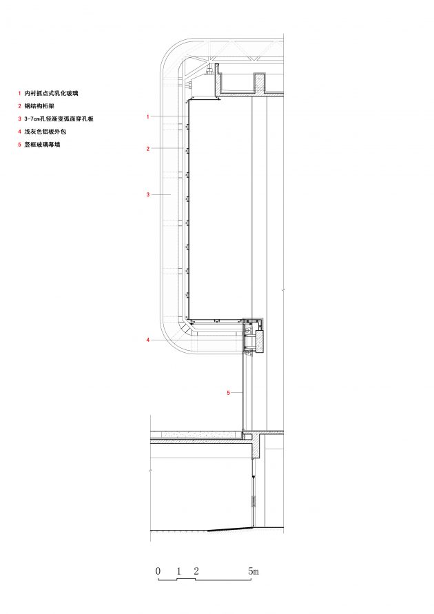
The gymnasium adopts the three-dimensional truss structure. The span of the upper competition hall is 74.4 meters, and the swimming training hall adopts space grid structure, with the length of the north and the south 110 meters, and the East and West span 58.8 meters.

Green energy saving

This project is 2-star green energy-saving building, and the main measures include:

  1. Several venues are set up with roof light pipe, which do not need the indoor lighting during daytime, and can ensure the required brightness in daily use.
  2. All platforms are rooftop greening, and the effect of heat insulation is remarkable.
  3. The gradual perforated panel curtain outside the gymnasium provides exterior shading for the building, forming the inner soft light.
  4. We have utilized advanced heat pump, solar roofing, rainwater collection technology, LED lighting and other mature energy-saving means.

Landscape temperament - Balance and integration: Lin'an Sports and Culture Center

Landscape temperament - Balance and integration: Lin'an Sports and Culture Center

Landscape temperament - Balance and integration: Lin'an Sports and Culture Center

Landscape temperament - Balance and integration: Lin'an Sports and Culture Center

Landscape temperament - Balance and integration: Lin'an Sports and Culture Center

Landscape temperament - Balance and integration: Lin'an Sports and Culture Center

Landscape temperament - Balance and integration: Lin'an Sports and Culture Center

Landscape temperament - Balance and integration: Lin'an Sports and Culture Center

Landscape temperament - Balance and integration: Lin'an Sports and Culture Center

Landscape temperament - Balance and integration: Lin'an Sports and Culture Center

Landscape temperament - Balance and integration: Lin'an Sports and Culture Center

Landscape temperament - Balance and integration: Lin'an Sports and Culture Center

Landscape temperament - Balance and integration: Lin'an Sports and Culture Center

Landscape temperament - Balance and integration: Lin'an Sports and Culture Center

Landscape temperament - Balance and integration: Lin'an Sports and Culture Center

Landscape temperament - Balance and integration: Lin'an Sports and Culture Center

Landscape temperament - Balance and integration: Lin'an Sports and Culture Center

Landscape temperament - Balance and integration: Lin'an Sports and Culture Center

Landscape temperament - Balance and integration: Lin'an Sports and Culture Center

Landscape temperament - Balance and integration: Lin'an Sports and Culture Center

Landscape temperament - Balance and integration: Lin'an Sports and Culture Center

Plans

Landscape temperament - Balance and integration: Lin'an Sports and Culture Center

Landscape temperament - Balance and integration: Lin'an Sports and Culture Center

Landscape temperament - Balance and integration: Lin'an Sports and Culture Center

Landscape temperament - Balance and integration: Lin'an Sports and Culture Center

Landscape temperament - Balance and integration: Lin'an Sports and Culture Center

Landscape temperament - Balance and integration: Lin'an Sports and Culture Center

Landscape temperament - Balance and integration: Lin'an Sports and Culture Center

Landscape temperament - Balance and integration: Lin'an Sports and Culture Center

Landscape temperament - Balance and integration: Lin'an Sports and Culture Center

Posted by Fidan

A young enthusiast with a passion for home decor and architecture, I love writing articles that inspire and guide readers in transforming their spaces into stylish, functional, and beautiful environments.