Guan Zi Zai House by Tanzo Space Design – Modern Living Rooted in Chinese Spiritual Tradition

  • Project: Guan Zi Zai House
  • Architect: Tanzo Space Design
  • Location: China, Haidian District, Beijing
  • Year: 2022
  • Area: 442 m2
  • Photography: Shi Yunfeng

A House Named After the Heart Sutra

Inspired by the Heart Sutra, the name Guan Zi Zai (Avalokiteśvara, “looking on”) reflects a philosophy of seeing through complexity into clarity. For designer Wang Daquan of Tanzo Space Design, the project was less about creating a finished object and more about practicing design as meditation—an exploration of how architecture can harmonize with tradition, environment, and the human spirit.

Situated in Beijing’s Haidian District, at the urban–rural edge where ancient rice fields once thrived, the project redefines the meaning of a countryside house. With urban expansion pressing in, the residence became a testbed for blending modern living with cultural memory and natural integration.

Intervention Without Presupposition

The starting point was an ordinary red-brick house, typical of the local village. Rather than impose a pre-designed scheme, Tanzo adopted an open-ended, site-responsive approach: intervening where necessary, adjusting to the physical environment, and shaping space around the owner’s lifestyle.

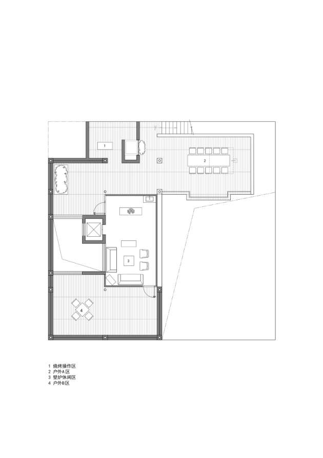
This method allowed the house to evolve naturally—like a dialogue between the land, the family, and time itself. A pavilion-like central courtyard was introduced, bringing light, air, and play into the heart of the home. Water features transform into interactive spaces for children, reinforcing the house as a living organism rather than a static object.

A Dialogue Between Past and Present

The project layers old and new in constant conversation:

  • Raw brick walls from the original 1970s structure remain exposed.

  • A spiral white staircase introduces contemporary sculptural energy.

  • Large windows and skylights frame views of the Xishan Mountains and the river, transforming everyday routines into landscape experiences.

This coexistence of nostalgia and modernity creates a rich temporal depth, reminding occupants of the continuity between tradition and innovation.

Materials and Atmosphere

The material palette was intentionally restrained, allowing authentic textures to shape the atmosphere:

  • Cement and solid wood ground the structure.

  • Glass and steel plates introduce lightness and modern precision.

  • Whitewashed walls balance Beijing’s often gray skies, amplifying natural light.

  • Bamboo plantings in the courtyard evoke Jiangnan gardens, bringing Eastern poetics into a northern context.

By working with natural limitations, the design achieves self-consistency—a calm, meditative environment where the boundaries between inside and outside, old and new, urban and rural dissolve.

Life, Improvisation, and Compatibility

What sets Guan Zi Zai House apart is its vitality. The design encourages improvisation:

  • Guests gather in the courtyard at different times of day, discovering shifting plays of light and shadow.

  • Children invent games around the water features.

  • Friends sit anywhere, as if at home, finding their own corners of comfort.

This vitality transforms the house into more than a residence—it becomes a social and spiritual landscape, always changing, always alive.

Tradition Reinterpreted

The interiors weave together Chinese heritage and modern lifestyle:

  • Furniture from domestic design brands mixes seamlessly with Qing and Ming dynasty utensils.

  • Stone-carved inscriptions coexist with contemporary art.

  • A bay window with a teapot becomes a stage for everyday rituals.

  • Reused rice wine jars add a playful, nostalgic charm to courtyard evenings.

Here, design serves as a medium for cultural revitalization—dusting off forgotten traditions and placing them back into daily life.

Guan Zi Zai House by Tanzo Space Design exemplifies how architecture can act as a bridge between rural tradition and modern aspiration, between concrete function and spiritual resonance. Rooted in the teachings of the Heart Sutra, it is both a home and a meditation—a place where life, culture, and nature flow into harmony.

In an era when China’s countryside is rapidly transforming, Guan Zi Zai House stands as a prototype of modernized rural living: respectful of its past, responsive to its present, and quietly visionary for its future.

Guan Zi Zai House by Tanzo Space Design – Modern Living Rooted in Chinese Spiritual Tradition
Photography © Shi Yunfeng
Guan Zi Zai House by Tanzo Space Design – Modern Living Rooted in Chinese Spiritual Tradition
Photography © Shi Yunfeng
Guan Zi Zai House by Tanzo Space Design – Modern Living Rooted in Chinese Spiritual Tradition
Photography © Shi Yunfeng
Guan Zi Zai House by Tanzo Space Design – Modern Living Rooted in Chinese Spiritual Tradition
Photography © Shi Yunfeng
Guan Zi Zai House by Tanzo Space Design – Modern Living Rooted in Chinese Spiritual Tradition
Photography © Shi Yunfeng
Guan Zi Zai House by Tanzo Space Design – Modern Living Rooted in Chinese Spiritual Tradition
Photography © Shi Yunfeng
Guan Zi Zai House by Tanzo Space Design – Modern Living Rooted in Chinese Spiritual Tradition
Photography © Shi Yunfeng
Guan Zi Zai House by Tanzo Space Design – Modern Living Rooted in Chinese Spiritual Tradition
Photography © Shi Yunfeng
Guan Zi Zai House by Tanzo Space Design – Modern Living Rooted in Chinese Spiritual Tradition
Photography © Shi Yunfeng
Guan Zi Zai House by Tanzo Space Design – Modern Living Rooted in Chinese Spiritual Tradition
Photography © Shi Yunfeng
Guan Zi Zai House by Tanzo Space Design – Modern Living Rooted in Chinese Spiritual Tradition
Photography © Shi Yunfeng
Guan Zi Zai House by Tanzo Space Design – Modern Living Rooted in Chinese Spiritual Tradition
Photography © Shi Yunfeng
Guan Zi Zai House by Tanzo Space Design – Modern Living Rooted in Chinese Spiritual Tradition
Photography © Shi Yunfeng
Guan Zi Zai House by Tanzo Space Design – Modern Living Rooted in Chinese Spiritual Tradition
Photography © Shi Yunfeng
Guan Zi Zai House by Tanzo Space Design – Modern Living Rooted in Chinese Spiritual Tradition
Photography © Shi Yunfeng
Guan Zi Zai House by Tanzo Space Design – Modern Living Rooted in Chinese Spiritual Tradition
Photography © Shi Yunfeng
Guan Zi Zai House by Tanzo Space Design – Modern Living Rooted in Chinese Spiritual Tradition
Photography © Shi Yunfeng
Guan Zi Zai House by Tanzo Space Design – Modern Living Rooted in Chinese Spiritual Tradition
Photography © Shi Yunfeng
Guan Zi Zai House by Tanzo Space Design – Modern Living Rooted in Chinese Spiritual Tradition
Photography © Shi Yunfeng
Guan Zi Zai House by Tanzo Space Design – Modern Living Rooted in Chinese Spiritual Tradition
Guan Zi Zai House by Tanzo Space Design – Modern Living Rooted in Chinese Spiritual Tradition
Guan Zi Zai House by Tanzo Space Design – Modern Living Rooted in Chinese Spiritual Tradition

Posted by Tanzo Space Design

TANZO Space Design (天作空间设计) is a Beijing-based creative design agency founded by senior designer Wang Daquan. The studio offers integrated services in spatial design, architecture transformation, branding, interior, art, media, and furnishings. TANZO is known for revitalizing cultural, commercial, and hospitality spaces—blending soft drama, context, and functionality to produce immersive environments. Projects in their portfolio include boutique hotels, themed restaurants, cultural wards, office upgrades, and architectural renovations. With meticulous detail and an emphasis on continuity from concept to build, TANZO strives to harmonize human experience, aesthetics, and operational logic.