G&T Service Interior by Wall Design Studio in Tbilisi, Georgia

The Wall design studio have completed the design for the G&T service, located in Tbilisi, Georgia in 2019. The goal of the designer was to create comfortable workspace for employees. The variety of materials, the tonalities of the colors, their thoughtfully organized combination, make the whole space unique.
Every detail of the mood of the office space calms the human mind. All work points are positioned to take advantage of the natural light and large amounts of natural greenery.
Natural greenery is the main point all over the office, as well as in open-plan and in cabinets.
The area of the office, that was designed by Rusudan Tumanishvili is approximately 5500 sqft with a budget of $1M.

G&T Service Interior by Wall Design Studio in Tbilisi, Georgia

G&T Service Interior by Wall Design Studio in Tbilisi, Georgia

G&T Service Interior by Wall Design Studio in Tbilisi, Georgia

G&T Service Interior by Wall Design Studio in Tbilisi, Georgia

G&T Service Interior by Wall Design Studio in Tbilisi, Georgia

G&T Service Interior by Wall Design Studio in Tbilisi, Georgia

G&T Service Interior by Wall Design Studio in Tbilisi, Georgia

G&T Service Interior by Wall Design Studio in Tbilisi, Georgia

G&T Service Interior by Wall Design Studio in Tbilisi, Georgia

G&T Service Interior by Wall Design Studio in Tbilisi, Georgia

G&T Service Interior by Wall Design Studio in Tbilisi, Georgia

G&T Service Interior by Wall Design Studio in Tbilisi, Georgia

G&T Service Interior by Wall Design Studio in Tbilisi, Georgia

G&T Service Interior by Wall Design Studio in Tbilisi, Georgia

G&T Service Interior by Wall Design Studio in Tbilisi, Georgia

G&T Service Interior by Wall Design Studio in Tbilisi, Georgia

G&T Service Interior by Wall Design Studio in Tbilisi, Georgia

G&T Service Interior by Wall Design Studio in Tbilisi, Georgia

G&T Service Interior by Wall Design Studio in Tbilisi, Georgia

G&T Service Interior by Wall Design Studio in Tbilisi, Georgia

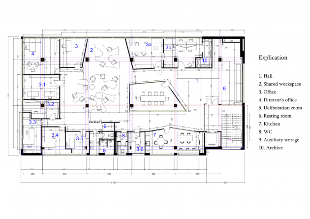
Plans

G&T Service Interior by Wall Design Studio in Tbilisi, Georgia

G&T Service Interior by Wall Design Studio in Tbilisi, Georgia

G&T Service Interior by Wall Design Studio in Tbilisi, Georgia

Posted by Fidan

A young enthusiast with a passion for home decor and architecture, I love writing articles that inspire and guide readers in transforming their spaces into stylish, functional, and beautiful environments.