Control Bar in Zhangzhou by PANDA NANA in China

Project: Control Bar in Zhangzhou
Architects: CUN PANDA NANA
Location: Zhangzhou, Fujian, China
Area: 3,229 sf
Year: 2021
Photographs by: Courtesy of CUN PANDA NANA

Control Bar in Zhangzhou by PANDA NANA

Joy is never under our control, but happiness is another thing. We can take control of the predictable happiness tonight, the aimless journey tonight, the plot of a story, and the direction of the future.

What is the future? The present is the future of the past; the future is the future of the present. Based on the brand concept of CONTROL, PANDA NANA extracts the city spirit of Zhangzhou to interpret the alcohol culture exclusive to CONTROL through an extremely mechanical, technological, and futuristic space experience.

We will fight with all our might the fanatical, senseless and snobbish religion of the past, a religion encouraged by the vicious existence of museums. We rebel against that spineless worshipping of old canvases, old statues and old bric-a-brac, against everything which is filthy and worm-ridden and corroded by time. We must have the courage to rebel against everything.

Control Bar in Zhangzhou by PANDA NANA in China

Roughness, Avant-garde, Fearlessness will be the essential factor of space

 Breaking the traditional definition of COCKTAIL & WHISKY BAR, the project reflects the rough, avant-garde, and fearless aesthetics derived from futurism through the interior constructed by artistic sense and technology, creating an illusion of being in a future world. Starting from the facade, the twisted network has been transformed into a part of the building, where the two-dimensional wall brings a three-dimensional visual effect, thereby transforming the ordinary facade into a beautiful sculpture. At the same time, it adds more positive visual appeal to attract more consumers and promote consumption.

The entire space breaks all frames and definitions. From the exterior to the interior, round curves and grids fill the entire space with a modern digital atmosphere. In addition, whether it is the astronaut at the entrance or the “unborn human beings” at the bar, the installations are specially created for CONTROL. The design has increased space recognition and provided consumers with an internet-famous place to take the perfect moments and post on social media, thus attracting more young curious customers.

Control Bar in Zhangzhou by PANDA NANA in China

The magnificent world has acquired a new beauty. The beauty of speed becomes rich and graceful

 Just like futuristic paintings, the interior design presents dynamic aesthetics, using organic curves and changing light to bring an immersive multi-sensory experience.

The three-dimensional visual network wall composed of organic curves breaks the sense of boundary and axial relationship in the space. It also breaks the horizontal and vertical composition and presents a pioneering visual experience.

Light and color are the themes of the space. The lighting can change the color and flickering frequency according to different music styles and scenes, giving consideration to all kinds of consumers. When the light is reflected on the stainless steel wall, the whole light spreads in every corner of the space, making the space experience completely immersive. The whole space is endowed with a sense of transformation and movement brought by light and color.

Control Bar in Zhangzhou by PANDA NANA in China

Time has stopped since yesterday

No matter what the design method is, it needs to present a simple state from the commercial perspective. Let time stop here so that consumers are willing to stay in the space for a longer time. When consumers who have come are willing to go again and even invite more guests, a highly sticky commercial space is achieved.

 In order to meet this purpose, the first thing to be satisfied is the sense of place identity, and belonging in accord with the lifestyle in the new era. At the beginning of design, the design team has considered the maximization of functions, operations, and scenes. In addition to the space design themed with controlling the future, the designers have also taken over the brand design, which extends the sense of blur, vanguard, and sci-fi in space design. With materials of different textures and saturation, supplemented by various retro technological elements, the brand design presents a visual effect in keeping with space.

The project fully integrates space and brand design, so that it can not only satisfy the basic functional and psychological needs in experience level, but also bring consumers a sense of social identity including wealth, status, and achievement, as well as a sense of identity belonging including class, ethnicity, and socializing from the social level. Thereby, it has the core driving force to arouse identification, liking, and even loyalty of customers to the brand.

-Project description and images provided by CUN PANDA NANA

Control Bar in Zhangzhou by PANDA NANA in China

Control Bar in Zhangzhou by PANDA NANA in China

Control Bar in Zhangzhou by PANDA NANA in China

Control Bar in Zhangzhou by PANDA NANA in China

Control Bar in Zhangzhou by PANDA NANA in China

Control Bar in Zhangzhou by PANDA NANA in China

Control Bar in Zhangzhou by PANDA NANA in China

Control Bar in Zhangzhou by PANDA NANA in China

Control Bar in Zhangzhou by PANDA NANA in China

Control Bar in Zhangzhou by PANDA NANA in China

Control Bar in Zhangzhou by PANDA NANA in China

Control Bar in Zhangzhou by PANDA NANA in China

Control Bar in Zhangzhou by PANDA NANA in China

Control Bar in Zhangzhou by PANDA NANA in China

Control Bar in Zhangzhou by PANDA NANA in China

Control Bar in Zhangzhou by PANDA NANA in China

Control Bar in Zhangzhou by PANDA NANA in China

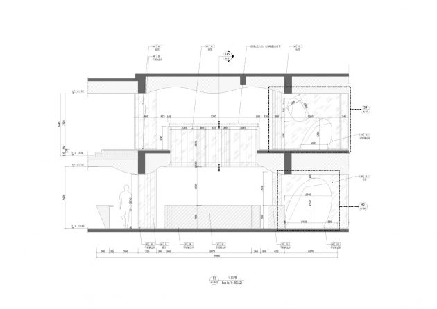
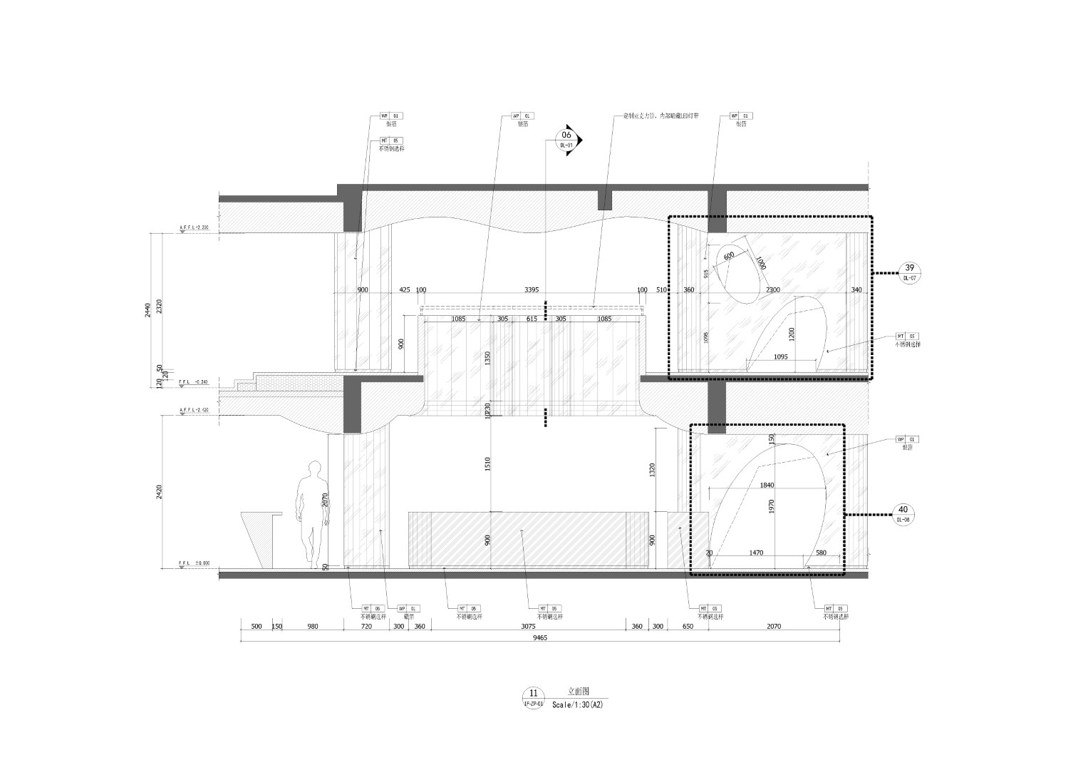
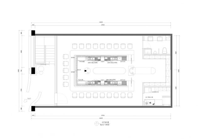
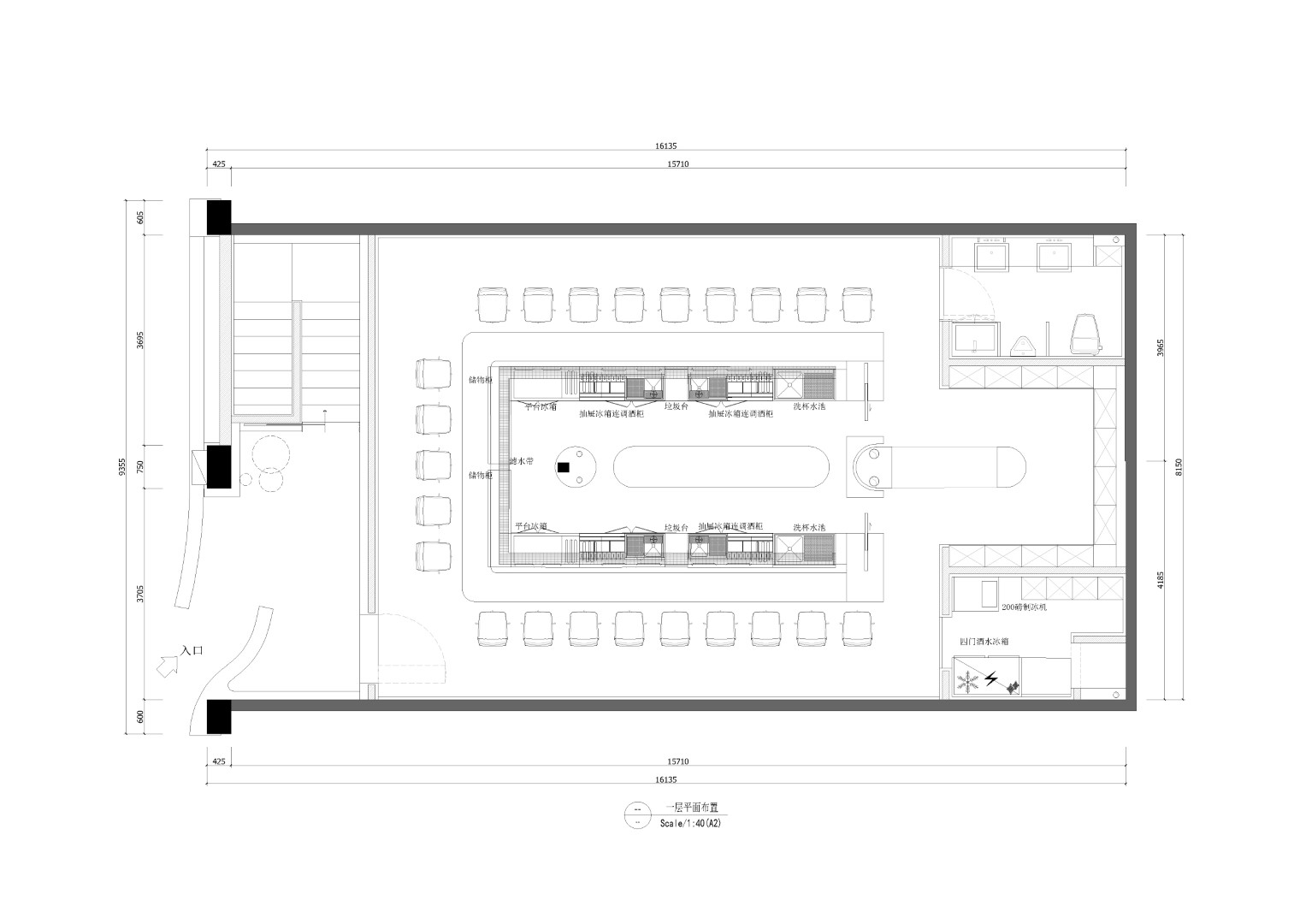
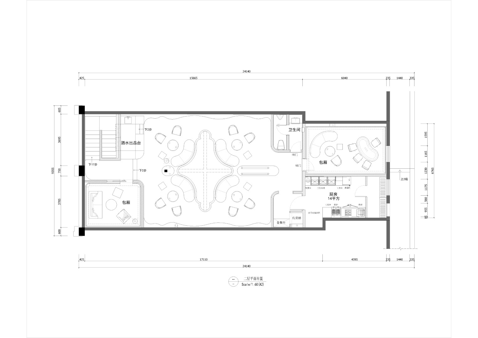
Plans

Control Bar in Zhangzhou by PANDA NANA in China

Control Bar in Zhangzhou by PANDA NANA in China

Control Bar in Zhangzhou by PANDA NANA in China

Control Bar in Zhangzhou by PANDA NANA in China

Posted by Fidan

A young enthusiast with a passion for home decor and architecture, I love writing articles that inspire and guide readers in transforming their spaces into stylish, functional, and beautiful environments.